
Hay Road, Brecon, LD3

- PROPERTY TYPE
Apartment
- BEDROOMS
1
- BATHROOMS
1
- SIZE
Ask agent
Key features
- One Double Bedroom Ground Floor Flat
- In A Great Location Enjoying Spectacular Views Of The Brecon Beacons
- Ideal Starter Home Or Investment Opportunity
- Open Plan Kitchen/Living/Dining Room
- Shower Room
- Allocated Parking Space
- Balcony With Fab Views
- Electric Heating
- Leasehold
Description
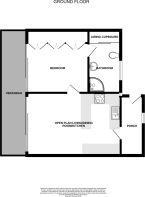
Flat 11, Bishops Court is a well-presented and easily maintained ground floor apartment, enjoying an attractive decked veranda with truly stunning views across the Brecon Beacons. Situated approximately one mile from the town centre, the property offers a convenient yet peaceful setting and benefits from an allocated parking space. The accommodation comprises an entrance hall leading to an open-plan kitchen/dining/living room, a double bedroom and a modern shower room. To the front of the property, the decked veranda provides a lovely outdoor space to relax and take in the exceptional Beacons views, making this an ideal home for those seeking low-maintenance living in a highly desirable location.
Bishops Court is located just a mile from Brecon it’s a residential/apartment building or complex located on Hay Road in Brecon, Powys, Wales. Brecon is a traditional market town, the centre of the Brecon Beacons National Park. Surrounded by wonderful countryside it has a wide range of shops and amenities which include a cinema, theatre, leisure centre, library and golf course. It also has several good primary schools, a secondary school, college of further education and Christ College a private boarding school for boys and girls aged 7-18. With good access links Cardiff, Swansea and Hereford are all an hour’s drive and the nearest train station is in Abergavenny which is 20 miles away.
Council Tax: We have been informed that this property has been placed under council tax band ‘B’.
Brief Lease Details:
• Lease Length: approx. 950 years remaining
• Commencement: 1987
• Ground Rent: Peppercorn Wil
• Service Charge £1460.36 PA ( £365.09 quarterly) to include water, insurance and all maintenance of buildings
• Sinking Fund: There will be one in the future.
Services: Mains electric. Private water and drainage (Borehole and cesspit). Electric heating. Please note we have not tested the appliances, central heating or services.
- COUNCIL TAXA payment made to your local authority in order to pay for local services like schools, libraries, and refuse collection. The amount you pay depends on the value of the property.Read more about council Tax in our glossary page.
- Band: B
- PARKINGDetails of how and where vehicles can be parked, and any associated costs.Read more about parking in our glossary page.
- Yes
- GARDENA property has access to an outdoor space, which could be private or shared.
- Yes
- ACCESSIBILITYHow a property has been adapted to meet the needs of vulnerable or disabled individuals.Read more about accessibility in our glossary page.
- Ask agent
Hay Road, Brecon, LD3
Add an important place to see how long it'd take to get there from our property listings.
__mins driving to your place
Get an instant, personalised result:
- Show sellers you’re serious
- Secure viewings faster with agents
- No impact on your credit score
Your mortgage
Notes
Staying secure when looking for property
Ensure you're up to date with our latest advice on how to avoid fraud or scams when looking for property online.
Visit our security centre to find out moreDisclaimer - Property reference 29789809. The information displayed about this property comprises a property advertisement. Rightmove.co.uk makes no warranty as to the accuracy or completeness of the advertisement or any linked or associated information, and Rightmove has no control over the content. This property advertisement does not constitute property particulars. The information is provided and maintained by James Dean, Brecon. Please contact the selling agent or developer directly to obtain any information which may be available under the terms of The Energy Performance of Buildings (Certificates and Inspections) (England and Wales) Regulations 2007 or the Home Report if in relation to a residential property in Scotland.
*This is the average speed from the provider with the fastest broadband package available at this postcode. The average speed displayed is based on the download speeds of at least 50% of customers at peak time (8pm to 10pm). Fibre/cable services at the postcode are subject to availability and may differ between properties within a postcode. Speeds can be affected by a range of technical and environmental factors. The speed at the property may be lower than that listed above. You can check the estimated speed and confirm availability to a property prior to purchasing on the broadband provider's website. Providers may increase charges. The information is provided and maintained by Decision Technologies Limited. **This is indicative only and based on a 2-person household with multiple devices and simultaneous usage. Broadband performance is affected by multiple factors including number of occupants and devices, simultaneous usage, router range etc. For more information speak to your broadband provider.
Map data ©OpenStreetMap contributors.





