Westside, Tillington, Petworth, West Sussex, GU28

Letting details
- Let available date:
- 17/01/2026
- Deposit:
- Ask agentA deposit provides security for a landlord against damage, or unpaid rent by a tenant.Read more about deposit in our glossary page.
- Min. Tenancy:
- Ask agent How long the landlord offers to let the property for.Read more about tenancy length in our glossary page.
- Let type:
- Long term
- Furnish type:
- Unfurnished
- Council Tax:
- Ask agent
- PROPERTY TYPE
Detached
- BEDROOMS
3
- BATHROOMS
2
- SIZE
Ask agent
Key features
- Refurbished bungalow at end of a quiet lane
- Master bedroom with ensuite wet room
- Stunning views over farmland
- Available soon
- Pets considered on a case by case basis
Description
The property is situated within the South Downs National Park at the end of a short no-through road on the fringe of the village next to open farmland and vineyards.
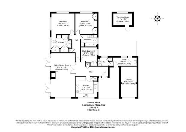
Refurbished three bedroom detached bungalow, large reception room with double doors opening out onto farmland and a vineyard. Recently installed kitchen with an AGA, an electric hob, built in fridge and dishwasher. Large utility room with american style fridge freezer, washing machine, sink and cupboards. Cloakroom. Master bedroom with duel aspect views over the countryside and a large en-suite wet room incorporating a dressing room. Two further double bedrooms and a newly installed family bathroom with a large shower and a separate bath.
Outside is a separate brick storage shed and a garage.
Situated at the end of a quiet lane with stunning dual aspect views over fields and vineyards. Nearby are the Parish Church and Horse Guards Pub and restaurant, and a bus stop a few hundred yards away. The charming market town of Petworth, is only one mile away, and offers a good range of shops, restaurants and pubs, a farmers' market, and the renowned Petworth House and 750 acre parkland.
tate schools in the area include Petworth Primary School and Midhurst Rother College. In the private sector, Seaford College, Dorset House and Conifers. Sporting activities include golf at Cowdray Park and horse and motor racing at Goodwood. Chichester (13 miles south) provides excellent shopping and leisure facilities including the renowned Festival Theatre. Communications with London are surprisingly easy with mainline stations at Haslemere (13 miles, Waterloo 60 minutes) and Pulborough (6 miles, Victoria 70 minutes). The A3 (M) is within a 14 mile drive.
Pets will be considered on a case by case basis.
Available January.
- COUNCIL TAXA payment made to your local authority in order to pay for local services like schools, libraries, and refuse collection. The amount you pay depends on the value of the property.Read more about council Tax in our glossary page.
- Ask agent
- PARKINGDetails of how and where vehicles can be parked, and any associated costs.Read more about parking in our glossary page.
- Driveway
- GARDENA property has access to an outdoor space, which could be private or shared.
- Private garden,Terrace
- ACCESSIBILITYHow a property has been adapted to meet the needs of vulnerable or disabled individuals.Read more about accessibility in our glossary page.
- Ask agent
Westside, Tillington, Petworth, West Sussex, GU28
Add an important place to see how long it'd take to get there from our property listings.
__mins driving to your place
Notes
Staying secure when looking for property
Ensure you're up to date with our latest advice on how to avoid fraud or scams when looking for property online.
Visit our security centre to find out moreDisclaimer - Property reference PET34789942026. The information displayed about this property comprises a property advertisement. Rightmove.co.uk makes no warranty as to the accuracy or completeness of the advertisement or any linked or associated information, and Rightmove has no control over the content. This property advertisement does not constitute property particulars. The information is provided and maintained by Regency Lettings & Property Management Ltd, Chiddingfold. Please contact the selling agent or developer directly to obtain any information which may be available under the terms of The Energy Performance of Buildings (Certificates and Inspections) (England and Wales) Regulations 2007 or the Home Report if in relation to a residential property in Scotland.
*This is the average speed from the provider with the fastest broadband package available at this postcode. The average speed displayed is based on the download speeds of at least 50% of customers at peak time (8pm to 10pm). Fibre/cable services at the postcode are subject to availability and may differ between properties within a postcode. Speeds can be affected by a range of technical and environmental factors. The speed at the property may be lower than that listed above. You can check the estimated speed and confirm availability to a property prior to purchasing on the broadband provider's website. Providers may increase charges. The information is provided and maintained by Decision Technologies Limited. **This is indicative only and based on a 2-person household with multiple devices and simultaneous usage. Broadband performance is affected by multiple factors including number of occupants and devices, simultaneous usage, router range etc. For more information speak to your broadband provider.
Map data ©OpenStreetMap contributors.




