
3 bedroom semi-detached house for sale
The Ridgeway, Harwich, Essex, CO12

- PROPERTY TYPE
Semi-Detached
- BEDROOMS
3
- BATHROOMS
1
- SIZE
Ask agent
- TENUREDescribes how you own a property. There are different types of tenure - freehold, leasehold, and commonhold.Read more about tenure in our glossary page.
Ask agent
Key features
- Semi Detached House
- Three Bedrooms
- Living Room
- Kitchen
- Dining Room
- Shower Room & Bathroom
- Private Rear Garden
- Garage & Parking
Description
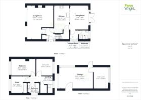
A double-glazed door gives access to the entrance hall which has stairs to the first floor, storage cupboard, laminate wood flooring and a radiator.
An L shaped living room with two double glazed windows to the front aspect, one of which is a bow bay window, there is a feature fireplace with a tiled hearth, wall mounted lighting and a radiator.
The kitchen is open aspect to the dining room and has a range of matching base and wall mounted units with rolled edge work surfaces, inset stainless steel sink wit mixer tap, space for cooker, washing machine, fridge & freezer. There is also a built-in storage cupboard, part tiled walls and tiled floor.
The dining room has double glazed patio doors to the rear garden, laminate wood flooring and a radiator.
Accessed from the dining room is a utility area with a double-glazed window to the side aspect, space for tumble dryer, tiled floor and a door to the shower room.
The downstairs shower room has a double-glazed window to the rear aspect, low level W.C, vanity wash basin with storage under, corner shower cubicle with wall mounted shower, tiled walls, tiled floor and a radiator.
Heading upstairs, the first-floor landing has access to the loft space and an airing cupboard.
Bedroom one has a double-glazed window to the front aspect and a radiator.
Bedroom two has a double-glazed window to the rear aspect and a radiator.
Bedroom three has a double-glazed window to the front aspect, built in wardrobe and radiator.
The bathroom has a double-glazed window to the side aspect, hidden cistern W.C, vanity wash basin with built in storage, panel enclosed bath, heated towel rail, tiled floor and part tiled walls.
Externally
The front garden has a lawned area with some decorative shrubs, there is a driveway which provides parking for several cars and gives access to the garage. There is also a gate giving access to the rear garden.
The rear garden commences with a covered decked area; there is a gravelled area and paved patio area with steps down to an open lawned area. The lawned area has a variety of mature shrub borders, brick-built pond and pedestrian access to the garage.
The garage has an electric roller door, power and light connected. The rear of the garage has been converted into a home office with power and lighting.
Location
The property is situated a short distance to Dovercourt seafront which provides a range of shopping facilities for day to day needs. Dovercourts popular seafront is also within easy reach along with the A120 provides access to the A12 and M25 London and rail services from the town provides link to London Liverpool Street.
Directions
Please type CO12 4AU into your sat nav and you will arrive at the property.
Important Information
Council Tax Band - C
Services - We understand that mains water, drainage, gas and electricity are connected to the property.
Tenure - Freehold
EPC rating - D
- COUNCIL TAXA payment made to your local authority in order to pay for local services like schools, libraries, and refuse collection. The amount you pay depends on the value of the property.Read more about council Tax in our glossary page.
- Ask agent
- PARKINGDetails of how and where vehicles can be parked, and any associated costs.Read more about parking in our glossary page.
- Yes
- GARDENA property has access to an outdoor space, which could be private or shared.
- Yes
- ACCESSIBILITYHow a property has been adapted to meet the needs of vulnerable or disabled individuals.Read more about accessibility in our glossary page.
- Ask agent
Energy performance certificate - ask agent
The Ridgeway, Harwich, Essex, CO12
Add an important place to see how long it'd take to get there from our property listings.
__mins driving to your place
Get an instant, personalised result:
- Show sellers you’re serious
- Secure viewings faster with agents
- No impact on your credit score
Your mortgage
Notes
Staying secure when looking for property
Ensure you're up to date with our latest advice on how to avoid fraud or scams when looking for property online.
Visit our security centre to find out moreDisclaimer - Property reference MAN250219. The information displayed about this property comprises a property advertisement. Rightmove.co.uk makes no warranty as to the accuracy or completeness of the advertisement or any linked or associated information, and Rightmove has no control over the content. This property advertisement does not constitute property particulars. The information is provided and maintained by Fenn Wright, Manningtree. Please contact the selling agent or developer directly to obtain any information which may be available under the terms of The Energy Performance of Buildings (Certificates and Inspections) (England and Wales) Regulations 2007 or the Home Report if in relation to a residential property in Scotland.
*This is the average speed from the provider with the fastest broadband package available at this postcode. The average speed displayed is based on the download speeds of at least 50% of customers at peak time (8pm to 10pm). Fibre/cable services at the postcode are subject to availability and may differ between properties within a postcode. Speeds can be affected by a range of technical and environmental factors. The speed at the property may be lower than that listed above. You can check the estimated speed and confirm availability to a property prior to purchasing on the broadband provider's website. Providers may increase charges. The information is provided and maintained by Decision Technologies Limited. **This is indicative only and based on a 2-person household with multiple devices and simultaneous usage. Broadband performance is affected by multiple factors including number of occupants and devices, simultaneous usage, router range etc. For more information speak to your broadband provider.
Map data ©OpenStreetMap contributors.






