
1 bedroom retirement property for rent
99 Martongate Bridlington, Bridlington, East Riding of Yorkshire, YO16 6ZJ

Letting details
- Let available date:
- Now
- Deposit:
- Ask agentA deposit provides security for a landlord against damage, or unpaid rent by a tenant.Read more about deposit in our glossary page.
- Min. Tenancy:
- Ask agent How long the landlord offers to let the property for.Read more about tenancy length in our glossary page.
- Let type:
- Long term
- Furnish type:
- Unfurnished
- Council Tax:
- Ask agent
- PROPERTY TYPE
Retirement Property
- BEDROOMS
1
- SIZE
529 sq ft
49 sq m
Key features
- Stunning seaside location
- 24-hour emergency call system and camera entry
- Mature landscaped gardens with large terraces and seating areas
- Juliet balconies to selected apartments
- Beautifully decorated Communal Lounge
- Parking spaces and car ports are available via an annual permit
- Patio
- South facing
- Wheelchair access
- Lifts to all floors
Description
Enjoy all of the benefits of a McCarthy Stone retirement community with our assured, affordable and flexible tenancies, so you can rent your property for as long as you want (subject to a minimum term). Renting in retirement provides a wealth of benefits including one monthly fee, removing any worries you may have about the upkeep of your property and the grounds. You can move in at your pace, knowing there's long-term security with one of our Assured Tenancies and settle in to your new home with minimum fuss.
Chestnut Court is in the perfect location for those looking to retire by the sea. Exclusive to people aged 60 and over, this brand new Retirement Living development of 32 stylish apartments will allow you to enjoy the retirement lifestyle you have always dreamed of.
Situated on Martongate, Bridlington, it allows you to make the best of all that is available in this traditional seaside town. As well as being close to a good range of amenities including a supermarket, a post office and a pharmacy, it also offers easy access to public transport to the town centre with all its attractions.
Residents benefit from a Communal Lounge, where you can socialise and meet new friends, as well as a guest suite for your visitors. The grounds of Chestnut Court are leafy and vibrant, and you can enjoy a beautifully maintained garden without having to lift a finger.
Residents at Chestnut Court are delivered peace of mind by exceptional security measures, including intruder alarms and 24-hour emergency calls. There are also good car parking facilities, a lift to all floors plus the development offers wheelchair access. The high quality, age-exclusive properties at Chestnut Court are the ultimate choice for those desiring a peaceful yet exciting retirement beside the sea.
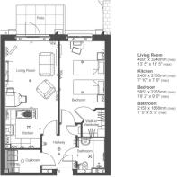
A lovely one-bedroom ground floor apartment featuring a private patio, a walk-in wardrobe and a fully fitted modern kitchen. The light and spacious living room includes raised plug sockets and a Sky Q connection for added comfort and convenience. The contemporary shower room is stylishly designed with a low-profile walk-in shower, low-slip flooring and a comfort-height WC for ease of use.
- Council tax band: B
- Reservation deposit: £500 (to be offset against your initial payment and fully refundable should your Tenancy not proceed)
- Security deposit: £1,604 (equivalent to 5 weeks rent of the apartment only, excludes any parking space rent)
Brochures
Chestnut Court brochure- COUNCIL TAXA payment made to your local authority in order to pay for local services like schools, libraries, and refuse collection. The amount you pay depends on the value of the property.Read more about council Tax in our glossary page.
- Band: B
- PARKINGDetails of how and where vehicles can be parked, and any associated costs.Read more about parking in our glossary page.
- Yes
- GARDENA property has access to an outdoor space, which could be private or shared.
- Patio
- ACCESSIBILITYHow a property has been adapted to meet the needs of vulnerable or disabled individuals.Read more about accessibility in our glossary page.
- Ask agent
99 Martongate Bridlington, Bridlington, East Riding of Yorkshire, YO16 6ZJ
Add an important place to see how long it'd take to get there from our property listings.
__mins driving to your place
Notes
Staying secure when looking for property
Ensure you're up to date with our latest advice on how to avoid fraud or scams when looking for property online.
Visit our security centre to find out moreDisclaimer - Property reference a230O000002BtKlQAK. The information displayed about this property comprises a property advertisement. Rightmove.co.uk makes no warranty as to the accuracy or completeness of the advertisement or any linked or associated information, and Rightmove has no control over the content. This property advertisement does not constitute property particulars. The information is provided and maintained by McCarthy Stone, Nationwide. Please contact the selling agent or developer directly to obtain any information which may be available under the terms of The Energy Performance of Buildings (Certificates and Inspections) (England and Wales) Regulations 2007 or the Home Report if in relation to a residential property in Scotland.
*This is the average speed from the provider with the fastest broadband package available at this postcode. The average speed displayed is based on the download speeds of at least 50% of customers at peak time (8pm to 10pm). Fibre/cable services at the postcode are subject to availability and may differ between properties within a postcode. Speeds can be affected by a range of technical and environmental factors. The speed at the property may be lower than that listed above. You can check the estimated speed and confirm availability to a property prior to purchasing on the broadband provider's website. Providers may increase charges. The information is provided and maintained by Decision Technologies Limited. **This is indicative only and based on a 2-person household with multiple devices and simultaneous usage. Broadband performance is affected by multiple factors including number of occupants and devices, simultaneous usage, router range etc. For more information speak to your broadband provider.
Map data ©OpenStreetMap contributors.





