
Peak Hill View, Kirkdale, Sydenham, SE26

Letting details
- Let available date:
- Now
- Deposit:
- £1,903A deposit provides security for a landlord against damage, or unpaid rent by a tenant.Read more about deposit in our glossary page.
- Min. Tenancy:
- Ask agent How long the landlord offers to let the property for.Read more about tenancy length in our glossary page.
- Let type:
- Long term
- Furnish type:
- Unfurnished
- Council Tax:
- Ask agent
- PROPERTY TYPE
Apartment
- BEDROOMS
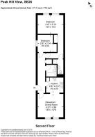
2
- BATHROOMS
2
- SIZE
Ask agent
Key features
- Two double bedrooms
- Spacious living/dining room
- Close to local amenities
- Bathroom and en suite shower room
- Fitted wardrobes
- Integrated kitchen
- Close to transport links
- Offered unfurnished
- Available mid January
Description
This beautifully finished property provides two double bedrooms both with mirrored fitted wardrobes and the master benefitting from an en suit shower room. The spacious living space is open plan with plenty of space for lounging and dining along with a superbly decorated integrated kitchen. This property boasts of character and light, ideal for working from home professionals needing that extra space.
Peak Hill View is a prominent development located on the corner of Kirkdale and Peak Hill; well-located by Mayow and Wells Park and within close proximity to local amenities on Sydenham High Street which offers some lovely coffee shops and restaurants.
EPC: B | Council Tax Band: C | Available mid January | Offered unfurnished | HD: £380.76 | SD: £1,903.84
Brochures
Peak Hill View, Kirkdale, Sydenham, SE26- COUNCIL TAXA payment made to your local authority in order to pay for local services like schools, libraries, and refuse collection. The amount you pay depends on the value of the property.Read more about council Tax in our glossary page.
- Band: C
- PARKINGDetails of how and where vehicles can be parked, and any associated costs.Read more about parking in our glossary page.
- On street
- GARDENA property has access to an outdoor space, which could be private or shared.
- Ask agent
- ACCESSIBILITYHow a property has been adapted to meet the needs of vulnerable or disabled individuals.Read more about accessibility in our glossary page.
- Ask agent
Peak Hill View, Kirkdale, Sydenham, SE26
Add an important place to see how long it'd take to get there from our property listings.
__mins driving to your place
Notes
Staying secure when looking for property
Ensure you're up to date with our latest advice on how to avoid fraud or scams when looking for property online.
Visit our security centre to find out moreDisclaimer - Property reference 34378799. The information displayed about this property comprises a property advertisement. Rightmove.co.uk makes no warranty as to the accuracy or completeness of the advertisement or any linked or associated information, and Rightmove has no control over the content. This property advertisement does not constitute property particulars. The information is provided and maintained by Pedder, Sydenham. Please contact the selling agent or developer directly to obtain any information which may be available under the terms of The Energy Performance of Buildings (Certificates and Inspections) (England and Wales) Regulations 2007 or the Home Report if in relation to a residential property in Scotland.
*This is the average speed from the provider with the fastest broadband package available at this postcode. The average speed displayed is based on the download speeds of at least 50% of customers at peak time (8pm to 10pm). Fibre/cable services at the postcode are subject to availability and may differ between properties within a postcode. Speeds can be affected by a range of technical and environmental factors. The speed at the property may be lower than that listed above. You can check the estimated speed and confirm availability to a property prior to purchasing on the broadband provider's website. Providers may increase charges. The information is provided and maintained by Decision Technologies Limited. **This is indicative only and based on a 2-person household with multiple devices and simultaneous usage. Broadband performance is affected by multiple factors including number of occupants and devices, simultaneous usage, router range etc. For more information speak to your broadband provider.
Map data ©OpenStreetMap contributors.





