3 bedroom apartment for rent
Merchant Square East, London

Letting details
- Let available date:
- Now
- Deposit:
- £7,193A deposit provides security for a landlord against damage, or unpaid rent by a tenant.Read more about deposit in our glossary page.
- Min. Tenancy:
- Ask agent How long the landlord offers to let the property for.Read more about tenancy length in our glossary page.
- Let type:
- Long term
- Furnish type:
- Furnished
- Council Tax:
- Ask agent
- PROPERTY TYPE
Apartment
- BEDROOMS
3
- BATHROOMS
2
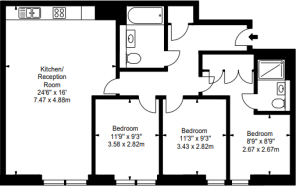
- SIZE
960 sq ft
89 sq m
Key features
- Three Double Bedrooms with Storage
- Two Modern Bathrooms
- Open-Plan Kitchen and Reception
- South-Facing Views over Grand Union Canal
- Air Conditioning
- Resident Lift
- Concierge & On-Site Management
- Underground Parking by Negotiation
- Furnished
- Available now
Description
We are pleased to present this well-apportioned and modern three-bedroom apartment located on the 6th floor of a desirable waterside development in W2. Offering 960 square feet of internal living space, the apartment benefits from bright, south-facing views across the Grand Union Canal and toward Hyde Park.
• Spacious open-plan kitchen and reception room
• Three double bedrooms, all with built-in wardrobes
• Two modern bathrooms with high-quality fittings
• South-facing outlook with canal and park views
• Air conditioning and contemporary finishes throughout
• Lift access to upper floor
• Concierge service and on-site management
• Secure underground parking available by separate negotiation
• Offered furnished
• Available now
This purpose-built development combines modern city living with tranquil canal-side surroundings. Ideally positioned for Paddington Station and Westbourne Terrace, the property offers excellent transport links and access to nearby shopping and dining options.
For further details or to arrange a viewing, please get in touch.
Brochures
Particulars- COUNCIL TAXA payment made to your local authority in order to pay for local services like schools, libraries, and refuse collection. The amount you pay depends on the value of the property.Read more about council Tax in our glossary page.
- Band: G
- PARKINGDetails of how and where vehicles can be parked, and any associated costs.Read more about parking in our glossary page.
- Yes
- GARDENA property has access to an outdoor space, which could be private or shared.
- Ask agent
- ACCESSIBILITYHow a property has been adapted to meet the needs of vulnerable or disabled individuals.Read more about accessibility in our glossary page.
- Ask agent
Merchant Square East, London
Add an important place to see how long it'd take to get there from our property listings.
__mins driving to your place
Notes
Staying secure when looking for property
Ensure you're up to date with our latest advice on how to avoid fraud or scams when looking for property online.
Visit our security centre to find out moreDisclaimer - Property reference BAK190637_L. The information displayed about this property comprises a property advertisement. Rightmove.co.uk makes no warranty as to the accuracy or completeness of the advertisement or any linked or associated information, and Rightmove has no control over the content. This property advertisement does not constitute property particulars. The information is provided and maintained by Manors, London - Lettings. Please contact the selling agent or developer directly to obtain any information which may be available under the terms of The Energy Performance of Buildings (Certificates and Inspections) (England and Wales) Regulations 2007 or the Home Report if in relation to a residential property in Scotland.
*This is the average speed from the provider with the fastest broadband package available at this postcode. The average speed displayed is based on the download speeds of at least 50% of customers at peak time (8pm to 10pm). Fibre/cable services at the postcode are subject to availability and may differ between properties within a postcode. Speeds can be affected by a range of technical and environmental factors. The speed at the property may be lower than that listed above. You can check the estimated speed and confirm availability to a property prior to purchasing on the broadband provider's website. Providers may increase charges. The information is provided and maintained by Decision Technologies Limited. **This is indicative only and based on a 2-person household with multiple devices and simultaneous usage. Broadband performance is affected by multiple factors including number of occupants and devices, simultaneous usage, router range etc. For more information speak to your broadband provider.
Map data ©OpenStreetMap contributors.






