
Hunters Edge, Urlay Nook Road, Eaglescliffe, Stockton-on-Tees, County Durham, TS16 0QA

- PROPERTY TYPE
Detached
- BEDROOMS
4
- SIZE
Ask developer
- TENUREDescribes how you own a property. There are different types of tenure - freehold, leasehold, and commonhold.Read more about tenure in our glossary page.
Freehold
Key features
- Open plan kitchen/dining room with bi-fold doors
- En suite to bedroom 1
- Separate study
- Front-aspect living room
- Integral garage
- Energy efficient
- Downstairs WC
- Handy storage cupboards
Description
The Cullen combines thoughtful design with long-term flexibility. The ground floor includes a welcoming kitchen/dining room with bi-fold doors, a calm and spacious living room and an integral garage with direct access. Upstairs, four well-sized bedrooms, two bathrooms and a separate study give you space to work, host guests or simply spread out as your family grows.
Additional Information
- Tenure: Freehold
- Council tax band: Not made available by local authority until post-occupation
Parking - Single Garage
Room Dimensions
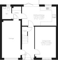
- Kitchen/Dining room - 5.47 x 3.08 metre
- Living room - 5.0 x 3.39 metre
- Bedroom 1 - 4.63 x 3.74 metre
- Bedroom 2 - 3.1 x 3.02 metre
- Bedroom 3 - 3.5 x 3.34 metre
- Bedroom 4 - 2.93 x 2.89 metre
- Study - 2.27 x 1.91 metre
- COUNCIL TAXA payment made to your local authority in order to pay for local services like schools, libraries, and refuse collection. The amount you pay depends on the value of the property.Read more about council Tax in our glossary page.
- Ask developer
- PARKINGDetails of how and where vehicles can be parked, and any associated costs.Read more about parking in our glossary page.
- Yes
- GARDENA property has access to an outdoor space, which could be private or shared.
- Yes
- ACCESSIBILITYHow a property has been adapted to meet the needs of vulnerable or disabled individuals.Read more about accessibility in our glossary page.
- Ask developer
Energy performance certificate - ask developer
- Choice of 3, 4 and 5 bedroom homes
- Great range of local amenities and schools
- Beautiful open spaces to explore
- Enviable transport links by road, rail and air
Hunters Edge, Urlay Nook Road, Eaglescliffe, Stockton-on-Tees, County Durham, TS16 0QA
Add an important place to see how long it'd take to get there from our property listings.
__mins driving to your place
Get an instant, personalised result:
- Show sellers you’re serious
- Secure viewings faster with agents
- No impact on your credit score
About the development
About Charles Church
Hunters Edge by Charles Church is a new and exciting development with a range of three, four and five-bedroom homes situated in the sought-after area of Eaglescliffe in the borough of Stockton-on-Tees.
Eaglescliffe is a friendly town situated on the north edge of the North Yorkshire moors, making it ideally positioned for families who love the outdoor lifestyle. The immediate area is well-equipped with amenities including convenience stores, a superstores, a train station, schools, a community centre, pharmacy and takeaway - meaning you'll find everything you need within a few minutes of the development.
Approximately five minutes' drive away is the historic and picturesque town of Yarm. With a history dating back to medieval times, Yarm was formerly the most important town and port on the River Tees, home to rope makers, brewers, tanners, clock makers and ship builders. Today, its cobbled streets host upmarket boutiques, restaurants, cafes, pubs and supermarkets, along with a great weekly market.
With all of this within easy reach of glorious countryside and several centres of industry in the North East, Hunters Edge could be your perfect place to call home.
Your mortgage
Notes
Staying secure when looking for property
Ensure you're up to date with our latest advice on how to avoid fraud or scams when looking for property online.
Visit our security centre to find out moreDisclaimer - Property reference 4_21. The information displayed about this property comprises a property advertisement. Rightmove.co.uk makes no warranty as to the accuracy or completeness of the advertisement or any linked or associated information, and Rightmove has no control over the content. This property advertisement does not constitute property particulars. The information is provided and maintained by Charles Church. Please contact the selling agent or developer directly to obtain any information which may be available under the terms of The Energy Performance of Buildings (Certificates and Inspections) (England and Wales) Regulations 2007 or the Home Report if in relation to a residential property in Scotland.
*This is the average speed from the provider with the fastest broadband package available at this postcode. The average speed displayed is based on the download speeds of at least 50% of customers at peak time (8pm to 10pm). Fibre/cable services at the postcode are subject to availability and may differ between properties within a postcode. Speeds can be affected by a range of technical and environmental factors. The speed at the property may be lower than that listed above. You can check the estimated speed and confirm availability to a property prior to purchasing on the broadband provider's website. Providers may increase charges. The information is provided and maintained by Decision Technologies Limited. **This is indicative only and based on a 2-person household with multiple devices and simultaneous usage. Broadband performance is affected by multiple factors including number of occupants and devices, simultaneous usage, router range etc. For more information speak to your broadband provider.
Map data ©OpenStreetMap contributors.






