
4 bedroom detached house for sale
Beau Gardens, Marton

- PROPERTY TYPE
Detached
- BEDROOMS
4
- BATHROOMS
2
- SIZE
Ask agent
- TENUREDescribes how you own a property. There are different types of tenure - freehold, leasehold, and commonhold.Read more about tenure in our glossary page.
Freehold
Key features
- Contemporary open-plan family home in quiet cul-de-sac.
- Stylish, well-presented with excellent flow.
- Spacious living room and modern dining kitchen.
- Four bedrooms, en-suite and family bathroom.
Description
Introduction
This contemporary and stylish family home offers modern open-plan living at its finest. Thoughtfully designed with excellent flow from room to room, the property provides a bright, spacious, and versatile layout perfectly suited to a growing family. Set within a quiet and family-friendly cul-de-sac, it is beautifully presented throughout and ready for immediate enjoyment.
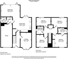
Ground Floor
A welcoming entrance hall sets the tone with its clean, modern aesthetic and easy access to the main living areas. To the front of the house is a convenient downstairs WC along with a practical utility room, ideal for laundry and additional storage.
The main living room offers a comfortable retreat, featuring large windows that allow natural light to pour in, creating a warm and inviting atmosphere.
The highlight of the ground floor is the impressive open-plan dining kitchen. Designed for both everyday living and entertaining, it includes a full range of quality integral appliances, generous worktop space, and sleek cabinetry. French doors open directly onto the rear garden, promoting indoor-outdoor living. The dining area flows effortlessly into a dedicated family sitting area, creating a sociable hub where everyone can gather—whether it’s for mealtimes, homework, or relaxing together.
First Floor
The first floor offers four well-appointed bedrooms, each with its own character and suitable for a variety of uses, from children’s rooms and a guest room to a home office. The principal bedroom benefits from its own modern en-suite shower room for added privacy and convenience. A stylish family bathroom, complete with contemporary fittings and a clean, modern finish, serves the remaining bedrooms.
Externally
Outside, the property features a driveway providing off-street parking and a single garage offering further storage or secure parking. The rear garden is enclosed, safe for children and pets, and provides a private outdoor space ideal for play, relaxation, or al fresco dining.
General Information
Tenure: Freehold.
Billing authority:
Band: E
Disclaimer
Harvey Brooks Properties Ltd (the Company). The Company for itself and for the vendor(s) or lessor(s) of this property for whom it acts as Agents gives notice that: (i) The particulars are a general outline only for the guidance of intending purchasers or lessees and do not constitute an offer or contract (ii) All descriptions are given in good faith and are believed to be correct, but any prospective purchasers or lessees should not rely on them as statements of fact and must satisfy themselves by inspection or otherwise as to their correctness (iii) All measurements of rooms contained within these particulars should be taken as approximate and it is the responsibility of the prospective purchaser or lessee or his professional advisor to determine the exact measurements and details as required prior to Contract (iv) None of the property's services or service installations have been tested and are not warranted to be in working order (v) No employee of the Company has any authority to make or give any representation or warranty whatsoever in relation to the property.
- COUNCIL TAXA payment made to your local authority in order to pay for local services like schools, libraries, and refuse collection. The amount you pay depends on the value of the property.Read more about council Tax in our glossary page.
- Band: E
- PARKINGDetails of how and where vehicles can be parked, and any associated costs.Read more about parking in our glossary page.
- Garage
- GARDENA property has access to an outdoor space, which could be private or shared.
- Yes
- ACCESSIBILITYHow a property has been adapted to meet the needs of vulnerable or disabled individuals.Read more about accessibility in our glossary page.
- Ask agent
Beau Gardens, Marton
Add an important place to see how long it'd take to get there from our property listings.
__mins driving to your place
Get an instant, personalised result:
- Show sellers you’re serious
- Secure viewings faster with agents
- No impact on your credit score
Your mortgage
Notes
Staying secure when looking for property
Ensure you're up to date with our latest advice on how to avoid fraud or scams when looking for property online.
Visit our security centre to find out moreDisclaimer - Property reference S1531233. The information displayed about this property comprises a property advertisement. Rightmove.co.uk makes no warranty as to the accuracy or completeness of the advertisement or any linked or associated information, and Rightmove has no control over the content. This property advertisement does not constitute property particulars. The information is provided and maintained by Harvey Brooks, Marton. Please contact the selling agent or developer directly to obtain any information which may be available under the terms of The Energy Performance of Buildings (Certificates and Inspections) (England and Wales) Regulations 2007 or the Home Report if in relation to a residential property in Scotland.
*This is the average speed from the provider with the fastest broadband package available at this postcode. The average speed displayed is based on the download speeds of at least 50% of customers at peak time (8pm to 10pm). Fibre/cable services at the postcode are subject to availability and may differ between properties within a postcode. Speeds can be affected by a range of technical and environmental factors. The speed at the property may be lower than that listed above. You can check the estimated speed and confirm availability to a property prior to purchasing on the broadband provider's website. Providers may increase charges. The information is provided and maintained by Decision Technologies Limited. **This is indicative only and based on a 2-person household with multiple devices and simultaneous usage. Broadband performance is affected by multiple factors including number of occupants and devices, simultaneous usage, router range etc. For more information speak to your broadband provider.
Map data ©OpenStreetMap contributors.





