
3 bedroom barn conversion for sale
Dob Park, Otley, North Yorkshire, LS21

- PROPERTY TYPE
Barn Conversion
- BEDROOMS
3
- BATHROOMS
2
- SIZE
2,000 sq ft
186 sq m
- TENUREDescribes how you own a property. There are different types of tenure - freehold, leasehold, and commonhold.Read more about tenure in our glossary page.
Freehold
Key features
- Available with NO ONWARD CHAIN
- Stunning converted barn
- Flexible living space arranged over two storeys
- Three substantial reception areas
- Bedroom with en-suite to the ground floor
- Two further bedrooms to the first floor
- Substantial quality fitted family dining kitchen
- Detached double garage and further parking facilities
- Gardens and land stretching to 2.13 acres (0.86 HA)
- Magnificent views over the Washburn Valley
Description
The Mistal is one of a collection of three properties located in the delightful hamlet of Dob Park and would suit a couple or family.
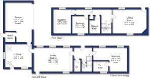
This stone-built home, set under a pitch York flagged roof once served as a barn and was converted in 2010 by the present owners with accommodation arranged over two floors.
To the ground floor is a substantial quality fitted kitchen with various appliances including an Aga. Snug, wc, bedroom with en-suite and internal access to the double garage and boiler room. To the upper storey are two further bedrooms, shower room and a generous sitting room with stunning views over the Washburn Valley.
Surrounding the house are garden/sitting out areas making the best of the stunning location, with an enclosed area of pasture land stretching to 2.13 acres/0.86ha. The property benefits from mains water and electricity with oil fired central heating and private drainage supply with a security system and sealed unit double glazing.
There is an opportunity to purchase an additional piece of land – Please ask agent for further information.
Despite its rural setting Otley is only some three miles distant with Ilkley roughly six miles, Harrogate thirteen miles and Skipton seventeen miles.
An exceptional rural location combining all the advantages of its setting - outstanding countryside walks with ease of access to the extensive shopping, recreational and schooling facilities in the above towns. Leeds/Bradford International Airport in Yeadon is located approximately six miles away and Yorkshire’s key commercial centres including Leeds, Bradford and York are within comfortable daily travelling distance by road. There is a national motorway network near to Wetherby making areas further afield more accessible by road.
Local Authority & Council Tax Band
• North Yorkshire Council
• Council Tax Band F
• The postcode LS21 2NA is located within the Nidderdale Area of Outstanding Natural Beauty (AONB), which has been rebranded as the Nidderdale National Landscape
Tenure, Services & Parking
• Freehold
• Mains water and electricity with oil fired central heating and private drainage supply with a security system and sealed unit double glazing
• Double garage and off street parking
Internet & Mobile Coverage
For information on Internet and Mobile coverage access the Ofcom website from this link
Flooding
For information on flood risks please use this link Check for flooding in England - GOV.UK
Agent’s Notes
If any issue such as location, communications or condition of the property are of material importance to your decision to view then please discuss these priorities with us before making arrangements to view. There is an opportunity to purchase an additional piece of land – Please ask agent for further information.
NOTE: “The legal pack will include a draft of the form of transfer to be entered into between the seller and the buyer, which will clarify the detail of the rights to be granted for the benefit of the property and any covenants to be observed and performed by the buyer etc. That transfer and the associated plan indicating the extent of property to be included in the sale will form the basis of the new title to be registered at the Land Registry following completion”.
Leave the centre of Otley in a northerly direction crossing the River Wharfe and continuing straight up Billams Hill onto Newall Carr Road. After approximately two miles and after passing The Roebuck public house, take the right hand fork before Weston Moor Road sign posted Dob Park. Follow the road for 1/4 mile where the entrance to the property will be identified by a Dacre, Son & Hartley ‘For Sale’ board with The Mistal set to the right hand side.
Brochures
Particulars- COUNCIL TAXA payment made to your local authority in order to pay for local services like schools, libraries, and refuse collection. The amount you pay depends on the value of the property.Read more about council Tax in our glossary page.
- Band: F
- PARKINGDetails of how and where vehicles can be parked, and any associated costs.Read more about parking in our glossary page.
- Garage,Driveway,Off street,Private
- GARDENA property has access to an outdoor space, which could be private or shared.
- Yes
- ACCESSIBILITYHow a property has been adapted to meet the needs of vulnerable or disabled individuals.Read more about accessibility in our glossary page.
- No wheelchair access
Dob Park, Otley, North Yorkshire, LS21
Add an important place to see how long it'd take to get there from our property listings.
__mins driving to your place
Get an instant, personalised result:
- Show sellers you’re serious
- Secure viewings faster with agents
- No impact on your credit score

Your mortgage
Notes
Staying secure when looking for property
Ensure you're up to date with our latest advice on how to avoid fraud or scams when looking for property online.
Visit our security centre to find out moreDisclaimer - Property reference OTL250161. The information displayed about this property comprises a property advertisement. Rightmove.co.uk makes no warranty as to the accuracy or completeness of the advertisement or any linked or associated information, and Rightmove has no control over the content. This property advertisement does not constitute property particulars. The information is provided and maintained by Dacre Son & Hartley, Otley. Please contact the selling agent or developer directly to obtain any information which may be available under the terms of The Energy Performance of Buildings (Certificates and Inspections) (England and Wales) Regulations 2007 or the Home Report if in relation to a residential property in Scotland.
*This is the average speed from the provider with the fastest broadband package available at this postcode. The average speed displayed is based on the download speeds of at least 50% of customers at peak time (8pm to 10pm). Fibre/cable services at the postcode are subject to availability and may differ between properties within a postcode. Speeds can be affected by a range of technical and environmental factors. The speed at the property may be lower than that listed above. You can check the estimated speed and confirm availability to a property prior to purchasing on the broadband provider's website. Providers may increase charges. The information is provided and maintained by Decision Technologies Limited. **This is indicative only and based on a 2-person household with multiple devices and simultaneous usage. Broadband performance is affected by multiple factors including number of occupants and devices, simultaneous usage, router range etc. For more information speak to your broadband provider.
Map data ©OpenStreetMap contributors.





