
Rocks Lane , Barnes , London, SW13

- PROPERTY TYPE
Apartment
- BEDROOMS
2
- BATHROOMS
1
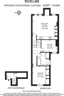
- SIZE
784 sq ft
73 sq m
Key features
- Beautifully rennovated
- Bespoke wardrobes
- Split level
- Bosch Appliances
- Induction cooking
- Views over Barnes Elms
- Highly Desirable Location
Description
The property is arranged across two thoughtfully designed levels, offering a light-filled and well-balanced living environment that seamlessly combines classic character with modern finishes. The lower floor comprises two generously proportioned bedrooms, including a principal bedroom featuring a bespoke handcrafted fitted wardrobe, alongside a contemporary bathroom finished to a high standard with quality fittings.
Occupying the upper level is an impressive open-plan reception and kitchen space, designed to optimise natural light and take full advantage of the elevated position. The kitchen is fitted with Bosch appliances, an induction hob and ample storage, while the reception area comfortably accommodates dining and entertaining, all framed by far-reaching views across Barnes Elms and surrounding green landscapes.
The apartment benefits from recently installed double-glazed windows throughout, enhancing thermal efficiency and acoustic comfort, as well as cleverly integrated storage solutions that further enhance the practicality of the layout.
Perfectly placed moments from the independent shops, cafés and amenities of Barnes Village, with excellent transport connections, the River Thames and open green spaces close by, this turnkey home represents a rare opportunity to acquire a refined and stylish apartment in one of South West London’s most desirable neighbourhoods.
Lease: 122 Years Remaining
Service Charge: £720pa
Ground Rent: Nil
Council Tax Band: D
Check your broadband and mobile coverage here
Check your flood risk here
- COUNCIL TAXA payment made to your local authority in order to pay for local services like schools, libraries, and refuse collection. The amount you pay depends on the value of the property.Read more about council Tax in our glossary page.
- Band: D
- PARKINGDetails of how and where vehicles can be parked, and any associated costs.Read more about parking in our glossary page.
- Ask agent
- GARDENA property has access to an outdoor space, which could be private or shared.
- Ask agent
- ACCESSIBILITYHow a property has been adapted to meet the needs of vulnerable or disabled individuals.Read more about accessibility in our glossary page.
- Ask agent
Rocks Lane , Barnes , London, SW13
Add an important place to see how long it'd take to get there from our property listings.
__mins driving to your place
Get an instant, personalised result:
- Show sellers you’re serious
- Secure viewings faster with agents
- No impact on your credit score
Your mortgage
Notes
Staying secure when looking for property
Ensure you're up to date with our latest advice on how to avoid fraud or scams when looking for property online.
Visit our security centre to find out moreDisclaimer - Property reference WILL2000C4D. The information displayed about this property comprises a property advertisement. Rightmove.co.uk makes no warranty as to the accuracy or completeness of the advertisement or any linked or associated information, and Rightmove has no control over the content. This property advertisement does not constitute property particulars. The information is provided and maintained by Willmotts, London. Please contact the selling agent or developer directly to obtain any information which may be available under the terms of The Energy Performance of Buildings (Certificates and Inspections) (England and Wales) Regulations 2007 or the Home Report if in relation to a residential property in Scotland.
*This is the average speed from the provider with the fastest broadband package available at this postcode. The average speed displayed is based on the download speeds of at least 50% of customers at peak time (8pm to 10pm). Fibre/cable services at the postcode are subject to availability and may differ between properties within a postcode. Speeds can be affected by a range of technical and environmental factors. The speed at the property may be lower than that listed above. You can check the estimated speed and confirm availability to a property prior to purchasing on the broadband provider's website. Providers may increase charges. The information is provided and maintained by Decision Technologies Limited. **This is indicative only and based on a 2-person household with multiple devices and simultaneous usage. Broadband performance is affected by multiple factors including number of occupants and devices, simultaneous usage, router range etc. For more information speak to your broadband provider.
Map data ©OpenStreetMap contributors.






