
3 bedroom flat for sale
Sainfoin Road, SW17

- PROPERTY TYPE
Flat
- BEDROOMS
3
- BATHROOMS
1
- SIZE
1,023 sq ft
95 sq m
Key features
- Three bedrooms
- Private garden
- Victorian conversion
- Over 1,000 square feet
- Balham High Street a seven-minute stroll away
- Tooting Bec an eight-minute walk
- The Common a ten-minute walk
- Northern Tube Line and trains
- Chain-free
- Share of freehold will be granted
Description
Full Description - Keating Estates are proud to present to market a spacious three bedroom apartment with a private garden, set within an attractive Victorian property on Sainfoin Road, a short stroll to the Northern Line and both Tooting Bec and Balham High Streets.
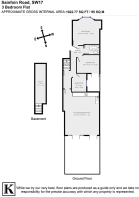
This property is a complete blank canvas, ready to move into straight away yet with the potential to add your own decorative touches over time. One of the main features is the exceptional open-plan kitchen/reception area at the rear of the property, this area is truly the heart of the home. The space is cleverly zoned to include a modern, fully fitted kitchen with integrated appliances and generous worktop space. The reception and dining area offers ample room for relaxing and socialising, with direct access to the low-maintenance garden through two sets of French doors that invite in plenty of light and create an airy, open feel.
The principal bedroom is located at the front of the property and has a wide bay window that bathes the room in natural light. The family bathroom is neutral featuring a bathtub and overhead shower and is positioned between the principal bedroom and the second bedroom. This layout allows easy access from all three bedrooms, enhancing the property’s suitability for shared living or family occupation. Leading off the second bedroom through French doors is a lovely courtyard which is an ideal space to enjoy a morning coffee or evening nightcap. The third bedroom, still with space for a double bed, can also be repurposed to suit needs such as a home office if desired.
Accessed internally via a staircase from the hallway, is the cellar, making it convenient and practical for everyday use. This versatile space presents an excellent opportunity for additional storage.
The location is fantastic, set on a quiet residential street, tucked away yet with ease of access to both Tooting Bec and Balham. Just a seven-minute walk brings you to the vibrant heart of central Balham boasting a rich array of local amenities. Purchasers will be spoilt for choice with a diverse selection of cafes, restaurants and bars including The Bedford, a historic pub and venue hosting live music, comedy, and theatre. The high street is lined with independent boutiques, well-known brands, and delightful eateries, catering to all tastes and preferences. For daily necessities, there are several large brand supermarkets within easy reach. In the other direction, Tooting Bec High street is an eight-minute walk boasting it’s own eclectic array of eateries and nightlife, including the famous Tooting Bec Market.
The transport links are excellent with Balham Stations both a ten-minute walk from your front door, offering access to both National Rail and Northern Line Tube services for swift and convenient access to Central London. Tooting Bec Tube Station is also a nine-minute stroll. The area is well-served by a variety of day and night bus routes, ensuring accessible travel throughout the city whatever the hour.
Tooting Bec Common is a ten-minute amble away, providing a peaceful retreat from the bustle of city life, this expansive green space is perfect for leisurely walks, picnics, and outdoor activities including a swim at Tooting Bec Lido, one of the largest outdoor swimming pools in the UK. Wandsworth Common and Clapham Common are also within leisurely walking distance if a change of scenery is ever desired.
Chain-free.
A share of the freehold will be granted upon completion of the sale of the final flat in the building.
Brochures
Sainfoin Road, SW17Brochure- COUNCIL TAXA payment made to your local authority in order to pay for local services like schools, libraries, and refuse collection. The amount you pay depends on the value of the property.Read more about council Tax in our glossary page.
- Band: D
- PARKINGDetails of how and where vehicles can be parked, and any associated costs.Read more about parking in our glossary page.
- Ask agent
- GARDENA property has access to an outdoor space, which could be private or shared.
- Yes
- ACCESSIBILITYHow a property has been adapted to meet the needs of vulnerable or disabled individuals.Read more about accessibility in our glossary page.
- Ask agent
Sainfoin Road, SW17
Add an important place to see how long it'd take to get there from our property listings.
__mins driving to your place
Get an instant, personalised result:
- Show sellers you’re serious
- Secure viewings faster with agents
- No impact on your credit score
Your mortgage
Notes
Staying secure when looking for property
Ensure you're up to date with our latest advice on how to avoid fraud or scams when looking for property online.
Visit our security centre to find out moreDisclaimer - Property reference 34354999. The information displayed about this property comprises a property advertisement. Rightmove.co.uk makes no warranty as to the accuracy or completeness of the advertisement or any linked or associated information, and Rightmove has no control over the content. This property advertisement does not constitute property particulars. The information is provided and maintained by Keating Estates, Balham. Please contact the selling agent or developer directly to obtain any information which may be available under the terms of The Energy Performance of Buildings (Certificates and Inspections) (England and Wales) Regulations 2007 or the Home Report if in relation to a residential property in Scotland.
*This is the average speed from the provider with the fastest broadband package available at this postcode. The average speed displayed is based on the download speeds of at least 50% of customers at peak time (8pm to 10pm). Fibre/cable services at the postcode are subject to availability and may differ between properties within a postcode. Speeds can be affected by a range of technical and environmental factors. The speed at the property may be lower than that listed above. You can check the estimated speed and confirm availability to a property prior to purchasing on the broadband provider's website. Providers may increase charges. The information is provided and maintained by Decision Technologies Limited. **This is indicative only and based on a 2-person household with multiple devices and simultaneous usage. Broadband performance is affected by multiple factors including number of occupants and devices, simultaneous usage, router range etc. For more information speak to your broadband provider.
Map data ©OpenStreetMap contributors.







