Land for sale
Loughton, Essex.
- PROPERTY TYPE
Land
- SIZE
Ask agent
Key features
- Full planning permission granted for a 3-bedroom detached dwelling
- Suitable for small developer, self-builder or owner-occupier build
- Back land small scale scheme
- Established residential location
- Central Line access via Loughton Underground Station
- Close proximity to Epping Forest and Loughton High Street
- Freehold Site
- Vacant
Description
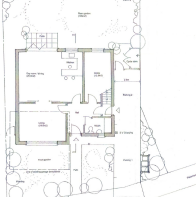
The Approval:
Approval has been granted for a single residential three-bedroom detached dwelling with two parking spaces & cycle store for two adult and two children’s cycles.
The newly created garden will span approximately 100M2.
An existing dropped kerb to the highway is in place.
The Current Site:
The proposed site consists of land between detached dwellings, facing to the Southeast with a detached garage structure on the plot. The site was previously part of a garden.
There is a double garage on the site to be demolished, and a swimming pool covered but filled with garden waste.
Total Site Area:
Approximately 275.00 SQM
Tenure:
Freehold
Location:
Rail:
Loughton Underground Station (Central Line) within convenient reach
Roads:
Excellent connectivity via the M11, M25 and A406
Amenities:
Loughton High Street offers a wide range of independent retailers, cafés, and services
Leisure:
Restaurants, cafés and pubs located throughout Loughton and surrounding areas
Viewings:
Strictly by appointment only
Information Available Upon Request. (Contact the land team)
Brochure
Planning Approval & Conditions
Design & Access Statement
S106 Document
Local Comparable’s
Loughton, Essex.
NEAREST STATIONS
Distances are straight line measurements from the centre of the postcode- Loughton Station0.7 miles
- Debden Station1.1 miles
- Buckhurst Hill Station1.7 miles
Notes
Disclaimer - Property reference a8846a20-4f97-408a-b5ed-dac7b3ab8926. The information displayed about this property comprises a property advertisement. Rightmove.co.uk makes no warranty as to the accuracy or completeness of the advertisement or any linked or associated information, and Rightmove has no control over the content. This property advertisement does not constitute property particulars. The information is provided and maintained by Allen Heritage, Shirley. Please contact the selling agent or developer directly to obtain any information which may be available under the terms of The Energy Performance of Buildings (Certificates and Inspections) (England and Wales) Regulations 2007 or the Home Report if in relation to a residential property in Scotland.
Map data ©OpenStreetMap contributors.









