Plot F1906 - Studio Apt, The Acer Apartments, White City

- PROPERTY TYPE
Studio
- BATHROOMS
1
- SIZE
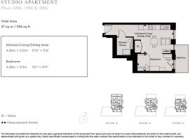
398 sq ft
37 sq m
Key features
- 15th floor communal roof terrace
- 24-hour concierge, estate management and security
- 5% deposit of 50% share value: £10,750
- Contemporary designed kitchen with integrated dishwasher, washing machine and fridge/freezer
- Exceptional transport links, just 8 minutes to Paddington and 12 minutes to Bond Street
- Full height windows throughout providing plenty of natural light
- Located a short walk from Westfield London, Europe's largest shopping destination
- Price represents purchasing a 50% share of the home's full market value with Shared Ownership
- Ready to move into 15th floor apartment with a private balcony
- Set in eight acres of beautifully landscaped gardens, water fountains and cascades
Description
Open Day: Sat 31 Jan | Shared Ownership apartment in prime Zone 2 location | Buy from a 5% deposit | Nearby Westfield with excellent transport links | Private balcony | 24h security & concierge
Highlight, working with Legal & General's Affordable Housing Division (L&G), is pleased to present this Shared Ownership studio apartment at The Acer Apartments in White City.
This apartment provides a unique opportunity to get on the property ladder in one of London's most sought after locations at an affordable price. All apartments at The Acer Apartments are available to buy from a 25% share of the full market value, however the price shown represents purchasing a 50% share.
Ready to move into, this home features a private balcony, full height windows providing plenty of natural light throughout and a contemporary designed kitchen with fully integrated appliances.
You'll have over 300 shops and restaurants on your doorstep at Westfield London and excellent access to Paddington, Bond Street and Oxford Circus in under 15 minutes from two nearby tube stations. When you want to unwind, the idyllic Hammersmith Park is just a short walk away.
The Acer Apartments are situated in eight acres of beautifully landscaped gardens and include 24-hour estate management, security and a dedicated concierge, plus a communal roof terrace on the 15th floor.
Contact us today to book a viewing.
Financial breakdown based on purchasing a 50% share of plot F1906 at The Acer Apartments
- Full market value: £430,000
- 50% share value: £215,000
- 5% deposit of 50% share value: £10,750
- Rent on remaining 50% share: £394pm
- Services charge: £256.66pm
These figures are a guideline and may vary according to individual incomes and circumstances. Please speak to one of our sales consultants for a detailed breakdown.
About Shared Ownership
Shared Ownership gives first time buyers and those that do not currently own a home the opportunity to get on the property ladder at in a more affordable way.
With Shared Ownership you can purchase a share of a property's full market value, while paying a reduced market rent on the remaining share. Later on, you'll have the option to purchase more shares in your new home and, if you choose to, own the property outright.
As the deposit and mortgage amounts are based on the share value, the costs are generally much less than purchasing outright or renting, making it a fantastic option to get onto the housing ladder.
Eligibility Criteria
To be eligible for a home at The Acer Apartments, you'll need to:
- Have a combined household income under £90,000
- Not own a property, or part of a property, at the time of completing on your purchase
- Be unable to purchase a suitable home to meet your housing needs on the open market
- Have a minimum of £5,000 to cover the costs of buying a home
Shared Ownership eligibility criteria applies. Council tax bands are often not released until the property is complete. If you need any guidance, please get in touch with our Sales Consultants otherwise the local authority or the developer may be able to help. Interior images are indicative only and may differ from the actual apartment's layout.
Brochures
Brochure 1Brochure 2Brochure 3- COUNCIL TAXA payment made to your local authority in order to pay for local services like schools, libraries, and refuse collection. The amount you pay depends on the value of the property.Read more about council Tax in our glossary page.
- Ask agent
- PARKINGDetails of how and where vehicles can be parked, and any associated costs.Read more about parking in our glossary page.
- Ask agent
- GARDENA property has access to an outdoor space, which could be private or shared.
- Yes
- ACCESSIBILITYHow a property has been adapted to meet the needs of vulnerable or disabled individuals.Read more about accessibility in our glossary page.
- Ask agent
Energy performance certificate - ask agent
Plot F1906 - Studio Apt, The Acer Apartments, White City
Add an important place to see how long it'd take to get there from our property listings.
__mins driving to your place
Get an instant, personalised result:
- Show sellers you’re serious
- Secure viewings faster with agents
- No impact on your credit score
Your mortgage
Notes
Staying secure when looking for property
Ensure you're up to date with our latest advice on how to avoid fraud or scams when looking for property online.
Visit our security centre to find out moreDisclaimer - Property reference 25569. The information displayed about this property comprises a property advertisement. Rightmove.co.uk makes no warranty as to the accuracy or completeness of the advertisement or any linked or associated information, and Rightmove has no control over the content. This property advertisement does not constitute property particulars. The information is provided and maintained by Highlight, Covering Nationwide. Please contact the selling agent or developer directly to obtain any information which may be available under the terms of The Energy Performance of Buildings (Certificates and Inspections) (England and Wales) Regulations 2007 or the Home Report if in relation to a residential property in Scotland.
*This is the average speed from the provider with the fastest broadband package available at this postcode. The average speed displayed is based on the download speeds of at least 50% of customers at peak time (8pm to 10pm). Fibre/cable services at the postcode are subject to availability and may differ between properties within a postcode. Speeds can be affected by a range of technical and environmental factors. The speed at the property may be lower than that listed above. You can check the estimated speed and confirm availability to a property prior to purchasing on the broadband provider's website. Providers may increase charges. The information is provided and maintained by Decision Technologies Limited. **This is indicative only and based on a 2-person household with multiple devices and simultaneous usage. Broadband performance is affected by multiple factors including number of occupants and devices, simultaneous usage, router range etc. For more information speak to your broadband provider.
Map data ©OpenStreetMap contributors.





