
Dymchurch Road, Hythe, Kent, CT21 4AA

- PROPERTY TYPE
Semi-Detached
- BEDROOMS
3
- SIZE
Ask developer
- TENUREDescribes how you own a property. There are different types of tenure - freehold, leasehold, and commonhold.Read more about tenure in our glossary page.
Freehold
Key features
- 10 year NHBC Buildmark warranty
- 2 year customer care warranty
- Open plan kitchen and dining room
- Utility room with external access
- Separate sitting room
- Built in wardrobes to bedrooms 1, 2, and 3
- En-suite to bedroom 1
- Low cost energy efficient homes
- High performance glazing for maximum all year round comfort
Description
This home is ready to move into with upgrades included. Enjoy a 5% deposit contribution and £8,000 towards your flooring when you legally complete by 30th June! Speak to our Sales Consultants today to find out more.
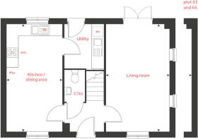
Traditional from the outside but ideally suited to modern living, the Becket is the perfect family home. The ground floor features a large living room and an open plan kitchen/dining room, offering flexible, sociable, bright and airy spaces. The kitchen/dining room provides direct access into the garden through a set of double doors and an adjoining utility room. On the first floor are three generously-sized, bright bedrooms and two bathrooms, located around a central landing. Bright, flexible, and with ample storage, this is the ultimately sociable home and one which is ideally suited to family life.
*Offer available on selected plots only for a limited time. Offer may be withdrawn or extended at any time and reservation must be taken on or before 30.06.2026 (or such other date as may be communicated in writing). Cannot be exchanged for cash. Subject to lender's approval. This offer is not to be used in conjunction with any other offer, discount, promotion or scheme. Maximum cash incentive cannot exceed 5% of the property purchase price. Cannot be exchange for cash. To take advantage of this offer you must claim before reserving a property from us. Your home may be repossessed if you do not keep up repayments on a mortgage or any other debt secured on it. Subject to individual lender terms and conditions. Our usual reservation and sales terms and conditions also apply. Flooring must be chosen from our Enahnce range.
Room Dimensions
- Kitchen / dining area - 2.94 x 5.61 9' 8" x 18' 5"
- Living room - 3.30 x 5.61 10' 10" x 18' 5"
- Bedroom 1 - 3.33 x 3.45 10' 11" x 11' 4"
- Bedroom 2 - 3.44 x 2.95 11' 3" x 9' 8"
- Bedroom 3 - 3.00 x 2.57 9' 10" x 8' 5"
- COUNCIL TAXA payment made to your local authority in order to pay for local services like schools, libraries, and refuse collection. The amount you pay depends on the value of the property.Read more about council Tax in our glossary page.
- Ask developer
- PARKINGDetails of how and where vehicles can be parked, and any associated costs.Read more about parking in our glossary page.
- Ask developer
- GARDENA property has access to an outdoor space, which could be private or shared.
- Yes
- ACCESSIBILITYHow a property has been adapted to meet the needs of vulnerable or disabled individuals.Read more about accessibility in our glossary page.
- Ask developer
Energy performance certificate - ask developer
Dymchurch Road, Hythe, Kent, CT21 4AA
Add an important place to see how long it'd take to get there from our property listings.
__mins driving to your place
Get an instant, personalised result:
- Show sellers you’re serious
- Secure viewings faster with agents
- No impact on your credit score
About Linden Homes Kent
Stunning show homes now open - book your appointment to view!
Whether you're a first time buyer, growing family or looking to downsize, Martello lakes offers a stunning collection of homes designed to suit every lifestyle.
Set along the beautiful Kent coastline, this unique development combines modern living with the charm of seaside life. Hythe is a vibrant coastal town with everything you need close at hand - boutique shops, cafes, restaurants and essential services. The town boasts a long stretch of beach with views across the English Channel , perfect for relaxing walks, picnics or water sports. You'll also find the historic Royal Military Canal and scenic countryside trails nearby, offering endless opportunities for outdoor adventures.
So if you're looking for a home that blends coastal charm, modern design, and a welcoming community, Martello Lakes is the perfect place to start your next chapter.
Affordability
Notes
Staying secure when looking for property
Ensure you're up to date with our latest advice on how to avoid fraud or scams when looking for property online.
Visit our security centre to find out moreDisclaimer - Property reference 3_67. The information displayed about this property comprises a property advertisement. Rightmove.co.uk makes no warranty as to the accuracy or completeness of the advertisement or any linked or associated information, and Rightmove has no control over the content. This property advertisement does not constitute property particulars. The information is provided and maintained by Linden Homes Kent. Please contact the selling agent or developer directly to obtain any information which may be available under the terms of The Energy Performance of Buildings (Certificates and Inspections) (England and Wales) Regulations 2007 or the Home Report if in relation to a residential property in Scotland.
*This is the average speed from the provider with the fastest broadband package available at this postcode. The average speed displayed is based on the download speeds of at least 50% of customers at peak time (8pm to 10pm). Fibre/cable services at the postcode are subject to availability and may differ between properties within a postcode. Speeds can be affected by a range of technical and environmental factors. The speed at the property may be lower than that listed above. You can check the estimated speed and confirm availability to a property prior to purchasing on the broadband provider's website. Providers may increase charges. The information is provided and maintained by Decision Technologies Limited. **This is indicative only and based on a 2-person household with multiple devices and simultaneous usage. Broadband performance is affected by multiple factors including number of occupants and devices, simultaneous usage, router range etc. For more information speak to your broadband provider.
Map data ©OpenStreetMap contributors.






