
4 bedroom detached house for sale
Meadowsweet Drive, Edinburgh, EH4 8FD

- PROPERTY TYPE
Detached
- BEDROOMS
4
- SIZE
Ask developer
- TENUREDescribes how you own a property. There are different types of tenure - freehold, leasehold, and commonhold.Read more about tenure in our glossary page.
Ask developer
Key features
- Up to 105% Part Exchange or £27,999 Deposit Boost
- Flooring & upgrades fitted worth over £15,700
- Final Kinghorn for sale
- Move in spring 2026
- Detached home
- Driveway & garage
- Kitchen/dining area
- Spacious lounge
- Four double bedrooms
- En suite to main bedroom
Description
The lounge in The Kinghorn is bright and airy thanks to a glazed bay with French doors leading to the garden, while the open-plan kitchen flows into a light-filled dining area. A separate utility room, downstairs WC and integral garage also make this a practical home. All four double bedrooms are upstairs with an en suite in main bedroom and a family bathroom on the landing.
There is plenty of outdoor space right on your doorstep, with cycle paths and walkways throughout the development, to ensure that everyone can enjoy living in this beautiful location at Cammo Meadows, just 6 miles from Edinburgh city centre.
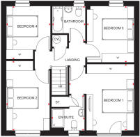
Room Dimensions
- Bathroom - 2105mm x 2228mm (6'10" x 7'3")
- Bedroom 1 - 4133mm x 4226mm (13'6" x 13'10")
- Bedroom 2 - 2764mm x 4425mm (9'0" x 14'6")
- Bedroom 3 - 3008mm x 3575mm (9'10" x 11'8")
- Bedroom 4 - 2813mm x 3376mm (9'2" x 11'0")
- Ensuite 1 - 2105mm x 2235mm (6'10" x 7'3")
- Kitchen / Dining - 3267mm x 6009mm (10'8" x 19'8")
- Lounge - 5066mm x 4293mm (16'7" x 14'1")
- Utility - 1871mm x 1748mm (6'1" x 5'8")
- WC - 1105mm x 2149mm (3'7" x 7'0")
- COUNCIL TAXA payment made to your local authority in order to pay for local services like schools, libraries, and refuse collection. The amount you pay depends on the value of the property.Read more about council Tax in our glossary page.
- Ask developer
- PARKINGDetails of how and where vehicles can be parked, and any associated costs.Read more about parking in our glossary page.
- Yes
- GARDENA property has access to an outdoor space, which could be private or shared.
- Yes
- ACCESSIBILITYHow a property has been adapted to meet the needs of vulnerable or disabled individuals.Read more about accessibility in our glossary page.
- Ask developer
Energy performance certificate - ask developer
- 3 & 4 BEDROOM HOMES AVAILABLE
- OFFERS AVAILABLE TO HELP YOU MOVE
- GET MOVING FROM JANUARY 2024
- JUST 6 MILES FROM EDINBURGH CITY CENTRE
Meadowsweet Drive, Edinburgh, EH4 8FD
Add an important place to see how long it'd take to get there from our property listings.
__mins driving to your place
Get an instant, personalised result:
- Show sellers you’re serious
- Secure viewings faster with agents
- No impact on your credit score
About David Wilson Homes
Located in the picturesque suburb of north-west Edinburgh, find your new home from our range of terraced and detached 3 and 4 bedroom homes, designed with modern family life in mind. There is plenty of outdoor space right on your doorstep, with cycle paths and walkways throughout the development, to ensure that everyone can enjoy living in this beautiful location.
Your mortgage
Notes
Staying secure when looking for property
Ensure you're up to date with our latest advice on how to avoid fraud or scams when looking for property online.
Visit our security centre to find out moreDisclaimer - Property reference 4_H7619126. The information displayed about this property comprises a property advertisement. Rightmove.co.uk makes no warranty as to the accuracy or completeness of the advertisement or any linked or associated information, and Rightmove has no control over the content. This property advertisement does not constitute property particulars. The information is provided and maintained by David Wilson Homes. Please contact the selling agent or developer directly to obtain any information which may be available under the terms of The Energy Performance of Buildings (Certificates and Inspections) (England and Wales) Regulations 2007 or the Home Report if in relation to a residential property in Scotland.
*This is the average speed from the provider with the fastest broadband package available at this postcode. The average speed displayed is based on the download speeds of at least 50% of customers at peak time (8pm to 10pm). Fibre/cable services at the postcode are subject to availability and may differ between properties within a postcode. Speeds can be affected by a range of technical and environmental factors. The speed at the property may be lower than that listed above. You can check the estimated speed and confirm availability to a property prior to purchasing on the broadband provider's website. Providers may increase charges. The information is provided and maintained by Decision Technologies Limited. **This is indicative only and based on a 2-person household with multiple devices and simultaneous usage. Broadband performance is affected by multiple factors including number of occupants and devices, simultaneous usage, router range etc. For more information speak to your broadband provider.
Map data ©OpenStreetMap contributors.






