
2 bedroom apartment for sale
Windermere Terrace, Liverpool, L8

- PROPERTY TYPE
Apartment
- BEDROOMS
2
- BATHROOMS
1
- SIZE
Ask agent
Key features
- Showstopping Two Bedroom Duplex Apartment
- Tranquil Location In Desirable Princes Park Area
- An Opportunity For Those Looking To Downsize
- Finished To Exemplary Specifications Throughout
- Stunning Open Plan Kitchen/Dining/Living Area
- Two Spacious & Beautifully Presented Bedrooms
- Luxurious Three-Piece Bathroom & Separate WC
- Private Balcony & Secure Allocated Parking Space
Description
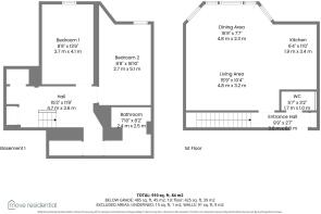
Nestled in a tranquil setting on Windermere Terrace in the leafy and desirable suburb of Princes Park, L8, is this showstopping two bedroom duplex apartment, showcased to the sales market courtesy of appointed agents Move Residential. Boasting generous living proportions thoughtfully arranged over two floors, this property effortlessly blends high specification modern finishes with exquisite original features, offering a truly unique luxury living experience for an extremely lucky buyer.
Accessed via a well-maintained communal entrance, you are welcomed into the property by an inviting entrance hall which leads through to a sensational plan kitchen, dining and living space, flooded with natural light courtesy of a huge walk-in bay window. Immaculately finished in a neutral tasteful décor which complements the attractive wood style flooring, this presents a welcoming and stylish setting for relaxing and entertaining guests. The kitchen is complete with a range of sleek fitted base and wall units, complementary worktops and a selection of integrated appliances. This space further benefits from access out to a balcony, providing a serene spot for soaking up the sun during the warmer months. Concluding this floor is a convenient WC.
Descending the staircase to the lower level you will discover the sleeping accommodation, consisting of two spacious and impeccably presented double bedrooms, each featuring fitted wardrobes and plush carpeting. Accompanying the sleeping accommodation and adding the finishing touch to the interior of this wonderful apartment is a deluxe three-piece family bathroom suite.
Externally, residents further benefit from secure gated access and allocated parking.
EPC Rating: D
- COUNCIL TAXA payment made to your local authority in order to pay for local services like schools, libraries, and refuse collection. The amount you pay depends on the value of the property.Read more about council Tax in our glossary page.
- Band: C
- PARKINGDetails of how and where vehicles can be parked, and any associated costs.Read more about parking in our glossary page.
- Yes
- GARDENA property has access to an outdoor space, which could be private or shared.
- Ask agent
- ACCESSIBILITYHow a property has been adapted to meet the needs of vulnerable or disabled individuals.Read more about accessibility in our glossary page.
- Ask agent
Energy performance certificate - ask agent
Windermere Terrace, Liverpool, L8
Add an important place to see how long it'd take to get there from our property listings.
__mins driving to your place
Get an instant, personalised result:
- Show sellers you’re serious
- Secure viewings faster with agents
- No impact on your credit score

Your mortgage
Notes
Staying secure when looking for property
Ensure you're up to date with our latest advice on how to avoid fraud or scams when looking for property online.
Visit our security centre to find out moreDisclaimer - Property reference 04df1a94-c9d5-46b5-866f-83bccef6cba3. The information displayed about this property comprises a property advertisement. Rightmove.co.uk makes no warranty as to the accuracy or completeness of the advertisement or any linked or associated information, and Rightmove has no control over the content. This property advertisement does not constitute property particulars. The information is provided and maintained by Move Residential, Mossley Hill. Please contact the selling agent or developer directly to obtain any information which may be available under the terms of The Energy Performance of Buildings (Certificates and Inspections) (England and Wales) Regulations 2007 or the Home Report if in relation to a residential property in Scotland.
*This is the average speed from the provider with the fastest broadband package available at this postcode. The average speed displayed is based on the download speeds of at least 50% of customers at peak time (8pm to 10pm). Fibre/cable services at the postcode are subject to availability and may differ between properties within a postcode. Speeds can be affected by a range of technical and environmental factors. The speed at the property may be lower than that listed above. You can check the estimated speed and confirm availability to a property prior to purchasing on the broadband provider's website. Providers may increase charges. The information is provided and maintained by Decision Technologies Limited. **This is indicative only and based on a 2-person household with multiple devices and simultaneous usage. Broadband performance is affected by multiple factors including number of occupants and devices, simultaneous usage, router range etc. For more information speak to your broadband provider.
Map data ©OpenStreetMap contributors.





