
Winifred Street, Old Town, Swindon, SN3

- PROPERTY TYPE
Town House
- BEDROOMS
3
- BATHROOMS
2
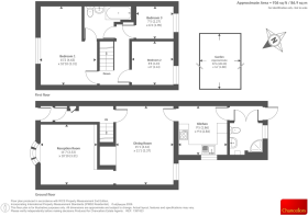
- SIZE
936 sq ft
87 sq m
- TENUREDescribes how you own a property. There are different types of tenure - freehold, leasehold, and commonhold.Read more about tenure in our glossary page.
Freehold
Key features
- Three Well-Proportioned Bedrooms
- Mid-Terrace
- No Onward Chain
- Perfect Investment or First Home
- En-suite Bathroom
- Old Town Location
Description
This attractive three-bedroom terraced home is ideally situated in the heart of Old Town, Swindon, offering a perfect blend of character, comfort, and convenience. Arranged over two floors, the property provides well-proportioned living accommodation ideal for families, professionals,
Property Details
This attractive three-bedroom terraced home is ideally situated in the heart of Old Town, Swindon, offering a perfect blend of character, comfort, and convenience. Arranged over two floors, the property provides well-proportioned living accommodation ideal for families, professionals, or investors alike.
The ground floor features a welcoming entrance hallway leading to a bright and spacious living room, complemented by a separate dining area that flows seamlessly into a fitted kitchen with ample storage and workspace. To the rear, the property benefits from access to a private, low-maintenance garden—ideal for outdoor dining and entertaining.
Upstairs, the first floor comprises three generously sized bedrooms and a modern family bathroom. The home retains a warm and inviting feel throughout, with plenty of natural light and scope for personalisation.
Located within walking distance of Old Town’s popular cafés, restaurants, schools, and green spaces, the property also offers excellent transport links and easy access to Swindon town centre. This is a fantastic opportunity to secure a well-located home in one of Swindon’s most sought-after areas.
Brochures
More details from Chancellors- COUNCIL TAXA payment made to your local authority in order to pay for local services like schools, libraries, and refuse collection. The amount you pay depends on the value of the property.Read more about council Tax in our glossary page.
- Band: C
- PARKINGDetails of how and where vehicles can be parked, and any associated costs.Read more about parking in our glossary page.
- Ask agent
- GARDENA property has access to an outdoor space, which could be private or shared.
- Private garden
- ACCESSIBILITYHow a property has been adapted to meet the needs of vulnerable or disabled individuals.Read more about accessibility in our glossary page.
- Ask agent
Winifred Street, Old Town, Swindon, SN3
Add an important place to see how long it'd take to get there from our property listings.
__mins driving to your place
Get an instant, personalised result:
- Show sellers you’re serious
- Secure viewings faster with agents
- No impact on your credit score
Your mortgage
Notes
Staying secure when looking for property
Ensure you're up to date with our latest advice on how to avoid fraud or scams when looking for property online.
Visit our security centre to find out moreDisclaimer - Property reference 6077225. The information displayed about this property comprises a property advertisement. Rightmove.co.uk makes no warranty as to the accuracy or completeness of the advertisement or any linked or associated information, and Rightmove has no control over the content. This property advertisement does not constitute property particulars. The information is provided and maintained by Chancellors, Swindon. Please contact the selling agent or developer directly to obtain any information which may be available under the terms of The Energy Performance of Buildings (Certificates and Inspections) (England and Wales) Regulations 2007 or the Home Report if in relation to a residential property in Scotland.
*This is the average speed from the provider with the fastest broadband package available at this postcode. The average speed displayed is based on the download speeds of at least 50% of customers at peak time (8pm to 10pm). Fibre/cable services at the postcode are subject to availability and may differ between properties within a postcode. Speeds can be affected by a range of technical and environmental factors. The speed at the property may be lower than that listed above. You can check the estimated speed and confirm availability to a property prior to purchasing on the broadband provider's website. Providers may increase charges. The information is provided and maintained by Decision Technologies Limited. **This is indicative only and based on a 2-person household with multiple devices and simultaneous usage. Broadband performance is affected by multiple factors including number of occupants and devices, simultaneous usage, router range etc. For more information speak to your broadband provider.
Map data ©OpenStreetMap contributors.








