2 bedroom terraced house for rent
High Street North, West Mersea, Colchester

Letting details
- Let available date:
- 14/02/2026
- Deposit:
- £1,500A deposit provides security for a landlord against damage, or unpaid rent by a tenant.Read more about deposit in our glossary page.
- Min. Tenancy:
- Ask agent How long the landlord offers to let the property for.Read more about tenancy length in our glossary page.
- Let type:
- Long term
- Furnish type:
- Unfurnished
- Council Tax:
- Ask agent
- PROPERTY TYPE
Terraced
- BEDROOMS
2
- BATHROOMS
1
- SIZE
Ask agent
Key features
- Brand New Property
- Two Double Bedroom
- Kitchen, Bathroom and Cloakroom
- Private Rear Garden
- Two Allocated Parking Spaces
- Gas Central Heating
- Available Mid February
- Unfurnished
Description
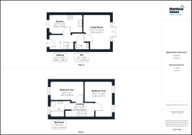
Entrance/Hallway - 2.88 x 1.80 (9'5" x 5'10") - A light entrance room with tiled floor. Stairs rising to the first floor landing with an oak bannister and under stairs cloakroom. Doors leading to:
Wc - 1.71 x 0.82 (5'7" x 2'8") - A modern cloakroom with tiled floor and low level WC with chrome effect flush plate. Wall mounted vanity unit with chrome effect mixer tap and stone splashback.
Kitchen - 3.96 x 2.29 (12'11" x 7'6") - A brand new kitchen suite with stainless steel single bowl sink and drainer with mixer tap over inset into stone worksurface with cupboards and drawers under. Matching range of eye level wall mounted units. Free standing double electric oven and hob with extractor hood over. Plumbing for washing machine. Space for fridge/freezer. Window to front aspect. Stone floor.
Living Room - 3.33 x 4.22 (10'11" x 13'10") - A large and bright room with French doors to rear garden. Stone floor.
Landing - 2.73 x 1.67 (8'11" x 5'5") - With doors leading to:
Bedroom One - 3.34 x 4.21 (10'11" x 13'9") - A double bedroom with two windows to the rear aspect. Carpeted.
Bedroom Two - 3.97 x 2.20 (13'0" x 7'2") - A double bedroom with window to front aspect. Carpeted.
Bathroom - 2.37 x 1.89 (7'9" x 6'2") - A luxury suite with white panel bath and shower attachment over and glass shower screen. Low level WC and wall mounted vanity unit with chrome effect mixer tap and stone splashback. heated towel rail and window to front aspect.
Outside - To the front of the property is two allocated parking spaces and a communal bin store. Pedestrian access to the rear garden via side gate. The rear garden is laid to patio and all enclosed by panel fence.
Tenancy Information - The rent is exclusive of utilities and council tax.
Minimum term: 12 months
*Deposit: £1,500.00
Council Tax Band: B
Availability: Mid Feb
EPC Rating: B
No Pets
Non Smokers
* MJPC have partnered with Reposit to offer a Cashless Deposit option to the normal 5 week deposit. Please ask any team member for more details.
MJPC is a member of propertymark which is a client money protection scheme, and also a member of The Property Ombudsman, which is a redress scheme. You can find out more details on the agent's website or by contacting the agent directly
Relevant Letting Fees - As well as paying the rent, you may also be required to make the following permitted payments.
Permitted payments:
Before the tenancy starts (payable to Matthew James Property Consultants, "the Agent")
Holding Deposit: 1 weeks' rent
Deposit: 5 weeks' rent
During the tenancy (payable to the Agent):
Payment of £50 for the variation, assignment or novation of the tenancy (capped at £50 or reasonable costs)
Payment of interest for the late payment of rent at a rate of 3% above the base rate of the Bank of England.
Payment up to £100.00 for the reasonably incurred costs for the loss of keys/security devices.
Payment of any unpaid rent or other reasonable costs associated with your early termination of the tenancy.
MJPC is a member of propertymark which is a client money protection scheme, and a member of The Property Ombudsman,
which is a redress scheme. You can find out more details on the agent’s website or by contacting the agent directly.
Viewings - Strictly by prior appointment with the Letting Agent.
If you wish to proceed with this property following your viewing then please supply an application either directly to the office or via our website - the property in question and click "Make an Offer"
Brochures
High Street North, West Mersea, ColchesterBrochure- COUNCIL TAXA payment made to your local authority in order to pay for local services like schools, libraries, and refuse collection. The amount you pay depends on the value of the property.Read more about council Tax in our glossary page.
- Band: B
- PARKINGDetails of how and where vehicles can be parked, and any associated costs.Read more about parking in our glossary page.
- Driveway
- GARDENA property has access to an outdoor space, which could be private or shared.
- Yes
- ACCESSIBILITYHow a property has been adapted to meet the needs of vulnerable or disabled individuals.Read more about accessibility in our glossary page.
- Ask agent
High Street North, West Mersea, Colchester
Add an important place to see how long it'd take to get there from our property listings.
__mins driving to your place
About Matthew James Property Consultants, Colchester
Suite 7 Runkins Farm, Langham Lane, Boxted, Colchester, CO4 5HZ

Notes
Staying secure when looking for property
Ensure you're up to date with our latest advice on how to avoid fraud or scams when looking for property online.
Visit our security centre to find out moreDisclaimer - Property reference 34396455. The information displayed about this property comprises a property advertisement. Rightmove.co.uk makes no warranty as to the accuracy or completeness of the advertisement or any linked or associated information, and Rightmove has no control over the content. This property advertisement does not constitute property particulars. The information is provided and maintained by Matthew James Property Consultants, Colchester. Please contact the selling agent or developer directly to obtain any information which may be available under the terms of The Energy Performance of Buildings (Certificates and Inspections) (England and Wales) Regulations 2007 or the Home Report if in relation to a residential property in Scotland.
*This is the average speed from the provider with the fastest broadband package available at this postcode. The average speed displayed is based on the download speeds of at least 50% of customers at peak time (8pm to 10pm). Fibre/cable services at the postcode are subject to availability and may differ between properties within a postcode. Speeds can be affected by a range of technical and environmental factors. The speed at the property may be lower than that listed above. You can check the estimated speed and confirm availability to a property prior to purchasing on the broadband provider's website. Providers may increase charges. The information is provided and maintained by Decision Technologies Limited. **This is indicative only and based on a 2-person household with multiple devices and simultaneous usage. Broadband performance is affected by multiple factors including number of occupants and devices, simultaneous usage, router range etc. For more information speak to your broadband provider.
Map data ©OpenStreetMap contributors.





