1 bedroom apartment for sale
John George Apartments, Purley

- PROPERTY TYPE
Apartment
- BEDROOMS
1
- BATHROOMS
1
- SIZE
Ask agent
Key features
- Shared ownership* - price shown is 25% share of £360,000
- 1st floor spacious apartment
- 70% now reserved
- Luxury kitchen with premium silestone worktop and built in appliances
- Private balcony
- 990 year lease
- Available for immediate occupation
- 0.4 miles to Purley Train Station / 25 mins train journey to London Victoria
Description
SUMMARY
70% of homes now sold! Spacious one-bedroom first-floor apartment offers modern living in a peaceful setting on highly desirable, tree-lined Russell Hill Road. Enjoy the convenience of being within walking distance to Purley train station, making commuting effortless.
DESCRIPTION
Open plan living is enhanced by beautifully engineered wood flooring and private balcony. The kitchen boasts sleek gloss finished units and stylish white Silestone worktop and is fully equipped with Zanussi appliances, including built in oven, hob and extractor, fridge freezer and dishwasher, offering both functionality and elegance. The washer dryer has been thoughtfully place in the large storage cupboard in the hall allowing you to enjoy peaceful, uninterrupted open plan living.
The bedroom provides a cosy retreat, complete with soft luxury carpet and built in wardrobe for seamless storage. The bathroom is beautifully designed with a white suite, shower over the bath, chrome heated towel rail, and full height mirror, all set against porcelain-tiled walls and flooring.
Each apartment come with the security of a 990 year lease and structural warranty offering peace of mind and long term stability.
These homes are available for immediate occupation.
Additional Information
Purley's excellent transport links means its an ideal location for anyone who wants to enjoy the capital without living among the hustle and bustle. Sat on the southern edge of London where the city meets Surrey. Purley's close proximity to the capital makes it ideal for commuters - a 10-minute walk takes you Purley Train Station, with London Bridge and Victoria station just 25 minutes away. Croydon's popular town centre is just 3.5 miles away. Yet you can be in open green space just a few minutes' walk from home and enjoying areas of outstanding natural beauty within a 30-minute drive.
Shared Ownership*
If you are struggling to find a home you can afford or you don't have enough money saved for a deposit, shared ownership might be the solution. The scheme allows you to buy an affordable percentage of a home while paying rent on the rest. You have the option to increase your percentage over time or if you want to move simply sell your percentage as you would any other property.
To qualify for the scheme at John George Apartments, there are some general requirements you must meet;
-You must be 18 years or older
-You must have a household income of less than £90,000 per years as this scheme is based within London
-You must be unable to afford to buy a suitable home outright on the open market
-You must be a first time buyer or if you own another home, you must sell this before completing on your new purchase and have a buyer in place at point of application.
-Applicants from all boroughs who qualify for shared ownership may apply, however, priority will be given for purchasers who currently reside or work in the London Borough of Croydon.
Applicants will be required to have a financial assessment by an Independent Financial Advisor appointed by Hexagon to assess affordability in line with the Affordable Homes guidelines set by the HCA/GLA. You will also be required to submit a credit report.
Your home is at risk if you fail to keep up payments on your rent or mortgage. Please make sure you can afford the repayments before committing to purchase.
Key Facts About This Apartment
Plot 18
Full market value £360,000
25% share value £90,000
Service charge estimated £151 per month
Rent on the unsold equity £618.75 per month
Tenure: Leasehold
Lease term: 990 years
Ground rent: Peppercorn
For more information, please refer to the Key Information Document
Disclaimer
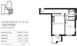
All measurements shown on floor plans are taken from their maximum point where applicable. Images are CGIs/digitally dressed by AI and from the show home and used to provide indicative finishes only.
We currently hold lease details as displayed above, should you require further information please contact the branch. Please note additional fees could be incurred for items such as leasehold packs.
1. MONEY LAUNDERING REGULATIONS - Intending purchasers will be asked to produce identification documentation at a later stage and we would ask for your co-operation in order that there will be no delay in agreeing the sale.
2: These particulars do not constitute part or all of an offer or contract.
3: The measurements indicated are supplied for guidance only and as such must be considered incorrect.
4: Potential buyers are advised to recheck the measurements before committing to any expense.
5: Connells has not tested any apparatus, equipment, fixtures, fittings or services and it is the buyers interests to check the working condition of any appliances.
6: Connells has not sought to verify the legal title of the property and the buyers must obtain verification from their solicitor.
Brochures
PDF Property ParticularsFull Details- COUNCIL TAXA payment made to your local authority in order to pay for local services like schools, libraries, and refuse collection. The amount you pay depends on the value of the property.Read more about council Tax in our glossary page.
- Band: TBC
- PARKINGDetails of how and where vehicles can be parked, and any associated costs.Read more about parking in our glossary page.
- Ask agent
- GARDENA property has access to an outdoor space, which could be private or shared.
- Ask agent
- ACCESSIBILITYHow a property has been adapted to meet the needs of vulnerable or disabled individuals.Read more about accessibility in our glossary page.
- Ask agent
Energy performance certificate - ask agent
John George Apartments, Purley
Add an important place to see how long it'd take to get there from our property listings.
__mins driving to your place
Get an instant, personalised result:
- Show sellers you’re serious
- Secure viewings faster with agents
- No impact on your credit score
Your mortgage
Notes
Staying secure when looking for property
Ensure you're up to date with our latest advice on how to avoid fraud or scams when looking for property online.
Visit our security centre to find out moreDisclaimer - Property reference RED408595. The information displayed about this property comprises a property advertisement. Rightmove.co.uk makes no warranty as to the accuracy or completeness of the advertisement or any linked or associated information, and Rightmove has no control over the content. This property advertisement does not constitute property particulars. The information is provided and maintained by Connells, Surrey Sussex New Homes. Please contact the selling agent or developer directly to obtain any information which may be available under the terms of The Energy Performance of Buildings (Certificates and Inspections) (England and Wales) Regulations 2007 or the Home Report if in relation to a residential property in Scotland.
*This is the average speed from the provider with the fastest broadband package available at this postcode. The average speed displayed is based on the download speeds of at least 50% of customers at peak time (8pm to 10pm). Fibre/cable services at the postcode are subject to availability and may differ between properties within a postcode. Speeds can be affected by a range of technical and environmental factors. The speed at the property may be lower than that listed above. You can check the estimated speed and confirm availability to a property prior to purchasing on the broadband provider's website. Providers may increase charges. The information is provided and maintained by Decision Technologies Limited. **This is indicative only and based on a 2-person household with multiple devices and simultaneous usage. Broadband performance is affected by multiple factors including number of occupants and devices, simultaneous usage, router range etc. For more information speak to your broadband provider.
Map data ©OpenStreetMap contributors.







