
2 bedroom flat for sale
Davaar House ,Ferry Court , Cardiff, CF11 0LB

- PROPERTY TYPE
Flat
- BEDROOMS
2
- BATHROOMS
2
- SIZE
Ask agent
Key features
- *** NEW INSTRUCTION, MUST BE VIEWED ***
- MODERN 2 BEDROOM APARTMENT
- EPC RATING B - ENERGY EFFICIENT - LOW BILLS
- MODERN OPEN PLAN LIVING ROOM / KITCHEN / DINER
- WELL PRESENTED THROUGHOUT
- CLOSE TO LOCAL AMENITIES
- DEDICATED PARKING
- WATERFRONT VIEWS
- POPULAR LOCATION
- VIEWING HIGHLY RECOMMENDED
Description
2 BEDROOM APARTMENT - IDEAL FOR PROFESSIONAL COUPLES, NOT TO BE MISSED, SPACIOUS ACCOMMODATION.
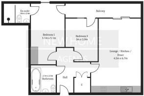
Double glazing, open plan living room / diner / kitchen, balcony, 2 good size bedroom including ensuite and modern bathroom.
Secure entry, clean & tidy communal areas, allocated parking, popular location close to numerous local amenities including shops, schools and transport links.
*** Why you will love this property ***
- Circa 657Sqft
- Spacious
- Open plan
- Well presented
- Ensuite bedroom
- Modern bathroom
- Secure development
- School catchment i.e Ysgol Gynradd Gymraeg Hamadryad
- Transport links via M4 (M)
This property, located in the highly desirable and vibrant waterfront district of Cardiff Bay, offers a compelling blend of tranquil living, comprehensive amenities, and superb transport links. Situated in the heart of this iconic regeneration area, the home benefits from a strong community feel and close proximity to an abundance of stylish restaurants, cafes, and bars, all within walking distance. Residents are perfectly placed to enjoy the cultural highlights of the Wales Millennium Centre and the scenic bay with its watersport activities . The area is exceptionally well-connected: its position ensures a swift road link with effortless access to the M4 motorway, while Cardiff Bay railway station provides easy access to the main lines. With its mix of desirable local services and strategic commuter positioning, this property is highly attractive to professionals and city dwellers seeking a well-placed and aspirational home.
VIEWING HIGHLY RECOMMENDED, VIEW EARLY TO AVOID DISAPPOINTMENT. INDEPENDENT MORTGAGE ADVICE AVAILABLE IF REQUIRED, WE LOOK FORWARD TO HEARING FROM YOU.
Brochures
Full Details- COUNCIL TAXA payment made to your local authority in order to pay for local services like schools, libraries, and refuse collection. The amount you pay depends on the value of the property.Read more about council Tax in our glossary page.
- Band: E
- PARKINGDetails of how and where vehicles can be parked, and any associated costs.Read more about parking in our glossary page.
- Yes
- GARDENA property has access to an outdoor space, which could be private or shared.
- Ask agent
- ACCESSIBILITYHow a property has been adapted to meet the needs of vulnerable or disabled individuals.Read more about accessibility in our glossary page.
- Ask agent
Energy performance certificate - ask agent
Davaar House ,Ferry Court , Cardiff, CF11 0LB
Add an important place to see how long it'd take to get there from our property listings.
__mins driving to your place
Get an instant, personalised result:
- Show sellers you’re serious
- Secure viewings faster with agents
- No impact on your credit score
Your mortgage
Notes
Staying secure when looking for property
Ensure you're up to date with our latest advice on how to avoid fraud or scams when looking for property online.
Visit our security centre to find out moreDisclaimer - Property reference 12758456. The information displayed about this property comprises a property advertisement. Rightmove.co.uk makes no warranty as to the accuracy or completeness of the advertisement or any linked or associated information, and Rightmove has no control over the content. This property advertisement does not constitute property particulars. The information is provided and maintained by New Home Agents, Leeds. Please contact the selling agent or developer directly to obtain any information which may be available under the terms of The Energy Performance of Buildings (Certificates and Inspections) (England and Wales) Regulations 2007 or the Home Report if in relation to a residential property in Scotland.
*This is the average speed from the provider with the fastest broadband package available at this postcode. The average speed displayed is based on the download speeds of at least 50% of customers at peak time (8pm to 10pm). Fibre/cable services at the postcode are subject to availability and may differ between properties within a postcode. Speeds can be affected by a range of technical and environmental factors. The speed at the property may be lower than that listed above. You can check the estimated speed and confirm availability to a property prior to purchasing on the broadband provider's website. Providers may increase charges. The information is provided and maintained by Decision Technologies Limited. **This is indicative only and based on a 2-person household with multiple devices and simultaneous usage. Broadband performance is affected by multiple factors including number of occupants and devices, simultaneous usage, router range etc. For more information speak to your broadband provider.
Map data ©OpenStreetMap contributors.





