
Avon Road, Chelmsford, CM1
- PROPERTY TYPE
Land
- SIZE
Ask agent
Key features
- 0.066 Plot
- Planning Permission Granted
- Development Potential
- Desirable Location
Description
Guide Area: approx. 0.053 acres
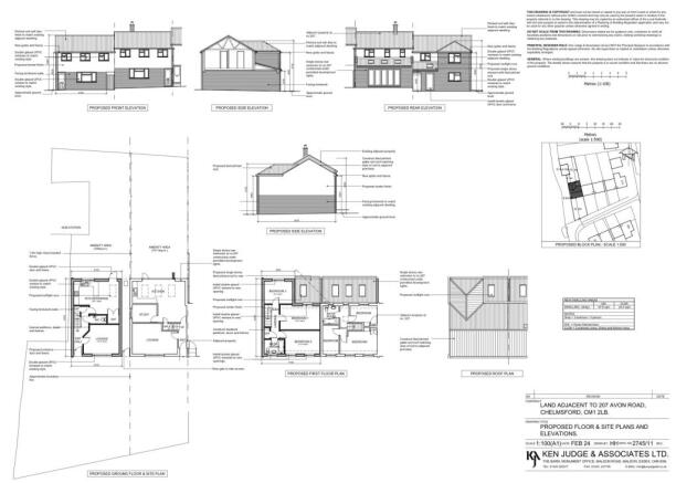
A rare opportunity to acquire a small infill parcel of land situated in an established residential area of Chelmsford. The site extends to approximately 0.053 acres and is shown edged red on the accompanying plans.
The plot is long and narrow in nature and sits adjacent to existing residential properties, making it potentially suitable for a variety of uses, subject to the necessary planning consents. The surrounding area is predominantly residential, with good access to local amenities, road links, and Chelmsford city centre.
Detailed drawings are available, including existing site plans, floor plans and elevations, providing an indication of the plot’s context and layout. Interested parties are advised to make their own enquiries with the local planning authority regarding potential development or use.
EPC Rating: C
Avon Road, Chelmsford, CM1
NEAREST STATIONS
Distances are straight line measurements from the centre of the postcode- Chelmsford Station1.6 miles
Notes
Disclaimer - Property reference 7d5133c2-d8f1-4878-8f79-bf7c81d287a3. The information displayed about this property comprises a property advertisement. Rightmove.co.uk makes no warranty as to the accuracy or completeness of the advertisement or any linked or associated information, and Rightmove has no control over the content. This property advertisement does not constitute property particulars. The information is provided and maintained by Christopher Anthony Estates, Essex. Please contact the selling agent or developer directly to obtain any information which may be available under the terms of The Energy Performance of Buildings (Certificates and Inspections) (England and Wales) Regulations 2007 or the Home Report if in relation to a residential property in Scotland.
Map data ©OpenStreetMap contributors.





