
Ashwell Common, Graveley, Hitchin, Hertfordshire, SG4

- PROPERTY TYPE
Detached
- BEDROOMS
4
- BATHROOMS
3
- SIZE
2,420 sq ft
225 sq m
- TENUREDescribes how you own a property. There are different types of tenure - freehold, leasehold, and commonhold.Read more about tenure in our glossary page.
Freehold
Key features
- Exclusive development of just four brand new homes
- Highly regarded village location
- 10 year build warranty
- Air source heat pumps
- Underfloor heating throughout
- Completion Spring 2026
- Early bird reservation and viewings available
- Generous, private gardens
- Driveways and garages 6.5m in length
Description
Ready to view......A select development of exclusive detached family homes built to an exacting standard and specification by a local bespoke builder.
Thoughtfully designed, Gothic Bower offers a choice of three properties within small enclave on the outskirts of Graveley village with distant views towards the village cricket ground and countryside beyond.
Prices range from £825,000 to £1,125,000 with further details, appointments to view and specification available upon request.
LOCATION
Graveley is a semi-rural village set between Stevenage, Hitchin and Baldock renowned for its attractive village pond, pretty church and the hospitality provided at the Wagon & Horses Public House. The village offers a well-regarded school, Pre-School and both a 9 and 18 hole Golf Course at Chesfield Downs with a Gym and driving range. There is also easy access to the A1M and local Sainsburys supermarket. The neighbouring town of Stevenage comprises of both New and Old Towns. There are comprehensive shopping facilities in the New Town, Schools, a Leisure Complex, Theatre and Arts centre and the mainline station to London's Kings Cross providing fast and regular trains to Kings Cross in 23mins. The charming medieval market town of Hitchin is under 5 miles away and has many fine Tudor and Georgian buildings, particularly around the market square. Near to the market square stands the large medieval parish church of St Mary. The town provides good shopping as well as a swimming (truncated)
SPECIFICATION
* 10 year build warranty * Air source heat pumps for heating and hot water * Under floor heating throughout * Residence composite casement windows with glazing bars in colour grained wood * Sheerline open out contemporary bi fold doors * Residence 9 French Door in colour Grained White * Luxury LVT Camero flooring to all ground floors, ensuites & bathrooms * Plot 2 & 3 pre plumbed for air conditioning * eVolo electric vehicle charge point * Nobilia Laser in colour Sand for the German designed wall/floor units in the kitchen and utility room * Nobilia Laser in colour Taupe for the German designed kitchen island units * Polished 20mm quartz ‘Calcatta Gold’ worktops, upstands, splash backs to hob and waterfall edges to kitchen islands * Bosch integrated fridge/freezer * Bosch built in oven & combi oven – black * Bosch induction hob – black * Bosch canopy cooker hood – anthracite / concealed in wall cupboard * Bosch fully integrated dishwasher * (truncated)
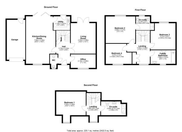
THE ACCOMMODATION COMPRISES
RECEPTION HALLWAY
3.76m x 2.03m
LIVING ROOM
4.93m x 4m
OFFICE
3.96m x 2.16m
KITCHEN/DINING ROOM
7.67m x 4.93m
UTILITY ROOM
2.67m x 2.18m
FIRST FLOOR LANDING
3.5m x 3.48m
BEDROOM TWO
4.27m x 3.96m
EN-SUITE SHOWER ROOM
2.18m x 2.06m
BEDROOM THREE
4.32m x 3.96m
Measurements into recess.
BEDROOM FOUR
4.93m x 3.58m
Measurements into recess.
FAMILY BATHROOM
3.96m x 1.96m
SECOND FLOOR LANDING
BEDROOM ONE
4.95m x 4.93m
EN-SUITE BATHROOM
3.96m x 2.7m
GARAGE
6.48m x 3.02m
- COUNCIL TAXA payment made to your local authority in order to pay for local services like schools, libraries, and refuse collection. The amount you pay depends on the value of the property.Read more about council Tax in our glossary page.
- Band: TBC
- PARKINGDetails of how and where vehicles can be parked, and any associated costs.Read more about parking in our glossary page.
- Yes
- GARDENA property has access to an outdoor space, which could be private or shared.
- Yes
- ACCESSIBILITYHow a property has been adapted to meet the needs of vulnerable or disabled individuals.Read more about accessibility in our glossary page.
- Ask agent
Energy performance certificate - ask agent
Ashwell Common, Graveley, Hitchin, Hertfordshire, SG4
Add an important place to see how long it'd take to get there from our property listings.
__mins driving to your place
Get an instant, personalised result:
- Show sellers you’re serious
- Secure viewings faster with agents
- No impact on your credit score
Affordability
Notes
Staying secure when looking for property
Ensure you're up to date with our latest advice on how to avoid fraud or scams when looking for property online.
Visit our security centre to find out moreDisclaimer - Property reference STE260008. The information displayed about this property comprises a property advertisement. Rightmove.co.uk makes no warranty as to the accuracy or completeness of the advertisement or any linked or associated information, and Rightmove has no control over the content. This property advertisement does not constitute property particulars. The information is provided and maintained by Putterills, Stevenage. Please contact the selling agent or developer directly to obtain any information which may be available under the terms of The Energy Performance of Buildings (Certificates and Inspections) (England and Wales) Regulations 2007 or the Home Report if in relation to a residential property in Scotland.
*This is the average speed from the provider with the fastest broadband package available at this postcode. The average speed displayed is based on the download speeds of at least 50% of customers at peak time (8pm to 10pm). Fibre/cable services at the postcode are subject to availability and may differ between properties within a postcode. Speeds can be affected by a range of technical and environmental factors. The speed at the property may be lower than that listed above. You can check the estimated speed and confirm availability to a property prior to purchasing on the broadband provider's website. Providers may increase charges. The information is provided and maintained by Decision Technologies Limited. **This is indicative only and based on a 2-person household with multiple devices and simultaneous usage. Broadband performance is affected by multiple factors including number of occupants and devices, simultaneous usage, router range etc. For more information speak to your broadband provider.
Map data ©OpenStreetMap contributors.








