Cardigan, SA43

- PROPERTY TYPE
House
- BEDROOMS
3
- BATHROOMS
2
- SIZE
Ask agent
- TENUREDescribes how you own a property. There are different types of tenure - freehold, leasehold, and commonhold.Read more about tenure in our glossary page.
Ask agent
Key features
- Situated within Walking Distance of Cardigan Town
- A Recently Refurbished Three Bedroom Semi Detached Bungalow
- Outside the Property has Parking, Garage and Low Maintenance Gardens to the Front and Rear.
- To the First Floor there is a Bedroom with Ensuite Shower Room.
- The Accommodation Comprising: Vestibule, Hall, Living Room, Fitted Kitchen, Two Bedrooms and a Bathroom
Description
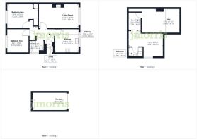
A recently refurbished Three Bedroom Semi Detached Bungalow situated within walking distance of Cardigan Town with accommodation comprising: Vestibule, Hall, Living Room, Fitted Kitchen, Two Bedrooms and a Bathroom. To the first floor there is a Bedroom with Ensuite Shower Room. Outside the property has Parking, Garage and Low Maintenance Gardens to the Front and Rear.
EPC Rating: E
Porch
Upvc door, tiled flooring, part glazed door to:-
Hall
Radiator, fuse box, coved ceiling, wood effect floor, built-in storage.
Living Room
Upvc window, coal effect fire, radiator.
Kitchen
Having a range of wall and base units, gas hob with extractor fan over, built-in oven, tiled splashback, part tiled walls, tiled flooring, radiator, stainless steel sink Upvc window, plumbing for dishwasher and washing machine, void for dryer.
Bedroom One
Upvc window, radiator, built-in storage.
Bedroom Two
Upvc window, radiator.
Bathroom
Upvc window, low flush WC, hand wash basin with unit, heated towel rail, part tiled walls, tiled floor, shower cubicle with sliding door.
Landing
Attic space.
Bedroom Three
Wooden floor, Upvc window, radiator.
Ensuite
Low flush WC, hand wash basin, shower cubicle with electric shower.
Externally
To the front there is a paved front garden, driveway and garage. To the rear, the garden has been paved for ease of maintenance, greenhouse.
Utilities & Services
Heating Source: Gas central heating.
Services:
Electric: Mains
Water: Mains
Drainage: Mains
Local Authority: Ceredigion County Council
Council Tax: Band C
Tenure: Freehold and available with vacant possession upon completion.
What Three Words: ///demanding.lance.segments
Anti Money Laundering & Ability To Purchase
Please note when making an offer we will require information to enable us to confirm all parties identities as required by Anti Money Laundering (AML) Regulations. We may also conduct a digital search to confirm your identity.
We will also require full proof of funds such as a mortgage agreement in principle, proof of cash deposit or if no mortgage is required, we will require sight of a bank statement. Should the purchase be funded through the sale of another property, we will require confirmation the sale is sufficient enough to cover the purchase.
Broadband Availability
According to the Ofcom website, this property has both standard and superfast broadband available, with speeds up to Standard 1mbps upload and 15mbps download and Superfast 20mbps upload and 80mbps download. Please note this data was obtained from an online search conducted on ofcom.org.uk and was correct at the time of production.
Some rural areas are yet to have the infrastructure upgraded and there are alternative options which include satellite and mobile broadband available. Prospective buyers should make their own enquiries into the availability of services with their chosen provider.
Mobile Phone Coverage
The Ofcom website states that the property has the following indoor mobile coverage
EE Voice - Likely & Data - Likely
Three Voice - Limited & Data - Limited
O2 Voice - Likely & Data - Likely
Vodafone. Voice - Likely & Data - Limited
Results are predictions and not a guarantee. Actual services available may be different from results and may be affected by network outages. Please note this data was obtained from an online search conducted on ofcom.org.uk and was correct at the time of production. Prospective buyers should make their own enquiries into the availability of services with their chosen provider.
Brochures
Property Brochure- COUNCIL TAXA payment made to your local authority in order to pay for local services like schools, libraries, and refuse collection. The amount you pay depends on the value of the property.Read more about council Tax in our glossary page.
- Ask agent
- PARKINGDetails of how and where vehicles can be parked, and any associated costs.Read more about parking in our glossary page.
- Yes
- GARDENA property has access to an outdoor space, which could be private or shared.
- Yes
- ACCESSIBILITYHow a property has been adapted to meet the needs of vulnerable or disabled individuals.Read more about accessibility in our glossary page.
- Ask agent
Energy performance certificate - ask agent
Cardigan, SA43
Add an important place to see how long it'd take to get there from our property listings.
__mins driving to your place
Get an instant, personalised result:
- Show sellers you’re serious
- Secure viewings faster with agents
- No impact on your credit score
Your mortgage
Notes
Staying secure when looking for property
Ensure you're up to date with our latest advice on how to avoid fraud or scams when looking for property online.
Visit our security centre to find out moreDisclaimer - Property reference 40708a5c-b602-4236-b23a-1c7c38059af6. The information displayed about this property comprises a property advertisement. Rightmove.co.uk makes no warranty as to the accuracy or completeness of the advertisement or any linked or associated information, and Rightmove has no control over the content. This property advertisement does not constitute property particulars. The information is provided and maintained by JJ Morris, Cardigan. Please contact the selling agent or developer directly to obtain any information which may be available under the terms of The Energy Performance of Buildings (Certificates and Inspections) (England and Wales) Regulations 2007 or the Home Report if in relation to a residential property in Scotland.
*This is the average speed from the provider with the fastest broadband package available at this postcode. The average speed displayed is based on the download speeds of at least 50% of customers at peak time (8pm to 10pm). Fibre/cable services at the postcode are subject to availability and may differ between properties within a postcode. Speeds can be affected by a range of technical and environmental factors. The speed at the property may be lower than that listed above. You can check the estimated speed and confirm availability to a property prior to purchasing on the broadband provider's website. Providers may increase charges. The information is provided and maintained by Decision Technologies Limited. **This is indicative only and based on a 2-person household with multiple devices and simultaneous usage. Broadband performance is affected by multiple factors including number of occupants and devices, simultaneous usage, router range etc. For more information speak to your broadband provider.
Map data ©OpenStreetMap contributors.






