3 bedroom semi-detached house for sale
Astley Gardens, Seaton Sluice, Whitley Bay

- PROPERTY TYPE
Semi-Detached
- BEDROOMS
3
- BATHROOMS
1
- SIZE
1,228 sq ft
114 sq m
- TENUREDescribes how you own a property. There are different types of tenure - freehold, leasehold, and commonhold.Read more about tenure in our glossary page.
Freehold
Key features
- Immaculate Semi Detached
- Fantastic Location
- Perfect Family Accommodation
- Close to Coast
- Living Room with Bay Window
- Beautiful Modern Kitchen
- Conservatory
- 3 Bedrooms
- Modern Bathroom
- Garage/Gardens
Description
A beautifully updated Semi Detached house situated within close proximity to the beautiful North East coastline, an excellent range of amenities, schools and transport links. Internal viewing is essential to fully appreciate the quality of accommodation on offer.
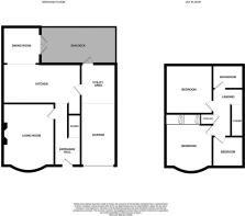
Briefly comprising a welcoming Reception Hallway with an attractive staircase leading to first floor, Living Room with Bay window to the front with feature fire surround, a gorgeous Breakfasting Kitchen with an excellent range of modern wall & floor units with contrasting work surfaces incorporating a sink unit with mixer tap, space for cooker, integrated dishwasher, access to garage, square arch to Conservatory currently used as dining area, French doors opening to rear garden. To the first floor there are 3 Bedrooms master with fitted wardrobes, Family Bathroom with White suite with mains shower over and screen, vanity washbasin, low level w.c. ladder style radiator. Externally there is a driveway leading to a long garage with space for white goods and wall mounted central heating boiler. To the rear there is a superb fenced garden with enclosed BBQ area, decking and astro turf.
The property is decorated tastefully throughout with new internal doors throughout.
Reception Hallway -
Living Room - 4.93m x 3.48m (16'2 x 11'5) -
Kitchen - 5.56m x 2.67m (18'3 x 8'9) -
Conservatory - 2.87m x 2.79m (9'5 x 9'2) -
First Floor Landing -
Bedroom One - 3.15m x 3.23m (10'4 x 10'7) -
Bedroom Two - 3.30m x 3.20m (10'10 x 10'6) -
Bedroom Three - 2.08m x 2.08m (6'10 x 6'10) -
Bathroom/W.C. - 2.08m x 1.88m (6'10 x 6'2) -
Externally -
Brochures
Astley Gardens, Seaton Sluice, Whitley BayBrochure- COUNCIL TAXA payment made to your local authority in order to pay for local services like schools, libraries, and refuse collection. The amount you pay depends on the value of the property.Read more about council Tax in our glossary page.
- Band: C
- PARKINGDetails of how and where vehicles can be parked, and any associated costs.Read more about parking in our glossary page.
- Yes
- GARDENA property has access to an outdoor space, which could be private or shared.
- Yes
- ACCESSIBILITYHow a property has been adapted to meet the needs of vulnerable or disabled individuals.Read more about accessibility in our glossary page.
- Ask agent
Astley Gardens, Seaton Sluice, Whitley Bay
Add an important place to see how long it'd take to get there from our property listings.
__mins driving to your place
Get an instant, personalised result:
- Show sellers you’re serious
- Secure viewings faster with agents
- No impact on your credit score
Your mortgage
Notes
Staying secure when looking for property
Ensure you're up to date with our latest advice on how to avoid fraud or scams when looking for property online.
Visit our security centre to find out moreDisclaimer - Property reference 34397914. The information displayed about this property comprises a property advertisement. Rightmove.co.uk makes no warranty as to the accuracy or completeness of the advertisement or any linked or associated information, and Rightmove has no control over the content. This property advertisement does not constitute property particulars. The information is provided and maintained by M L Estates Ltd, Seaton Delaval. Please contact the selling agent or developer directly to obtain any information which may be available under the terms of The Energy Performance of Buildings (Certificates and Inspections) (England and Wales) Regulations 2007 or the Home Report if in relation to a residential property in Scotland.
*This is the average speed from the provider with the fastest broadband package available at this postcode. The average speed displayed is based on the download speeds of at least 50% of customers at peak time (8pm to 10pm). Fibre/cable services at the postcode are subject to availability and may differ between properties within a postcode. Speeds can be affected by a range of technical and environmental factors. The speed at the property may be lower than that listed above. You can check the estimated speed and confirm availability to a property prior to purchasing on the broadband provider's website. Providers may increase charges. The information is provided and maintained by Decision Technologies Limited. **This is indicative only and based on a 2-person household with multiple devices and simultaneous usage. Broadband performance is affected by multiple factors including number of occupants and devices, simultaneous usage, router range etc. For more information speak to your broadband provider.
Map data ©OpenStreetMap contributors.





