2 bedroom semi-detached house for sale
Kelso Drive, East Ayton, Scarborough

- PROPERTY TYPE
Semi-Detached
- BEDROOMS
2
- BATHROOMS
1
- SIZE
Ask agent
Key features
- Open plan living room/dining room
- Downstairs cloakroom
- Gas Central Heating
- Double Glazing
- Off street parking
- Lawned gardens front and rear
Description
Stonebridge Shaw is pleased to bring to the market, on behalf of Mulberry Homes Yorkshire, this fantastic two bedroom, semi-detached house with Gas Central Heating and Double Glazing
Available to purchase on Shared Ownership
Full market value - £200K
Marketed at £50,000 for a 25% share, rent on the remaining 75% share would be £79.33 per week. In addition to the rent there would be a monthly estate charges, service charges and buildings insurance but these figures are currently still to be confirmed
Other share options available subject to eligibility
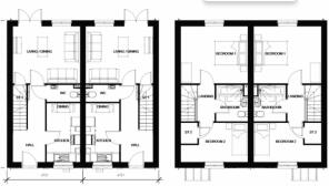
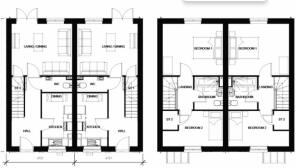
GROUND FLOOR:
Entrance Hall: leading to Kitchen, handy WC and living/dining room.
Kitchen: At the heart of this home is the contemporary kitchen, including:
Symphony kitchen — Hacienda Nordic Blue
Indesit conventional single electric oven, electric Hob and cooker hood
Stainless steel splash-back
Fridge freezer space
Washing machine space
Lounge/Dining Room: A light filled living room with french doors leading to the garden.
FIRST FLOOR:
Bedrooms: Two generous bedrooms, 1 double and 1 single
Bathroom: Family bathroom with shower over bath and glass screen.
OUTSIDE:
Gardens: Lawned front and rear gardens
Parking: Off-street parking for 2 cars
Note from the team at Stonebridge Shaw
We always aim to ensure our properties are displayed accurately with the photos, virtual tour, floor plans and descriptions provided. However these are intended as a guide and purchasers must satisfy themselves by viewing the property in person.
Brochures
Full DetailsBrochureKey Information Document- COUNCIL TAXA payment made to your local authority in order to pay for local services like schools, libraries, and refuse collection. The amount you pay depends on the value of the property.Read more about council Tax in our glossary page.
- Ask agent
- PARKINGDetails of how and where vehicles can be parked, and any associated costs.Read more about parking in our glossary page.
- Yes
- GARDENA property has access to an outdoor space, which could be private or shared.
- Yes
- ACCESSIBILITYHow a property has been adapted to meet the needs of vulnerable or disabled individuals.Read more about accessibility in our glossary page.
- Ask agent
Kelso Drive, East Ayton, Scarborough
Add an important place to see how long it'd take to get there from our property listings.
__mins driving to your place
Get an instant, personalised result:
- Show sellers you’re serious
- Secure viewings faster with agents
- No impact on your credit score
Your mortgage
Notes
Staying secure when looking for property
Ensure you're up to date with our latest advice on how to avoid fraud or scams when looking for property online.
Visit our security centre to find out moreDisclaimer - Property reference 12807679. The information displayed about this property comprises a property advertisement. Rightmove.co.uk makes no warranty as to the accuracy or completeness of the advertisement or any linked or associated information, and Rightmove has no control over the content. This property advertisement does not constitute property particulars. The information is provided and maintained by Stonebridge Shaw, Portishead. Please contact the selling agent or developer directly to obtain any information which may be available under the terms of The Energy Performance of Buildings (Certificates and Inspections) (England and Wales) Regulations 2007 or the Home Report if in relation to a residential property in Scotland.
*This is the average speed from the provider with the fastest broadband package available at this postcode. The average speed displayed is based on the download speeds of at least 50% of customers at peak time (8pm to 10pm). Fibre/cable services at the postcode are subject to availability and may differ between properties within a postcode. Speeds can be affected by a range of technical and environmental factors. The speed at the property may be lower than that listed above. You can check the estimated speed and confirm availability to a property prior to purchasing on the broadband provider's website. Providers may increase charges. The information is provided and maintained by Decision Technologies Limited. **This is indicative only and based on a 2-person household with multiple devices and simultaneous usage. Broadband performance is affected by multiple factors including number of occupants and devices, simultaneous usage, router range etc. For more information speak to your broadband provider.
Map data ©OpenStreetMap contributors.




