
4 bedroom character property for sale
The Maltings, Connahs Quay Road, Northop

- PROPERTY TYPE
Character Property
- BEDROOMS
4
- BATHROOMS
2
- SIZE
Ask agent
- TENUREDescribes how you own a property. There are different types of tenure - freehold, leasehold, and commonhold.Read more about tenure in our glossary page.
Freehold
Key features
- Grade II Listed Conversion
- Character Features Throughout
- Prime Location / Sought After Village
- Exclusive Development
- Large Rear Garden & Paddock
- Garage & Allocated Parking
Description
OPEN DAY (By Appointment) Saturday 13th September | 10:00 – 13:00
Agent Code : PA011
A truly stunning Grade II listed former Malt House, believed to date back to the 18th century, now exquisitely transformed into an exceptional, distinctive family home. This unique four-bedroom property seamlessly blends historic charm with modern luxury, featuring striking exposed beams, stone feature walls, and a warm, inviting rustic ambiance that will immediately make you feel at home.
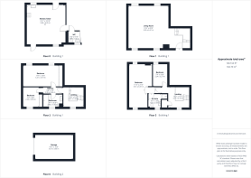
Spanning four thoughtfully designed floors, the property offers generous and flexible living space, perfect for family life and entertaining. The ground floor boasts a sleek, contemporary kitchen and dining area, fitted with a modern gloss kitchen complete with high-end integrated appliances to cater to all your culinary needs, alongside a hallway and a practical WC. On the first floor, the spacious dual aspect living area provides a perfect setting for relaxation and unwinding, with an abundance of natural light, feature beams and exposed stone walls. The second floor is home to two well-appointed bedrooms and a luxurious main bathroom, featuring a stunning three-piece suite. The top floor hosts an impressive principal bedroom with a private en-suite shower room, plus a versatile fourth bedroom, currently used as a dressing room, offering endless possibilities. The property also benefits from underfloor heating to the ground floor and bathrooms, adding a touch of modern luxury to its historic charm.
Externally, a charming stone pathway leads to the front entrance, surrounded by neatly manicured lawns that enhance the property’s curb appeal. Directly opposite the house, there’s allocated parking and a garage with a fob-operated roller door, ensuring convenience and security. At the rear, the well-maintained garden is an absolute highlight, featuring a sun-drenched patio area that flows seamlessly onto a spacious lawn and paddock. The garden is an idyllic space for outdoor entertaining or simply enjoying the tranquil surroundings during the warmer months.
Located in the highly sought-after village of Northop, this exclusive development offers not just a home, but a lifestyle. With the bustling market town of Mold just 2.5 miles away and the historic city of Chester only 12 miles from your doorstep, this property provides the perfect balance of peaceful village life and accessibility to urban conveniences. The development has been meticulously crafted to create an exclusive estate of unparalleled character and charm, making this home one of the most desirable in the sought-after village.
- COUNCIL TAXA payment made to your local authority in order to pay for local services like schools, libraries, and refuse collection. The amount you pay depends on the value of the property.Read more about council Tax in our glossary page.
- Band: G
- LISTED PROPERTYA property designated as being of architectural or historical interest, with additional obligations imposed upon the owner.Read more about listed properties in our glossary page.
- Listed
- PARKINGDetails of how and where vehicles can be parked, and any associated costs.Read more about parking in our glossary page.
- Allocated
- GARDENA property has access to an outdoor space, which could be private or shared.
- Private garden
- ACCESSIBILITYHow a property has been adapted to meet the needs of vulnerable or disabled individuals.Read more about accessibility in our glossary page.
- Ask agent
The Maltings, Connahs Quay Road, Northop
Add an important place to see how long it'd take to get there from our property listings.
__mins driving to your place
Get an instant, personalised result:
- Show sellers you’re serious
- Secure viewings faster with agents
- No impact on your credit score
Your mortgage
Notes
Staying secure when looking for property
Ensure you're up to date with our latest advice on how to avoid fraud or scams when looking for property online.
Visit our security centre to find out moreDisclaimer - Property reference S1214777. The information displayed about this property comprises a property advertisement. Rightmove.co.uk makes no warranty as to the accuracy or completeness of the advertisement or any linked or associated information, and Rightmove has no control over the content. This property advertisement does not constitute property particulars. The information is provided and maintained by Signature Property Partners, Nationwide. Please contact the selling agent or developer directly to obtain any information which may be available under the terms of The Energy Performance of Buildings (Certificates and Inspections) (England and Wales) Regulations 2007 or the Home Report if in relation to a residential property in Scotland.
*This is the average speed from the provider with the fastest broadband package available at this postcode. The average speed displayed is based on the download speeds of at least 50% of customers at peak time (8pm to 10pm). Fibre/cable services at the postcode are subject to availability and may differ between properties within a postcode. Speeds can be affected by a range of technical and environmental factors. The speed at the property may be lower than that listed above. You can check the estimated speed and confirm availability to a property prior to purchasing on the broadband provider's website. Providers may increase charges. The information is provided and maintained by Decision Technologies Limited. **This is indicative only and based on a 2-person household with multiple devices and simultaneous usage. Broadband performance is affected by multiple factors including number of occupants and devices, simultaneous usage, router range etc. For more information speak to your broadband provider.
Map data ©OpenStreetMap contributors.





