High street retail property for sale
Stanley Street, Caergybi, Caergybi, LL65 1HG
- SIZE
Ask agent
- SECTOR
High street retail property for sale
Key features
- 3 Storey Commercial Property
- Situated in a Prominent Trading Position
- 1/2 Bed Flat Above Generating Additional Income
- Additional Ground Floor Storage
- Suitable for a Variety of Uses (STC)
- EPC: D (Commercial) & TBC (Residential)
Description
If you’re looking for an investment, act fast to secure this substantial property, set over 3 floors with a ground floor shop and a two story flat above. The property is situated centrally within the Holyhead town, perfect for passing trade. Internally there is a shop area Kitchen, WC and a spacious storage facility to the rear providing support for a business. The first and second floor is being used as a 1 Bedroom flat which briefly comprises; Lounge, Kitchen, 3 piece Bathroom, Bedroom and a Loft Room. The property benefits from a new roof which was done in 2020, pleasant sea/port views to the rear and gas central heating.
The premises is located in the heart of Holyhead town, easily accessible and being just yards from the train station, port and a sizeable car park. The town offers a great deal of amenities as well as a number of large supermarkets, leisure facilities, schools and shops. Transport links include a railway station which offers links throughout the UK rail network, port with daily trips to and from Ireland and added benefit of the A55 expressway being 0.3 miles away providing rapid commuting. The marina and Newry Beach are approx. 0.5 miles away and offer beautiful coastal walks that link up to the Holyhead Mountain and Breakwater Park.
From the A55 enter Holyhead and at the roundabout take the 3rd exit and head towards the town centre. Take the left turn at the cenotaph and proceed up the hill. Go through the town centre. Before you reach the one way junction the property is located on your right hand side.
Please note we have not inspected the property.
Location
The premises is located in the heart of Holyhead town, easily accessible and being just yards from the train station, port and a sizeable car park. The town offers a great deal of amenities as well as a number of large supermarkets, leisure facilities, schools and shops. Transport links include a railway station which offers links throughout the UK rail network, port with daily trips to and from Ireland and added benefit of the A55 expressway being 0.3 miles away providing rapid commuting. The marina and Newry Beach are approx. 0.5 miles away and offer beautiful coastal walks that link up to the Holyhead Mountain and Breakwater Park.
From the A55 enter Holyhead and at the roundabout take the 3rd exit and head towards the town centre. Take the left turn at the cenotaph and proceed up the hill. Go through the town centre. Before you reach the one way junction the property is located on ...
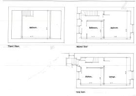
Retail Accommodation
Shop Front 6.85m (22'6") max x 4.01m (13'2")
UPVC double glazed bay window to front, door to:
Inner Hallway 5.75m (18'10") x 1.27m (4'2")
Window to side, stairs, door to:
WC 1.18m (3'10") x 0.99m (3'3")
Fitted with piece suite comprising, wash hand basin and low-level WC.
Storage 8.60m (28'3") x 4.13m (13'7")
Electric radiator.
Kitchen 2.55m (8'4") x 1.76m (5'9")
Stainless steel sink unit with single drainer, single glazed window to rear, door.
Apartment Accommodation
First floor:
Kitchen - 10'11 x 8'4" - window to rear
Lounge - 12'7" x 13'6" - window to front
Second floor:
Bedroom 1 - 12'9" x 13'5" - window to front
Bathroom - 10'11 x 8'6"
Third floor:
Bedroom 2 / loft room - 13'7" x 13'7" - roof-light
Tenure
Freehold - title CYM225329
Rateable Value
Current rateable value (1 April 2023 to present) £3,550
Sourced from VOA
EPC
Available upon request. Rating D.
Additional Information
For further information please contact our office directly on , or alternatively via email on . With regards to viewing subject property, this is to be done strictly by appointment.
Auctioneers Additional Comments
Pattinson Auction are referred to below as The Auctioneer. This auction lot is being sold under either conditional (Modern) or unconditional (Traditional) auction terms and overseen by the auctioneer. The property is available to view strictly by appointment only via any Marketing Agent or The Auctioneer. Please be aware that any enquiry, bid or viewing of the subject property will require your details being shared between any marketing agent and The Auctioneer so that all matters can be dealt with effectively. The property is being sold via a transparent online auction. To submit a bid on any property marketed by The Auctioneer, all bidders buyers must adhere to a verification of identity process in line with Anti Money Laundering procedures. Bids can be submitted at any time and from anywhere. Our verification process is in place to ensure AML procedures are carried out in accordance with the law
Auctioneers Additional Comments
The advertised price is commonly referred to as a Starting Bid or Guide Price and is accompanied by a Reserve Price. The Reserve Price is confidential to the seller and the auctioneer and will typically be within a range above or below 10% of the Guide Price , Starting Bid. These prices are subject to change. An auction can be closed at any time with the auctioneer permitting for the property (the lot) to be sold prior to the end of the auction. A Legal Pack associated with this particular property is available to view upon request and contains details relevant to the legal documentation enabling all interested parties to make an informed decision prior to bidding. The Legal Pack will also outline the buyers obligations and sellers commitments. It is strongly advised that you seek the counsel of a solicitor prior to proceeding with any property and/or Land Title purchase.
Auctioneers Additional Comments
In order to secure the property and ensure commitment from the seller, upon exchange of contracts, the successful bidder will be expected to pay a non-refundable deposit equivalent to 5% of the purchase price. The deposit will form part of the purchase price. A non-refundable reservation fee of up to 6% inc VAT (Subject to a minimum fee which could be up to 7,200 inc VAT) is also payable upon agreement of sale. The Reservation Fee is in addition to the agreed purchase price, and consideration should be given by the purchaser to any Stamp Duty Land Tax liability associated with the overall purchase costs. Both the Marketing Agent and the Auctioneer may consider it necessary or beneficial to pass customer details to third-party service suppliers, from whom a referral fee may be received. There is no requirement or obligation to use any recommended suppliers or services.
Brochures
Stanley Street, Caergybi, Caergybi, LL65 1HG
NEAREST STATIONS
Distances are straight line measurements from the centre of the postcode- Holyhead Station0.2 miles
- Valley Station3.6 miles
Notes
Disclaimer - Property reference 495269. The information displayed about this property comprises a property advertisement. Rightmove.co.uk makes no warranty as to the accuracy or completeness of the advertisement or any linked or associated information, and Rightmove has no control over the content. This property advertisement does not constitute property particulars. The information is provided and maintained by Pattinsons, Pattinsons Auction- National Auctioneer. Please contact the selling agent or developer directly to obtain any information which may be available under the terms of The Energy Performance of Buildings (Certificates and Inspections) (England and Wales) Regulations 2007 or the Home Report if in relation to a residential property in Scotland.
Auction Fees: The purchase of this property may include associated fees not listed here, as it is to be sold via auction. To find out more about the fees associated with this property please call Pattinsons, Pattinsons Auction- National Auctioneer on 0191 625 0964.
*Guide Price: An indication of a seller's minimum expectation at auction and given as a Guide Price or a range of Guide Prices. This is not necessarily the figure a property will sell for and is subject to change prior to the auction.
Reserve Price: Each auction property will be subject to a Reserve Price below which the property cannot be sold at auction. Normally the Reserve Price will be set within the range of Guide Prices or no more than 10% above a single Guide Price.
Map data ©OpenStreetMap contributors.






