
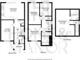
4 bedroom semi-detached house for sale
Moorland View, Meltham, HD9

- PROPERTY TYPE
Semi-Detached
- BEDROOMS
4
- BATHROOMS
2
- SIZE
1,249 sq ft
116 sq m
- TENUREDescribes how you own a property. There are different types of tenure - freehold, leasehold, and commonhold.Read more about tenure in our glossary page.
Freehold
Key features
- Located in a highly sought after village
- Accommodation over 3 floors
- Driveway parking for 2 cars
- Enclosed rear garden
- Modern utilities throughout
Description
Nestled within a highly sought-after development on the edge of the Peak District National Park, this stunning home boasts high-quality fixtures and fittings throughout and offers excellent, versatile accommodation. Designed with modern family living in mind, the property must be viewed to be fully appreciated, we are confident you will be impressed from the moment you step inside. Externally, the home benefits from driveway parking for two vehicles and a beautifully landscaped, low-maintenance enclosed garden.
Entrance
A spacious entrance hall providing access to the living room, kitchen diner, first floor and WC. The space benefits from an additional storage room, ideal for coats and shoes or with sufficient space for a tumble dryer. Decorated with bold tones, complemented by wallpapered accent walls and stylish panelling.
Kitchen Diner
Positioned at the rear and stretching across the full width of the property, this beautifully presented kitchen diner offers a welcoming and sociable space, perfect for everyday family life and entertaining. The sleek modern kitchen features deep-toned cabinetry paired with lighter wall units, contrasting worktops and neutral tiled flooring, creating a stylish yet comfortable feel.
The kitchen is well equipped with an electric oven and grill, four-ring gas hob, integrated fridge/freezer, integrated dishwasher, chrome sink with mixer tap, and space for a washing machine. Bi-fold doors open directly onto the garden, allowing natural light to pour in and seamlessly connecting indoor and outdoor living. There is generous room for a full-sized family dining table, with the added potential to incorporate a kitchen island or additional seating area to suit your lifestyle.
Living Room
Located at the front of the property, this spacious living room provides a warm and comfortable setting for relaxation. Neutrally decorated and enhanced by plush carpeting, the room offers ample space for a range of freestanding furniture, making it easy to create a cosy yet stylish living area.
WC
A modern downstairs cloakroom fitted with a WC and wash basin with chrome mixer tap. Stylishly finished with wallpapered walls and wood-effect linoleum flooring, this space is both practical and attractively presented.
Landing
Continuing the tasteful décor from the entrance hall, the staircase leads to a light and airy landing that provides access to bedrooms two, three and four, as well as the family bathroom. The space benefits from an additional storage cupboard, ideal for use as a linen cupboard. Finished in soft, neutral tones with a wallpapered accent wall, the landing also offers access to the staircase leading up to the principal bedroom.
Bedroom 2
Located to the rear of the property, this spacious double bedroom offers ample room for a super king-size bed if desired. The room benefits from built-in wardrobes and is beautifully decorated in soft tones with a wallpapered accent wall. Enjoying pleasant views over the rear garden, this bedroom provides a calm and comfortable retreat.
Bedroom 3
Located at the front of the property, this generous double bedroom is neutrally decorated, creating a calm and versatile space. There is ample room for a bed and freestanding furniture, and the room further benefits from built-in wardrobes for convenient storage.
Bedroom 4
Located to the rear of the property and enjoying views over the garden, this further double bedroom is decorated in soft tones with a wallpapered feature wall. The room offers ample space for freestanding furniture, making it a comfortable and versatile space for guests, children, or a home office.
Bathroom
A sleek, modern bathroom located to the front of the property. The suite comprises a full-sized bath with chrome mixer tap, WC, pedestal wash hand basin with chrome mixer tap, and a chrome heated towel rail. The bath is fitted with a shower featuring both a rainfall shower head and a separate handheld attachment. Finished with neutral tiling to both floors and walls, the space feels light and contemporary, further enhanced by natural light from a Velux skylight window.
Bedroom 1
An extremely spacious and beautifully presented principal bedroom located on the second floor, benefiting from dual-aspect Velux windows that create a wonderfully bright and airy atmosphere. Decorated in neutral tones, the room offers ample space for a super king-size bed along with additional freestanding furniture. This impressive retreat further benefits from private access to a well-appointed en-suite bathroom.
En-suite
A sleek and modern en-suite shower room fitted with a WC, wash basin with chrome mixer tap, and a chrome heated towel rail. The shower is fitted with a handheld shower attachment, and the space is finished with stylish neutral tiling to both walls and floors. A Velux skylight allows natural light to fill the room, creating a bright and contemporary feel.
Rear Garden
Accessed via the kitchen bi-folding doors or a convenient side gate, the garden opens onto a stone-flagged patio area, perfect for alfresco dining and socialising. This flows seamlessly into an attractive, low-maintenance astroturf lawn, complemented by raised wooden planter beds that add colour and interest. Fully enclosed by wooden fencing, the garden offers a safe and private outdoor space, ideal for children and pets alike.
Front Garden
To the front, the property further benefits from an astroturf lawn, providing a neat and low-maintenance approach.
Parking - Driveway
Off-road driveway parking for two vehicles, with the added benefit of capacity for an electric vehicle charging point
Disclaimer
Whilst every effort is made to ensure the accuracy of the information provided, Home & Manor gives no representations or warranties regarding the statements contained within these particulars, which should not be relied upon as statements of fact. All information is supplied by the Seller. Your Conveyancer is legally responsible for ensuring that any purchase agreement fully protects your interests. Please notify us if you become aware of any inaccuracies. If an offer is accepted on a property marketed by Home & Manor, all purchasers will be required to complete identification checks and provide proof and source of funds. This is a legal requirement under Anti-Money Laundering (AML) regulations. We use a specialist third-party provider alongside our in-house compliance team to carry out these checks. The cost is £50.00 + VAT per person, payable in advance once an offer is agreed and prior to issue of the sales memorandum. This fee is non-refundable.
- COUNCIL TAXA payment made to your local authority in order to pay for local services like schools, libraries, and refuse collection. The amount you pay depends on the value of the property.Read more about council Tax in our glossary page.
- Band: D
- PARKINGDetails of how and where vehicles can be parked, and any associated costs.Read more about parking in our glossary page.
- Driveway
- GARDENA property has access to an outdoor space, which could be private or shared.
- Front garden,Rear garden
- ACCESSIBILITYHow a property has been adapted to meet the needs of vulnerable or disabled individuals.Read more about accessibility in our glossary page.
- Ask agent
Energy performance certificate - ask agent
Moorland View, Meltham, HD9
Add an important place to see how long it'd take to get there from our property listings.
__mins driving to your place
Get an instant, personalised result:
- Show sellers you’re serious
- Secure viewings faster with agents
- No impact on your credit score
Your mortgage
Notes
Staying secure when looking for property
Ensure you're up to date with our latest advice on how to avoid fraud or scams when looking for property online.
Visit our security centre to find out moreDisclaimer - Property reference c18f9433-943e-45c2-a236-857fe428ef45. The information displayed about this property comprises a property advertisement. Rightmove.co.uk makes no warranty as to the accuracy or completeness of the advertisement or any linked or associated information, and Rightmove has no control over the content. This property advertisement does not constitute property particulars. The information is provided and maintained by Home & Manor, Kirkheaton. Please contact the selling agent or developer directly to obtain any information which may be available under the terms of The Energy Performance of Buildings (Certificates and Inspections) (England and Wales) Regulations 2007 or the Home Report if in relation to a residential property in Scotland.
*This is the average speed from the provider with the fastest broadband package available at this postcode. The average speed displayed is based on the download speeds of at least 50% of customers at peak time (8pm to 10pm). Fibre/cable services at the postcode are subject to availability and may differ between properties within a postcode. Speeds can be affected by a range of technical and environmental factors. The speed at the property may be lower than that listed above. You can check the estimated speed and confirm availability to a property prior to purchasing on the broadband provider's website. Providers may increase charges. The information is provided and maintained by Decision Technologies Limited. **This is indicative only and based on a 2-person household with multiple devices and simultaneous usage. Broadband performance is affected by multiple factors including number of occupants and devices, simultaneous usage, router range etc. For more information speak to your broadband provider.
Map data ©OpenStreetMap contributors.





