2 bedroom cottage for sale
High Street, Lower Brailes, Banbury, OX15 5HX

- PROPERTY TYPE
Cottage
- BEDROOMS
2
- BATHROOMS
1
- SIZE
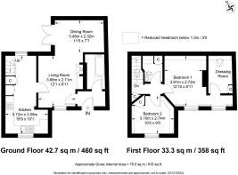
784 sq ft
73 sq m
- TENUREDescribes how you own a property. There are different types of tenure - freehold, leasehold, and commonhold.Read more about tenure in our glossary page.
Ask agent
Key features
- CHARMING TWO BEDROOM PERIOD COTTAGE, TUCKED AWAY LOCATION IN A SOUGHT AFTER VILLAGE
- EXPOSED BEAMS AND TIMBERS
- LOG BURNER
- COUNTRY STYLE KITCHEN
- DELIGHTFUL SOUTH FACING ENCLOSED COTTAGE GARDEN
- PRIVATE PARKING
- ELECTRIC HEATING
Description
Lower Brailes is situated in South Warwickshire, close to the North Oxfordshire border. Although in Warwickshire, the postal address for the village of Lower Brailes is Near Banbury, Oxfordshire.
Within Lower Brailes there are a variety of shops and stores including a butcher, bakery and newsagents. In addition, there is The George Inn, a primary school, a garage and a 13th century Church, together with a Roman Catholic Chapel.
The local nearby town of Shipston on Stour has a more comprehensive range of facilities, with the larger local centres of Banbury, Stratford upon Avon, Warwick, Leamington Spa and Oxford being accessible
2 Tcheur Cottages is a light and airy, charming characterful two-double bedroom semi -detached period cottage, with a delightful private cottage garden to the front of the property, quietly located and tucked away in the sought-after village of Lower Brailes. Features within the property Include fireplace with log burning stove in the living room, exposed beams and timbers throughout, double glazed windows.
The property was constructed partly brick, local stone and render with a slate roof.
The accommodation is well presented and well-proportioned and benefits from electric heating.
Outside to the front is the enclosed courtyard garden, which is paved with flower beds, mature shrubs and trees, beyond which is a pergola and timber garden shed with path leading to front door. There is a parking space to the front of the property.
The accommodation briefly comprises:
Entrance Hall with wooden flooring, exposed beams and timbers throughout the cottage.
Bathroom part tiled with free standing roll-top bath with shower over.
Sitting Room/Dining Room with attractive open fireplace with log burner, oak mantel piece and quarry tiled hearth, fine exposed
beams and timbers, French doors leading to courtyard garden.
Kitchen L-shaped country style, with terracotta floor tiles, ceramic one and a half sink unit and drainer with central mixer tap with fitted cupboards under and work surfaces over, fitted wall units, built-in four-ring induction hob with extractor hood above, Siemens built-in double electric oven, Hotpoint fridge/freezer, Logic integral washing machine, dishwasher. Understairs storage cupboard housing the boiler and pantry cupboard.
Stairs leading to landing with storage cupboard.
Bedroom One window to front garden with separate office.
Bedroom Two with window to garden.
Closet w.c. with good storage area.
To the front is a delightful south facing enclosed cottage garden, which offers privacy. The courtyard garden is paved, with flower beds, mature shrubs and trees beyond which is a pergola and timber garden shed with path leading to the front door surrounded by flower and shrub borders. Timber garden shed.
Beyond the front gate is a private parking space.
To the back is a small courtyard garden.
GENERAL INFORMATION
Tenure
The property is offered freehold with vacant possession.
Council Tax
This is payable to Stratford on Avon District Council. The property is listed in band C.
Fixtures and Fittings
All items mentioned in these sale particulars are included in the sale. All other items are expressly excluded.
Services
Mains electricity, water and drainage are connected to the property. electric boiler for central heating and hot water.
Energy Performance Certificate
Current: G (9) Potential: 21 (F)
Directions Postcode OX15 5HX
From Shipston on Stour, take the B4035 for Banbury. Proceed through Upper Brailes and into Lower Brailes. On entering Lower Brailes continue past the Primary School over the bridge at the foot of the hill and passing the local garage, 2 Tcheur Cottages is 20yds on the left-hand side before Rectory Lane.
IMPORTANT NOTICE
These particulars have been prepared in good faith and are for guidance only. They are intended to give a fair description of the property, but do not constitute part of an offer or form any part of a contract. The photographs show only certain parts and aspects as at the time they were taken. We have not carried out a survey on the property, nor have we tested the services, appliances or any specific fittings. Any areas, measurements or distances we have referred to are given as a guide only and are not precise.
MFF/S3241/F005/23.06.2025
Brochures
Brochure 1- COUNCIL TAXA payment made to your local authority in order to pay for local services like schools, libraries, and refuse collection. The amount you pay depends on the value of the property.Read more about council Tax in our glossary page.
- Ask agent
- PARKINGDetails of how and where vehicles can be parked, and any associated costs.Read more about parking in our glossary page.
- Off street
- GARDENA property has access to an outdoor space, which could be private or shared.
- Private garden
- ACCESSIBILITYHow a property has been adapted to meet the needs of vulnerable or disabled individuals.Read more about accessibility in our glossary page.
- Ask agent
High Street, Lower Brailes, Banbury, OX15 5HX
Add an important place to see how long it'd take to get there from our property listings.
__mins driving to your place
Get an instant, personalised result:
- Show sellers you’re serious
- Secure viewings faster with agents
- No impact on your credit score



Your mortgage
Notes
Staying secure when looking for property
Ensure you're up to date with our latest advice on how to avoid fraud or scams when looking for property online.
Visit our security centre to find out moreDisclaimer - Property reference S1357175. The information displayed about this property comprises a property advertisement. Rightmove.co.uk makes no warranty as to the accuracy or completeness of the advertisement or any linked or associated information, and Rightmove has no control over the content. This property advertisement does not constitute property particulars. The information is provided and maintained by Seccombes Estate Agents, Shipston-On-Stour. Please contact the selling agent or developer directly to obtain any information which may be available under the terms of The Energy Performance of Buildings (Certificates and Inspections) (England and Wales) Regulations 2007 or the Home Report if in relation to a residential property in Scotland.
*This is the average speed from the provider with the fastest broadband package available at this postcode. The average speed displayed is based on the download speeds of at least 50% of customers at peak time (8pm to 10pm). Fibre/cable services at the postcode are subject to availability and may differ between properties within a postcode. Speeds can be affected by a range of technical and environmental factors. The speed at the property may be lower than that listed above. You can check the estimated speed and confirm availability to a property prior to purchasing on the broadband provider's website. Providers may increase charges. The information is provided and maintained by Decision Technologies Limited. **This is indicative only and based on a 2-person household with multiple devices and simultaneous usage. Broadband performance is affected by multiple factors including number of occupants and devices, simultaneous usage, router range etc. For more information speak to your broadband provider.
Map data ©OpenStreetMap contributors.




