
3 bedroom detached house for sale
Scott Terrace, Falkirk, FK2

- PROPERTY TYPE
Detached
- BEDROOMS
3
- BATHROOMS
2
- SIZE
1,098 sq ft
102 sq m
- TENUREDescribes how you own a property. There are different types of tenure - freehold, leasehold, and commonhold.Read more about tenure in our glossary page.
Freehold
Key features
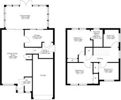
- Sitting/Dining Room
- Conservatory
- Kitchen
- Utility Room
- Three Bedrooms
- En Suite Shower Room
- Bathroom
- Driveway & Garage
- Gas Central Heating
- Double Glazing
Description
Ogilvie built luxury detached villa occupying private gardens complemented by a large front driveway and integral garage. The rear gardens afford considerable privacy and enjoys access to a larger sized rear conservatory which extends to in excess of seventeen feet. The property lies within easy reach of many excellent Falkirk amenities including the surrounding road and railway network.
Access to the property is through an entrance vestibule with handy downstairs WC off. The super sitting/dining room extends to twenty three feet in length and enjoys access to the wonderful rear conservatory. The kitchen has an integrated oven, hob, extractor hood and dishwasher. A useful utility room is situated off the kitchen. The bright upper hallway has a gable window and allows access to three bedrooms with fitted robes and a generously sized bathroom. The master bedroom has a stylish fully refitted en suite shower room with feature ceramic tiling, mains shower valve, storage and chrome radiator. Practical features include gas central heating, double glazing and EV charging point included in sale. Well maintained and presented early viewing is highly recommended.
Sitting/Dining Room 23’ x 13’3” (at widest) 7.01m x 4.04m
Conservatory 17’6” x 9’7” 5.33m x 2.92m
Kitchen 12’ x 7’4” (at widest) 3.66m x 2.24m
Utility Room 6’7” x 6’ 2.01m x 1.83m
Bedroom One 11’7” x 9’8” 3.53m x 2.95m
En Suite Shower Room 7’5” x 5’ 2.26m x 1.52m
Bedroom Two 11’ x 8’7” 3.35m x 2.62m
Bedroom Three 8’4” x 7’2” 2.54m x 2.18m
Bathroom 7’6” x 6’6” 2.29m x 1.98m
- COUNCIL TAXA payment made to your local authority in order to pay for local services like schools, libraries, and refuse collection. The amount you pay depends on the value of the property.Read more about council Tax in our glossary page.
- Band: E
- PARKINGDetails of how and where vehicles can be parked, and any associated costs.Read more about parking in our glossary page.
- Yes
- GARDENA property has access to an outdoor space, which could be private or shared.
- Yes
- ACCESSIBILITYHow a property has been adapted to meet the needs of vulnerable or disabled individuals.Read more about accessibility in our glossary page.
- Ask agent
Energy performance certificate - ask agent
Scott Terrace, Falkirk, FK2
Add an important place to see how long it'd take to get there from our property listings.
__mins driving to your place
Get an instant, personalised result:
- Show sellers you’re serious
- Secure viewings faster with agents
- No impact on your credit score
Your mortgage
Notes
Staying secure when looking for property
Ensure you're up to date with our latest advice on how to avoid fraud or scams when looking for property online.
Visit our security centre to find out moreDisclaimer - Property reference 12d1a3b6-e6c5-4ee5-b7f2-3a8a46e43c8b. The information displayed about this property comprises a property advertisement. Rightmove.co.uk makes no warranty as to the accuracy or completeness of the advertisement or any linked or associated information, and Rightmove has no control over the content. This property advertisement does not constitute property particulars. The information is provided and maintained by Clyde Property, Falkirk. Please contact the selling agent or developer directly to obtain any information which may be available under the terms of The Energy Performance of Buildings (Certificates and Inspections) (England and Wales) Regulations 2007 or the Home Report if in relation to a residential property in Scotland.
*This is the average speed from the provider with the fastest broadband package available at this postcode. The average speed displayed is based on the download speeds of at least 50% of customers at peak time (8pm to 10pm). Fibre/cable services at the postcode are subject to availability and may differ between properties within a postcode. Speeds can be affected by a range of technical and environmental factors. The speed at the property may be lower than that listed above. You can check the estimated speed and confirm availability to a property prior to purchasing on the broadband provider's website. Providers may increase charges. The information is provided and maintained by Decision Technologies Limited. **This is indicative only and based on a 2-person household with multiple devices and simultaneous usage. Broadband performance is affected by multiple factors including number of occupants and devices, simultaneous usage, router range etc. For more information speak to your broadband provider.
Map data ©OpenStreetMap contributors.








