Whitehill Road, Marlow Court Whitehill Road, TN6

- PROPERTY TYPE
Flat
- BEDROOMS
1
- BATHROOMS
1
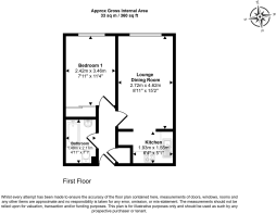
- SIZE
360 sq ft
33 sq m
Key features
- First Floor Flat
- Leasehold- 163 years
- Allocated Parking x 1
- Ground Rent £0
- Service Charge £1198.08 pa
- Council Tax Band B
- EPC C-Potential B
- Communal Gardens
- Vacant & Chain Free
- Potential Rent £975 pcm=8% Gross Yield pa
Description
Move Places are pleased to be presenting a superb opportunity for both first-time buyers and investors. Although in need of some modernisation, and decorating to taste, this well planned out one bedroom first floor flat offers a blend of modern convenience and long-term security, benefiting from an extended lease of 163 years, ensuring peace of mind for decades to come.
The property is vacant and chain free, ready for immediate occupation or rental, and boasts a bright and spacious living area with a pleasant outlook. A well-appointed kitchen leads seamlessly off the lounge, with ample cupboards, integrated electric oven, hob and extractor fan, stand alone fridge freezer and washing machine.
The double bedroom is generously proportioned, providing a comfortable retreat, while the bathroom features modern fixtures and a clean, neutral décor.
Residents enjoy the added benefit of one allocated parking space, a rare advantage in this location, and communal gardens that enhance the overall sense of community within the development.
With a ground rent of £0 and a service charge 0f £1198.08 per annum, the flat represents a cost-effective option for buyers mindful of ongoing expenses. The property falls within Council Tax Band B and has an EPC rating of C, with potential to reach B. The flat features electric heating throughout, making it an energy-efficient choice for future owners or tenants.
The flat is ideally suited for professionals, couples, or single occupants seeking a low-maintenance home with excellent transport links and local amenities nearby. Early viewing is highly recommended to fully appreciate the quality and value this property has to offer.
NB. In accordance with Section 21 of the Estate Agent Act 1979, we declare that there is a personal interest in the sale of this property. The property is being sold by Director’s of Move Places Ltd.
A Buyer’s Reservation Fee, which forms part of the purchase price, will apply. Please contact branch for more information.
1. MONEY LAUNDERING REGULATIONS - Intending purchasers will be asked to produce identification documentation at a later stage and we would ask for your co-operation in order that there will be no delay in agreeing the sale.
2: These particulars do not constitute part or all of an offer or contract.
3: The measurements indicated are supplied for guidance only and as such must be considered incorrect.
4: Potential buyers are advised to recheck the measurements before committing to any expense.
5: MP has not tested any apparatus, equipment, fixtures, fittings or services and it is the buyers interests to check the working condition of any appliances.
6: MP has not sought to verify the legal title of the property and the buyers must obtain verification from their solicitor.
EPC Rating: C
Parking - Allocated parking
- COUNCIL TAXA payment made to your local authority in order to pay for local services like schools, libraries, and refuse collection. The amount you pay depends on the value of the property.Read more about council Tax in our glossary page.
- Band: B
- PARKINGDetails of how and where vehicles can be parked, and any associated costs.Read more about parking in our glossary page.
- Off street
- GARDENA property has access to an outdoor space, which could be private or shared.
- Communal garden
- ACCESSIBILITYHow a property has been adapted to meet the needs of vulnerable or disabled individuals.Read more about accessibility in our glossary page.
- Ask agent
Energy performance certificate - ask agent
Whitehill Road, Marlow Court Whitehill Road, TN6
Add an important place to see how long it'd take to get there from our property listings.
__mins driving to your place
Get an instant, personalised result:
- Show sellers you’re serious
- Secure viewings faster with agents
- No impact on your credit score

Affordability
Notes
Staying secure when looking for property
Ensure you're up to date with our latest advice on how to avoid fraud or scams when looking for property online.
Visit our security centre to find out moreDisclaimer - Property reference 813068e0-ebe3-457a-9f4e-0b872f540aea. The information displayed about this property comprises a property advertisement. Rightmove.co.uk makes no warranty as to the accuracy or completeness of the advertisement or any linked or associated information, and Rightmove has no control over the content. This property advertisement does not constitute property particulars. The information is provided and maintained by Move Places Limited, Gerrards Cross. Please contact the selling agent or developer directly to obtain any information which may be available under the terms of The Energy Performance of Buildings (Certificates and Inspections) (England and Wales) Regulations 2007 or the Home Report if in relation to a residential property in Scotland.
*This is the average speed from the provider with the fastest broadband package available at this postcode. The average speed displayed is based on the download speeds of at least 50% of customers at peak time (8pm to 10pm). Fibre/cable services at the postcode are subject to availability and may differ between properties within a postcode. Speeds can be affected by a range of technical and environmental factors. The speed at the property may be lower than that listed above. You can check the estimated speed and confirm availability to a property prior to purchasing on the broadband provider's website. Providers may increase charges. The information is provided and maintained by Decision Technologies Limited. **This is indicative only and based on a 2-person household with multiple devices and simultaneous usage. Broadband performance is affected by multiple factors including number of occupants and devices, simultaneous usage, router range etc. For more information speak to your broadband provider.
Map data ©OpenStreetMap contributors.




