High street retail property to lease
196B Southwark Park Road, London, SE16 3RP
- SIZE AVAILABLE
848 sq ft
79 sq m
- SECTOR
High street retail property to lease
Lease details
- Lease available date:
- Now
- Lease type:
- Long term
Key features
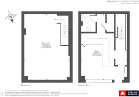
- Total Floor Area: 848 Square Foot As Provided By the Landlord
- Retail Unit Including Ground Floor and Basement
- Lease: New lease available, terms to be agreed
- Ready for fit out/occupation
- Use: Suitable for a variety of Class E uses (retail / office / services / studio subject to landlord and planning)
- All new tenancies subject to a minimum 3 month rent deposit and 3 months rent in advance throughout the agreed lease term
Description
196B Southwark Park Road is a self-contained unit offered across 848 square foot, split between the ground floor and ancillary basement accommodation.
The unit provides flexible open plan space with good ceiling height. The space is well suited to a wide range of Class E activities, including retail, offices/professional services, fitness/studio use (STP), or similar occupiers.
The space benefits from a single glazed frontage with an open plan layout and is offered on a new lease with terms to be agreed, providing an opportunity for an incoming occupier to secure a presence in central Bermondsey/Southwark.
Location
Located in Bermondsey on Southwark Park Road in SE16, a well-established South East London location.
The location benefits from regular local footfall, proximity to Southwark Park, and strong residential density. It is easily accessible to surrounding areas including Bermondsey, Canada Water, Surrey Quays and Rotherhithe.
The premises are situated approximately 0.6 miles/12–14 minutes’ walk from South Bermondsey Station, which provides National Rail services and 0.9 miles/18–20 minutes’ walk) from Bermondsey Station (Jubilee Line), offering direct London Underground connections
Energy Performance Certificates
EPCBrochures
196B Southwark Park Road, London, SE16 3RP
NEAREST STATIONS
Distances are straight line measurements from the centre of the postcode- Bermondsey Station0.4 miles
- South Bermondsey Station0.6 miles
- Surrey Quays Station0.9 miles
Notes
Disclaimer - Property reference 346614-2. The information displayed about this property comprises a property advertisement. Rightmove.co.uk makes no warranty as to the accuracy or completeness of the advertisement or any linked or associated information, and Rightmove has no control over the content. This property advertisement does not constitute property particulars. The information is provided and maintained by Stirling Ackroyd, Commercial. Please contact the selling agent or developer directly to obtain any information which may be available under the terms of The Energy Performance of Buildings (Certificates and Inspections) (England and Wales) Regulations 2007 or the Home Report if in relation to a residential property in Scotland.
Map data ©OpenStreetMap contributors.





