Plot for sale
Building Plot, 8 - 9 Brook Place, Pentre, Mid Glamorgan, CF41 7DT
- PROPERTY TYPE
Plot
- BEDROOMS
3
- BATHROOMS
2
- SIZE
Ask agent
Key features
- Building plot with full planning permission
- Garden
- Small cul de sac location
- Hillside views
Description
ONLINE AUCTION from 3rd FEBRUARY - 5th FEBRUARY 2026
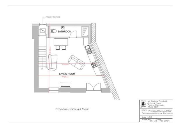
Situated at the end of a small cul de sac this building plot has full planning permission for a side elevation two storey extension (end of terrace).
The plot currently has only the front elevation remaining of the previous cottage which has now been demolished in readiness for the new build. The vendor informs us that the wall can be knocked down when building starts as it does not form part of the planning consent.
The accommodation will provide an open plan lounge/kitchen/dining room, two bathrooms and a store room. For those considering building their first property this could be an ideal first project.
Pentre is a village near Treorchy in the Rhondda valley, falling within the county borough of Rhondda Cynon Taf, Wales. The area benefits from far reaching hillside views and countryside walks. Treorchy is a bustling town with independent shops and cafes. Commuter rail links via Ton Pentre and Ystrad Rhondda stations.
Treorchy was awarded UK Champion High Street in 2019, praised for its independent shops, events (festivals, parades), and vibrant atmosphere, operating as a Business Improvement District.
Ground Floor Open plan lounge/ Kitchen/dining room, bathroom, storeroom
First Floor 3 Bedrooms, bathroom
Outside Garden
Tenure:
Advised Freehold - to be verified by solicitor
Tenancies:
To be sold with vacant possession
INVESTORS: If you are looking for assistance in tenant find and/or management packages, information on rental income/interest potential we have a Lettings Department that can help you. Please call us or email for invaluable advice.
Brochures
Legal DocumentsOnline BiddingBuilding Plot, 8 - 9 Brook Place, Pentre, Mid Glamorgan, CF41 7DT
NEAREST STATIONS
Distances are straight line measurements from the centre of the postcode- Ton Pentre Station0.5 miles
- Treorchy Station0.7 miles
- Ystrad Rhondda Station1.3 miles
Notes
Disclaimer - Property reference 323931. The information displayed about this property comprises a property advertisement. Rightmove.co.uk makes no warranty as to the accuracy or completeness of the advertisement or any linked or associated information, and Rightmove has no control over the content. This property advertisement does not constitute property particulars. The information is provided and maintained by Paul Fosh Auctions, Newport. Please contact the selling agent or developer directly to obtain any information which may be available under the terms of The Energy Performance of Buildings (Certificates and Inspections) (England and Wales) Regulations 2007 or the Home Report if in relation to a residential property in Scotland.
Auction Fees: The purchase of this property may include associated fees not listed here, as it is to be sold via auction. To find out more about the fees associated with this property please call Paul Fosh Auctions, Newport on 01633 603042.
*Guide Price: An indication of a seller's minimum expectation at auction and given as a Guide Price or a range of Guide Prices. This is not necessarily the figure a property will sell for and is subject to change prior to the auction.
Reserve Price: Each auction property will be subject to a Reserve Price below which the property cannot be sold at auction. Normally the Reserve Price will be set within the range of Guide Prices or no more than 10% above a single Guide Price.
Map data ©OpenStreetMap contributors.




