
5 bedroom semi-detached house for sale
Boroughbridge Road, York

- PROPERTY TYPE
Semi-Detached
- BEDROOMS
5
- BATHROOMS
3
- SIZE
Ask agent
- TENUREDescribes how you own a property. There are different types of tenure - freehold, leasehold, and commonhold.Read more about tenure in our glossary page.
Freehold
Key features
- Extended Semi Detached House
- Five Well Proportioned Bedrooms
- Three Bathrooms
- South Facing Rear Garden
- Garage & Driveway
- Popular Residential Area
- Ideal Family Home
- EPC D
Description
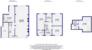
To the front, an extended paved driveway provides off-street parking for multiple vehicles. Inside, the home opens into an inviting entrance hall leading to a generous through lounge that spans the full length of the property. Flooded with natural light from large windows at the front and rear, this room provides a comfortable and airy living and dining space. At the rear of the entrance hall, the extended kitchen-diner features a range of wall and base units offering ample storage and worktop space, with plenty of room for dining. French doors open directly onto the garden, creating a seamless flow between indoor and outdoor living. Completing the ground floor are an internal porch, understairs storage and a convenient WC.
Upstairs, the first floor houses four well-proportioned bedrooms, including a master with a modern shower ensuite, alongside a family bathroom serving the remaining rooms. The second floor is dedicated to a fifth double bedroom, benefitting from Velux windows that fill the space with natural light and a three-piece ensuite for added convenience.
Externally, the property boasts a south-west facing rear garden with a lawn, a decking area for outdoor entertaining, a patio adjacent to the extension, and well-maintained flowerbeds, all enclosed by fencing and hedging for privacy. In addition to the integral garage, another brick outbuilding is set back from the house, offering further practical storage which could be adapted into a home office, subject to planning.
Given its generous size, flexible living spaces, and sought-after location, early viewing is highly recommended.
Brochures
Boroughbridge Road, YorkBrochure- COUNCIL TAXA payment made to your local authority in order to pay for local services like schools, libraries, and refuse collection. The amount you pay depends on the value of the property.Read more about council Tax in our glossary page.
- Band: C
- PARKINGDetails of how and where vehicles can be parked, and any associated costs.Read more about parking in our glossary page.
- Yes
- GARDENA property has access to an outdoor space, which could be private or shared.
- Yes
- ACCESSIBILITYHow a property has been adapted to meet the needs of vulnerable or disabled individuals.Read more about accessibility in our glossary page.
- Ask agent
Boroughbridge Road, York
Add an important place to see how long it'd take to get there from our property listings.
__mins driving to your place
Get an instant, personalised result:
- Show sellers you’re serious
- Secure viewings faster with agents
- No impact on your credit score
Your mortgage
Notes
Staying secure when looking for property
Ensure you're up to date with our latest advice on how to avoid fraud or scams when looking for property online.
Visit our security centre to find out moreDisclaimer - Property reference 34402951. The information displayed about this property comprises a property advertisement. Rightmove.co.uk makes no warranty as to the accuracy or completeness of the advertisement or any linked or associated information, and Rightmove has no control over the content. This property advertisement does not constitute property particulars. The information is provided and maintained by Ashtons Estate Agents, York. Please contact the selling agent or developer directly to obtain any information which may be available under the terms of The Energy Performance of Buildings (Certificates and Inspections) (England and Wales) Regulations 2007 or the Home Report if in relation to a residential property in Scotland.
*This is the average speed from the provider with the fastest broadband package available at this postcode. The average speed displayed is based on the download speeds of at least 50% of customers at peak time (8pm to 10pm). Fibre/cable services at the postcode are subject to availability and may differ between properties within a postcode. Speeds can be affected by a range of technical and environmental factors. The speed at the property may be lower than that listed above. You can check the estimated speed and confirm availability to a property prior to purchasing on the broadband provider's website. Providers may increase charges. The information is provided and maintained by Decision Technologies Limited. **This is indicative only and based on a 2-person household with multiple devices and simultaneous usage. Broadband performance is affected by multiple factors including number of occupants and devices, simultaneous usage, router range etc. For more information speak to your broadband provider.
Map data ©OpenStreetMap contributors.









