Commercial development for sale
80-82 Lord Street , Fleetwood, Lancashire FY7 6JZ
- SIZE
Ask agent
- SECTOR
Commercial development for sale
Key features
- Former Three Storey Bank
- Corner Property
- Planning Consent To Convert To 8 x Apartments & 1 x Office
- 6x 2 Bed & 2x 1 Bed
- Central Location
- Conversion Works Commenced
Description
Online Auction 10th - 11th February 2026
Former Bank – Planning Consent To Convert To 8 x Apartments & 1 x Office
Description
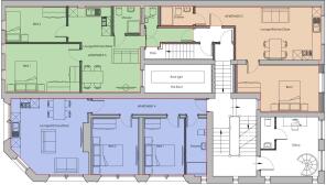
Substantial three storey corner property, formerly a bank, which now benefits from planning permission to convert to 8x apartments (6x 2 bed & 2x 1 bed) and 1x office.
The property also benefits from conversion works having commenced to include; all the windows for the project already been purchased, all asbestos has been removed, with a certificate to prove it. Some renovation work has already been carried out on the building, including sub-dividing works.
Planning
Granted December 2023 for Change of use from vacant bank (Use Class E) to 8 self-contained apartments (Use Class C3) and 1 office, with first floor rear extension
Wyre Council Ref : 23/00832/FUL
Centrally located at the corner of Lord Street and London Street, within 30m from London Street tram stop.
Tenure: long leasehold
Title number: LAN220997
Length of Lease/Term: 999 years from January 1862
Ground Rent : £
Service Charge: £
Council Tax Band :
Local Authority: Wyre
Finance is available on this lot. For a decision-in-principle visit togethermoney.com/amydip/
IMPORTANT INFORMATION Buying at auction is a contractual commitment, you are legally obliged to buy the lot on the terms of the sale memorandum at the price you bid. If you are the successful bidder, you are required to pay the deposit and auction fees immediately. As agent for the seller, we treat any failure to satisfy your obligations as your repudiation of the contract and the seller may then have a claim against you for breach of contract. You must not bid unless you wish to be bound by the common conditions of auction
ANTI-MONEY LAUNDERING REGULATIONS In accordance with Anti-Money Laundering Regulations, two forms of identification and confirmation of the source of funding will be required from the successful purchaser. Every effort has been made to confirm the accuracy of the lot details including any defect in the title both with the vendor and their solicitor. Auction House will not be held responsible for any failure to disclose any such defects.
Any purchasers choosing to buy without viewing in person are doing so at their own risk and acknowledge that the auctioneer will not be held responsible for any issues that may arise due to them being unintentionally missed from the video or sales particulars.
Please refer to legal pack for additional fees and the Auction Information document for guidance prior to bidding.
Tenure: Leasehold
Administration Fee: 2.5% inc VAT of the purchase price, subject to a minimum of £2500 inc VAT, payable on exchange of contracts.
Disbursements: Please see the legal pack for any disbursements listed that may become payable by the purchaser on completion.
80-82 Lord Street , Fleetwood, Lancashire FY7 6JZ
NEAREST STATIONS
Distances are straight line measurements from the centre of the postcode- Poulton-le-Fylde Station5.2 miles
Notes
Disclaimer - Property reference 202601151459sq_slhc. The information displayed about this property comprises a property advertisement. Rightmove.co.uk makes no warranty as to the accuracy or completeness of the advertisement or any linked or associated information, and Rightmove has no control over the content. This property advertisement does not constitute property particulars. The information is provided and maintained by Auction House North West, Commercial. Please contact the selling agent or developer directly to obtain any information which may be available under the terms of The Energy Performance of Buildings (Certificates and Inspections) (England and Wales) Regulations 2007 or the Home Report if in relation to a residential property in Scotland.
Auction Fees: The purchase of this property may include associated fees not listed here, as it is to be sold via auction. To find out more about the fees associated with this property please call Auction House North West, Commercial on 0161 524 6307.
*Guide Price: An indication of a seller's minimum expectation at auction and given as a Guide Price or a range of Guide Prices. This is not necessarily the figure a property will sell for and is subject to change prior to the auction.
Reserve Price: Each auction property will be subject to a Reserve Price below which the property cannot be sold at auction. Normally the Reserve Price will be set within the range of Guide Prices or no more than 10% above a single Guide Price.
Map data ©OpenStreetMap contributors.






