
3 bedroom town house for sale
Broyle Road, Chichester, PO19

- PROPERTY TYPE
Town House
- BEDROOMS
3
- BATHROOMS
2
- SIZE
1,203 sq ft
112 sq m
- TENUREDescribes how you own a property. There are different types of tenure - freehold, leasehold, and commonhold.Read more about tenure in our glossary page.
Freehold
Key features
- Mid-Terraced Townhouse
- Three to Four Bedrooms
- Two Bathrooms
- Two Reception Rooms
- French Doors to Garden
- Built-in Storage & Wardrobes
- Ground Floor WC
- Rear Enclosed South West Facing Garden
- Car Port & Visitor Space
- Newly Fitted Modern Bespoke Kitchen
Description
This well-presented and spacious three-to-four-bedroom mid-terraced townhouse offers flexible accommodation arranged over three floors, off-road parking, and a modern, practical design throughout. Located in the highly sought-after area of Summersdale, ideally positioned just one mile north of Chichester city centre.
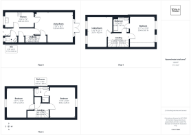
The ground floor comprises a generous open-plan living and dining area with natural large windows and French doors, which open onto the rear. The newly fitted kitchen features sleek wooden cabinetry, integrated appliances, a stylish vibrant splashback, and ample worktop space. A convenient WC and hallway storage complete this level.
On the first floor is a second reception room or optional bedroom, alongside a contemporary fully tiled family bathroom with an over-bath shower. A double bedroom on this floor benefits from large built-in wardrobes and direct access to the bathroom.
The second floor offers a further two double bedrooms, one with an ensuite shower room and additional storage found on the landing.
Outside, the property features an enclosed, south west facing low-maintenance rear patio garden bordered by shrubs and small trees, ideal for relaxing or entertaining, while the front also benefits from a patio garden with attractive shrubbery. Additional advantages include a covered off-road parking space and visitor permit parking.
Chichester is a historic cathedral city offering a range of cultural, leisure, and shopping amenities, including the renowned Festival Theatre, Pallant House Gallery, and several museums. Nearby are excellent sailing facilities, marinas, and the sandy beaches of West Wittering and East Head. The South Downs National Park provides miles of scenic walking and cycling routes, while Goodwood—just 3.5 miles north—is famed for its racecourse, golf courses, and motorsport events. Chichester has direct rail links to London Victoria (approx. 90 minutes) and easy access to the A27, connecting Brighton and Southampton.
Agents Note: Upon acceptance of an offer, White & Brooks will complete an online identity check provided by Veriphy. The cost of this check to the successful purchaser is £79 including VAT per purchase which will be payable in advance to White & Brooks Ltd. This charge verifies your identity in line with our obligations as requested by HMRC and documents to prove your identity and address will be required.
EPC Rating: C
Kitchen
2.18m x 4.08m
Living Room
4.3m x 5.28m
Wc
0.83m x 1.73m
Hallway
1.05m x 4.96m
Living Room
4.25m x 3.51m
Bathroom
1.91m x 2.18m
Landing
1.03m x 2.97m
Bedroom
3.61m x 3.54m
Bathroom
1.08m x 2.02m
Bedroom
4.27m x 3.71m
Bedroom
4.29m x 3.56m
Disclaimer
Agent’s Note: We have not tested any equipment, fittings, or services and cannot confirm their working order. Buyers should seek verification from their solicitor or surveyor. Items shown in photos may not be included in the sale. Room measurements are approximate and should not be relied upon for ordering furniture, appliances, or flooring. These particulars are intended as a general guide only. Please contact us to verify any important details, especially if travelling a long distance to view. Any references to parking have not been checked and should be confirmed by the buyer’s legal representative.
- COUNCIL TAXA payment made to your local authority in order to pay for local services like schools, libraries, and refuse collection. The amount you pay depends on the value of the property.Read more about council Tax in our glossary page.
- Band: F
- PARKINGDetails of how and where vehicles can be parked, and any associated costs.Read more about parking in our glossary page.
- Yes
- GARDENA property has access to an outdoor space, which could be private or shared.
- Private garden
- ACCESSIBILITYHow a property has been adapted to meet the needs of vulnerable or disabled individuals.Read more about accessibility in our glossary page.
- Ask agent
Energy performance certificate - ask agent
Broyle Road, Chichester, PO19
Add an important place to see how long it'd take to get there from our property listings.
__mins driving to your place
Get an instant, personalised result:
- Show sellers you’re serious
- Secure viewings faster with agents
- No impact on your credit score
Your mortgage
Notes
Staying secure when looking for property
Ensure you're up to date with our latest advice on how to avoid fraud or scams when looking for property online.
Visit our security centre to find out moreDisclaimer - Property reference 87b19bf4-9586-4fb5-b622-37043a6d313f. The information displayed about this property comprises a property advertisement. Rightmove.co.uk makes no warranty as to the accuracy or completeness of the advertisement or any linked or associated information, and Rightmove has no control over the content. This property advertisement does not constitute property particulars. The information is provided and maintained by White & Brooks, Chichester. Please contact the selling agent or developer directly to obtain any information which may be available under the terms of The Energy Performance of Buildings (Certificates and Inspections) (England and Wales) Regulations 2007 or the Home Report if in relation to a residential property in Scotland.
*This is the average speed from the provider with the fastest broadband package available at this postcode. The average speed displayed is based on the download speeds of at least 50% of customers at peak time (8pm to 10pm). Fibre/cable services at the postcode are subject to availability and may differ between properties within a postcode. Speeds can be affected by a range of technical and environmental factors. The speed at the property may be lower than that listed above. You can check the estimated speed and confirm availability to a property prior to purchasing on the broadband provider's website. Providers may increase charges. The information is provided and maintained by Decision Technologies Limited. **This is indicative only and based on a 2-person household with multiple devices and simultaneous usage. Broadband performance is affected by multiple factors including number of occupants and devices, simultaneous usage, router range etc. For more information speak to your broadband provider.
Map data ©OpenStreetMap contributors.





