3 bedroom semi-detached house for sale
Rochester Road, Newton Hall, Durham, DH1

- PROPERTY TYPE
Semi-Detached
- BEDROOMS
3
- BATHROOMS
1
- SIZE
Ask agent
- TENUREDescribes how you own a property. There are different types of tenure - freehold, leasehold, and commonhold.Read more about tenure in our glossary page.
Freehold
Key features
- Three Bedroom
- Semi Detached House
- Well Presented
- Ideal for a Range of Buyers
- EPC Rating TBC
- Front and Rear Gardens
- Driveway and Garage
- Popular Location
- Viewings Highly Recommended
Description
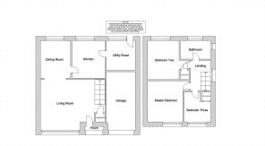
This three bedroom semi detached house is located on Rochester Road in Newton Hall, Durham. The property is well presented and will make an ideal family home. The property comprises: an entrance porch, open plan living/dining room, fitted kitchen and a utility room. To the first floor there are three bedrooms and a stylish bathroom. Externally to the front is a garden laid to lawn and a block paved driveway leading to an attached garage.. To the rear of the property is a garden with lawn, a paved patio and a hot tub. Viewings are highly recommended.
Front External
To the front of the property is a garden laid to lawn and a driveway leading to an attached single garage.
Porch
With carpet flooring.
Living Room
5.454m x 4.263m
Spacious living room including a built in cupboard, an under stairs storage cupboard, parquet flooring and a double glazed window to the front.
Dining Room
3.236m x 2.623m
Dining room with parquet flooring and a double glazed window to the rear.
Kitchen
3.25m x 2.739m
Kitchen including fitted wall and base units with a contrasting work surface, one and a half stainless steel sink/drainer with a mixer tap, gas cooker point, an integrated fridge, laminate flooring, tiled splashback and a double glazed window to the rear.
Utility Room
2.539m x 2.433m
With fitted cupboards, work surface, plumbing for a washing machine, plumbing for a dishwasher, space for a tumble dryer, carpet flooring, a double glazed window to the rear and a door leading to the rear garden.
Stairs
With carpet flooring.
Landing
Including carpet flooring and a double glazed window to the side.
Master Bedroom
3.578m x 2.988m
Master bedroom including extensive fitted wardrobes, carpet flooring and a double glazed window to the front.
Bedroom Two
3.25m x 2.671m
Bedroom with fitted wardrobes, access via a drop down ladder to a partially boarded loft, a built in cupboard, carpet flooring and a double glazed window to the rear.
Bedroom Three
2.643m x 2.368m
Bedroom including carpet flooring, a built in cupboard and a double glazed window to the front.
Shower Room
2.642m x 1.655m
Shower room including a walk in shower with an electric shower above, low level WC, wash hand basin, tiled flooring, tiled walls, chrome towel heater, double glazed windows to the side and rear.
Garage
4.935m x 2.647m
With a newly installed remote controlled electric door, power and light.
Rear Garden
To the rear of the property is a garden including lawn, paved patio, outside tap and gated side access to the front. There is a hot tub that the owners are willing to include in the sale.
Agent Notes
1. The property is in council tax band B. 2. The seller has advised us that the property is freehold. 3. Utilities - Mains water, sewerage, electricity and gas. 4. Superfast broadband available to this property (checker.ofcom.org.uk) 5. Flood Risk - Rivers and Sea - very low, Surface Water - low (gov.uk)
Disclaimer
The preceding details have been sourced from the seller and the websites listed above. Verification and clarification of this information, along with any further details concerning Material Information parts A, B & C, should be sought from a legal representative or appropriate authorities. Newfield Estates cannot accept liability for any information provided.
- COUNCIL TAXA payment made to your local authority in order to pay for local services like schools, libraries, and refuse collection. The amount you pay depends on the value of the property.Read more about council Tax in our glossary page.
- Ask agent
- PARKINGDetails of how and where vehicles can be parked, and any associated costs.Read more about parking in our glossary page.
- Yes
- GARDENA property has access to an outdoor space, which could be private or shared.
- Yes
- ACCESSIBILITYHow a property has been adapted to meet the needs of vulnerable or disabled individuals.Read more about accessibility in our glossary page.
- Ask agent
Energy performance certificate - ask agent
Rochester Road, Newton Hall, Durham, DH1
Add an important place to see how long it'd take to get there from our property listings.
__mins driving to your place
Get an instant, personalised result:
- Show sellers you’re serious
- Secure viewings faster with agents
- No impact on your credit score
Your mortgage
Notes
Staying secure when looking for property
Ensure you're up to date with our latest advice on how to avoid fraud or scams when looking for property online.
Visit our security centre to find out moreDisclaimer - Property reference NES260004. The information displayed about this property comprises a property advertisement. Rightmove.co.uk makes no warranty as to the accuracy or completeness of the advertisement or any linked or associated information, and Rightmove has no control over the content. This property advertisement does not constitute property particulars. The information is provided and maintained by Newfield Estates, Durham. Please contact the selling agent or developer directly to obtain any information which may be available under the terms of The Energy Performance of Buildings (Certificates and Inspections) (England and Wales) Regulations 2007 or the Home Report if in relation to a residential property in Scotland.
*This is the average speed from the provider with the fastest broadband package available at this postcode. The average speed displayed is based on the download speeds of at least 50% of customers at peak time (8pm to 10pm). Fibre/cable services at the postcode are subject to availability and may differ between properties within a postcode. Speeds can be affected by a range of technical and environmental factors. The speed at the property may be lower than that listed above. You can check the estimated speed and confirm availability to a property prior to purchasing on the broadband provider's website. Providers may increase charges. The information is provided and maintained by Decision Technologies Limited. **This is indicative only and based on a 2-person household with multiple devices and simultaneous usage. Broadband performance is affected by multiple factors including number of occupants and devices, simultaneous usage, router range etc. For more information speak to your broadband provider.
Map data ©OpenStreetMap contributors.




