
3 bedroom terraced house for sale
Keepsake Way, Aylesbury, HP18

- PROPERTY TYPE
Terraced
- BEDROOMS
3
- BATHROOMS
2
- SIZE
1,036 sq ft
96 sq m
- TENUREDescribes how you own a property. There are different types of tenure - freehold, leasehold, and commonhold.Read more about tenure in our glossary page.
Freehold
Key features
- Three Bedroom House
- Enclosed Rear Garden
- Walking Distance To Schools
- En Suite To Master
- Set Over Three Floors
- Popular Location
- Good Order Throughout
- Ideal Family Home
Description
Williams Properties are delighted to market this well presented three bedroom townhouse on the Berryfields development in Aylesbury. The property consists of an entrance hall, kitchen/diner, lounge, downstairs WC, three bedrooms, family bathroom and an en-suite. Outside there is a low maintenance garden and allocated parking. Viewing is highly recommended on this fantastic property, ideal for a family home.
EPC Rating: B
Berryfields
Berryfields boasts the Aylesbury Vale Academy, community centre, newly built local amenities and excellent transport links, including the Aylesbury Parkway Train Station with its regular direct link to London Marylebone in just over an hour. There are a number of walkways and local parks ideal for an active family. Easy access to A41, M40, M1 and M25. There are local shops in the vicinity and a regular bus service into the town centre just 2.4 miles.
Council Tax
Band D
Local Authority
Buckinghamshire Council
Services
All main services available
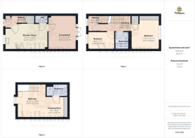
Entrance Hall
Enter through the front door into the entrance hall with stairs rising to the first floor, door to kitchen/diner and storage cupboard.
Kitchen / Diner
Kitchen comprises a range of wall and base mounted units with Quartz worktops, inset sink unit with mixer tap and window over, inset induction hob, oven and overhead extractor fan, integrated fridge/freezer, washer/dryer and dishwasher. Dining area consists of space for a dining table set, doors to the wc and living room, under stairs storage cupboard, radiator, Amtico flooring and spotlights to ceiling.
WC
Comprising of a corner hand wash basin, low level wc and radiator.
Living Room
Living room consists of Amtico flooring, light fittings to ceiling, radiator, French doors leading out to the rear garden and space for a sofa set and other furniture.
First Floor
Doors to two bedrooms and bathroom. Stairs rise to the second floor.
Bedroom
Bedroom consists of a window to the rear aspect, built in wardrobes, carpet laid to floor, light fitting to ceiling, radiator and space for a double bed and other furniture.
Bedroom
Bedroom consists of a window to the front aspect, carpet laid to floor, light fitting to ceiling, radiator and space for a single bed and other furniture.
Bathroom
Bathroom comprises a low level wc, hand wash basin, panelled bathtub with overhead shower and screen, tiling to splash sensitive areas and heated towel rail.
Second Floor
Stairs rise up into the master bedroom.
Master Bedroom & En Suite
Bedroom consists of a window to the front aspect, sky light to the rear aspect, built in mirrored wardrobes, carpet laid to floor, wall lights, radiators and space for a king size bed and other furniture. En suite comprises an enclosed shower cubicle, pedestal hand wash basin, low level wc, heated towel rail and sky light.
Garden
Enclosed rear garden with a paved patio and pathway, grass laid to the remainder, gated access to the rear.
Parking
Two allocated parking spaces.
Buyer Notes
In line with current AML legislation, all prospective buyers will be asked to provide identification documentation and we would ask for your co-operation in order that there will be no delay in agreeing the sale.
Garden
Enclosed rear garden with a paved patio and pathway, grass laid to the remainder, gated access to the rear.
Disclaimer
Williams Properties Ltd is a member of The Property Ombudsman (TPO) and follows its Code of Practice. All property details, descriptions, and images are provided in good faith for guidance only and do not form part of any contract. Measurements, floorplans, and photographs are approximate and for illustrative purposes. Properties are offered subject to contract and availability. Prospective buyers or tenants should verify information independently before making any commitments. Williams Properties accepts no liability for errors or omissions.
- COUNCIL TAXA payment made to your local authority in order to pay for local services like schools, libraries, and refuse collection. The amount you pay depends on the value of the property.Read more about council Tax in our glossary page.
- Band: D
- PARKINGDetails of how and where vehicles can be parked, and any associated costs.Read more about parking in our glossary page.
- Yes
- GARDENA property has access to an outdoor space, which could be private or shared.
- Private garden
- ACCESSIBILITYHow a property has been adapted to meet the needs of vulnerable or disabled individuals.Read more about accessibility in our glossary page.
- Ask agent
Energy performance certificate - ask agent
Keepsake Way, Aylesbury, HP18
Add an important place to see how long it'd take to get there from our property listings.
__mins driving to your place
Get an instant, personalised result:
- Show sellers you’re serious
- Secure viewings faster with agents
- No impact on your credit score

Your mortgage
Notes
Staying secure when looking for property
Ensure you're up to date with our latest advice on how to avoid fraud or scams when looking for property online.
Visit our security centre to find out moreDisclaimer - Property reference 541a8a2e-d032-4d84-b8ca-0ffaf155a91c. The information displayed about this property comprises a property advertisement. Rightmove.co.uk makes no warranty as to the accuracy or completeness of the advertisement or any linked or associated information, and Rightmove has no control over the content. This property advertisement does not constitute property particulars. The information is provided and maintained by Williams Estate Agents, Aylesbury. Please contact the selling agent or developer directly to obtain any information which may be available under the terms of The Energy Performance of Buildings (Certificates and Inspections) (England and Wales) Regulations 2007 or the Home Report if in relation to a residential property in Scotland.
*This is the average speed from the provider with the fastest broadband package available at this postcode. The average speed displayed is based on the download speeds of at least 50% of customers at peak time (8pm to 10pm). Fibre/cable services at the postcode are subject to availability and may differ between properties within a postcode. Speeds can be affected by a range of technical and environmental factors. The speed at the property may be lower than that listed above. You can check the estimated speed and confirm availability to a property prior to purchasing on the broadband provider's website. Providers may increase charges. The information is provided and maintained by Decision Technologies Limited. **This is indicative only and based on a 2-person household with multiple devices and simultaneous usage. Broadband performance is affected by multiple factors including number of occupants and devices, simultaneous usage, router range etc. For more information speak to your broadband provider.
Map data ©OpenStreetMap contributors.





