1 bedroom house share for rent
Buckland Brake, Newton Abbot

Letting details
- Let available date:
- 05/02/2026
- Deposit:
- £693A deposit provides security for a landlord against damage, or unpaid rent by a tenant.Read more about deposit in our glossary page.
- Min. Tenancy:
- Ask agent How long the landlord offers to let the property for.Read more about tenancy length in our glossary page.
- Let type:
- Long term
- Furnish type:
- Furnished
- Council Tax:
- Ask agent
- PROPERTY TYPE
House Share
- BEDROOMS
1
- SIZE
Ask agent
Key features
- ROOM TO RENT INCLUDING ALL BILLS
- Modern Fitted Kitchen
- Luxurious Furnished Rooms
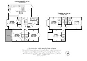
- 5 Double Bedrooms Available
- A video/intercom System
- Ensuite with each room
- Wall Mounted TV
- Communal Garden
- Off Road Parking Available
- Easy Access to A380 to Torquay & Exeter
Description
The house has been superbly refurbished all with a similar layout and stunning en suite shower rooms. A video/intercom system provides secure entry, and each room has a double-bed frame, a wall-mounted TV, wardrobe space and bedroom furniture including a chest of drawers and bedside tables.
Together with full use of the fabulous communal facilities which include a modern, stylish and well-equipped kitchen/breakfast room, with a range of integrated appliances including two fan-ovens, with induction hobs and extractor hoods, a dishwasher, and a large American-style fridge/freezer with a chilled water dispenser. There is even a breakfast bar, a seating area with a wall-mounted TV, and of course an abundance of cupboard space.
All bills are included apart from laundry which is coin metered.
This beautiful home is a must see, sorry single occupancy only.
There is a communal garden for relaxation, and a wide, block-paved driveway provides ample off-road parking
These particulars do not constitute part or all of an offer or contract. The text, photographs and plans are for guidance only and are not necessarily comprehensive. Any measurements are approximate room sizes are only intended as general guidance. You must verify the dimensions carefully to satisfy yourself of their accuracy. You should make your own enquiries regarding the property, particularly in respect of furnishings to be included/excluded and what parking facilities are available. Before you enter into any tenancy for one of the advertised properties, the condition and contents of the property will normally be set out in a tenancy agreement and inventory. Please make sure you carefully read and agree with the tenancy agreement and any inventory provided before signing these documents.
TENANCY INFORMATION The property is available to rent on an Assured Shorthold Tenancy for an initial term of 6 months. A security deposit usually equivalent to 5 weeks of rent will be required prior to the keys being released. All deposits for properties let through Complete are held by the Deposit Protection Service in accordance with the scheme rules unless otherwise stated.
WHEN YOU APPLY FOR A TENANCY REFUNDABLE HOLDING FEE
£138 inc VAT, This fee holds the property and prevents us showing other applicants the property. Please remember that the landlord may be advertising the property elsewhere, and if he/she find their own tenants after you have paid your admin fee, we'll refund it in full. If the rent is less than £500pcm, a smaller holding deposit will be taken.
This will only be retained by us if any relevant person (including any guarantor(s)) withdraw from the tenancy, fail a right to rent check, provide materially significant false or misleading information, or fail to sign their tenancy agreement (and /or Deed of Guarantee) within 15 calendar days.
PAYMENTS BEFORE YOU MOVE IN Please do this via bank transfer. If you don't have online banking you can visit or call your bank and ask them to do this for you. All payments due must have cleared into our bank account before we can release keys to the property to you. The first month's rent is payable in advance in addition to the deposit which is usually equivalent to 5 weeks of rent unless the rent is less than £500pcm.
PERMITTED FEES Holding Deposit - capped at One weeks rent
This is usually £125 per property unless the rent is less than £500pcm Paid by you to reserve the Property. This will only be retained by us if any relevant person (including any guarantor(s)) withdraw from the tenancy, fail a Right[1]to-Rent check, provide materially significant false or misleading information, or fail to sign their tenancy agreement (and/or Deed of Guarantee) within 15 calendar days.
Deposit - capped at 5 weeks rent where the annual rent is under £50,000 and 6 weeks rent where the annual rent is £50,000 or higher.
This will cover damages and defaults by the tenant as detailed in the AST during the tenancy.
Late payment of Rent
Interest will be charged at 3% above the Bank of England Base Rate from Rent Due date until paid in full. This will not be levied until the rent is more than 14 days in arrears with the interest calculated back from the first day of the arrears.
Lost Keys or security devices
Tenants are liable to the actual cost of replacing any lost key(s) or other security device(s). If the loss results in locks needing to be changed, the actual costs of a locksmith, new lock and replacement keys for the tenant, landlord any other persons requiring keys will be charged to the tenant.
Variation or changes to an existing tenancy agreement - £50 (inc. VAT) per change.
This charge will cover the costs associated with taking landlord's instructions as well as the preparation and execution of new legal documents. This also covers costs in 'change of sharer' situations and covers the landlords costs in securing a new sharing and associated legal requirements in processing that new sharers application.
Early Termination as requested by Tenant
Should you wish to leave the property before the end of your tenancy agreement, and should the landlord agree to this, then you will be liable to cover the landlord's costs of re-letting the property as well as any rent due under the terms of your tenancy agreement up until the point the replacement tenancy commences.
Utility Payments
Tenants will remain responsible, unless agreed otherwise, for all utility payments, TV licence and Council Tax accounts. Please refer to your AST for full information.
TENANCY PROTECTION Complete Property are protected by UKALA Total Loss Client Money Protection Scheme (CMP). Scheme ref (188666)
We are a member of The Property Redress Scheme (PRS)
- COUNCIL TAXA payment made to your local authority in order to pay for local services like schools, libraries, and refuse collection. The amount you pay depends on the value of the property.Read more about council Tax in our glossary page.
- Ask agent
- PARKINGDetails of how and where vehicles can be parked, and any associated costs.Read more about parking in our glossary page.
- On street,Off street
- GARDENA property has access to an outdoor space, which could be private or shared.
- Ask agent
- ACCESSIBILITYHow a property has been adapted to meet the needs of vulnerable or disabled individuals.Read more about accessibility in our glossary page.
- Ask agent
Buckland Brake, Newton Abbot
Add an important place to see how long it'd take to get there from our property listings.
__mins driving to your place
Notes
Staying secure when looking for property
Ensure you're up to date with our latest advice on how to avoid fraud or scams when looking for property online.
Visit our security centre to find out moreDisclaimer - Property reference 101182012712. The information displayed about this property comprises a property advertisement. Rightmove.co.uk makes no warranty as to the accuracy or completeness of the advertisement or any linked or associated information, and Rightmove has no control over the content. This property advertisement does not constitute property particulars. The information is provided and maintained by Complete, Newton Abbot. Please contact the selling agent or developer directly to obtain any information which may be available under the terms of The Energy Performance of Buildings (Certificates and Inspections) (England and Wales) Regulations 2007 or the Home Report if in relation to a residential property in Scotland.
*This is the average speed from the provider with the fastest broadband package available at this postcode. The average speed displayed is based on the download speeds of at least 50% of customers at peak time (8pm to 10pm). Fibre/cable services at the postcode are subject to availability and may differ between properties within a postcode. Speeds can be affected by a range of technical and environmental factors. The speed at the property may be lower than that listed above. You can check the estimated speed and confirm availability to a property prior to purchasing on the broadband provider's website. Providers may increase charges. The information is provided and maintained by Decision Technologies Limited. **This is indicative only and based on a 2-person household with multiple devices and simultaneous usage. Broadband performance is affected by multiple factors including number of occupants and devices, simultaneous usage, router range etc. For more information speak to your broadband provider.
Map data ©OpenStreetMap contributors.







