
1 bedroom apartment for sale
Back Cowpasture Road, Ilkley

- PROPERTY TYPE
Apartment
- BEDROOMS
1
- BATHROOMS
1
- SIZE
Ask agent
Key features
- SELF CONTAINED SECOND FLOOR APARTMENT
- ONE BEDROOM
- OPEN PLAN LIVING/DINING AREA
- MODERN SHOWER ROOM
- FAR REACHING VIEWS
- SOUGHT AFTER LOCATION
- EXCELLENT TRANSPORT LINKS
Description
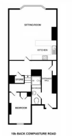
Property Details - A superb opportunity to acquire an elegant, self-contained second-floor apartment set within this impressive Victorian terrace. The property enjoys breath-taking, far-reaching views and is perfectly positioned just a short stroll from The Grove.
Apartment 10B offers generously proportioned, thoughtfully designed contemporary living space. The welcoming entrance hall leads to a luxurious modern shower room, while an inner hallway opens into the stunning open-plan living, dining, and kitchen area. This bright and stylish space is enhanced by a large picture window that perfectly frames the exceptional views beyond. The apartment also benefits from a well-proportioned double bedroom, providing comfortable and refined accommodation.
An ideal purchase for professionals, singles, or couples seeking character, comfort, and a prime location.
Ilkley is widely regarded as one of the most sought-after towns in the region, and this property is just a short stroll from The Grove, where an array of boutique shops, cafés, bars, and restaurants can be found, alongside everyday amenities and excellent transport links for commuters.
Additional Details - The property is held on an 999 year lease dated 2012, with an annual ground rent collection of £500
Brochures
Back Cowpasture Road, Ilkley- COUNCIL TAXA payment made to your local authority in order to pay for local services like schools, libraries, and refuse collection. The amount you pay depends on the value of the property.Read more about council Tax in our glossary page.
- Band: B
- PARKINGDetails of how and where vehicles can be parked, and any associated costs.Read more about parking in our glossary page.
- Ask agent
- GARDENA property has access to an outdoor space, which could be private or shared.
- Ask agent
- ACCESSIBILITYHow a property has been adapted to meet the needs of vulnerable or disabled individuals.Read more about accessibility in our glossary page.
- Ask agent
Back Cowpasture Road, Ilkley
Add an important place to see how long it'd take to get there from our property listings.
__mins driving to your place
Get an instant, personalised result:
- Show sellers you’re serious
- Secure viewings faster with agents
- No impact on your credit score
Your mortgage
Notes
Staying secure when looking for property
Ensure you're up to date with our latest advice on how to avoid fraud or scams when looking for property online.
Visit our security centre to find out moreDisclaimer - Property reference 34404418. The information displayed about this property comprises a property advertisement. Rightmove.co.uk makes no warranty as to the accuracy or completeness of the advertisement or any linked or associated information, and Rightmove has no control over the content. This property advertisement does not constitute property particulars. The information is provided and maintained by Wilman & Lodge, Cross Hills. Please contact the selling agent or developer directly to obtain any information which may be available under the terms of The Energy Performance of Buildings (Certificates and Inspections) (England and Wales) Regulations 2007 or the Home Report if in relation to a residential property in Scotland.
*This is the average speed from the provider with the fastest broadband package available at this postcode. The average speed displayed is based on the download speeds of at least 50% of customers at peak time (8pm to 10pm). Fibre/cable services at the postcode are subject to availability and may differ between properties within a postcode. Speeds can be affected by a range of technical and environmental factors. The speed at the property may be lower than that listed above. You can check the estimated speed and confirm availability to a property prior to purchasing on the broadband provider's website. Providers may increase charges. The information is provided and maintained by Decision Technologies Limited. **This is indicative only and based on a 2-person household with multiple devices and simultaneous usage. Broadband performance is affected by multiple factors including number of occupants and devices, simultaneous usage, router range etc. For more information speak to your broadband provider.
Map data ©OpenStreetMap contributors.





