3 bedroom end of terrace house for sale
Treeve Court, Treeve Lane, Connor Downs, Hayle

- PROPERTY TYPE
End of Terrace
- BEDROOMS
3
- BATHROOMS
1
- SIZE
Ask agent
- TENUREDescribes how you own a property. There are different types of tenure - freehold, leasehold, and commonhold.Read more about tenure in our glossary page.
Freehold
Key features
- 3 Bedroom End Of Terrace House
- Lounge
- Kitchen/Diner
- Sun Room
- Garage En Bloc
- Parking
- Front Garden & Enclosed Rear Garden
- LPG Heating
- Village Location
- EPC E
Description
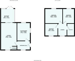
Obscure Double Glazed Door Into...
Entrance Hall
Fitted carpet, radiator, stairs rise to the first floor. Door into...
Kitchen/Diner
3.7m x 3.3m (12' 2" x 10' 10")
Selection of base and wall units, inset stainless steel one and a half bowl sink and drainer with mixer tap, space for washing machine, oven and fridge/freezer, wall mounted central heating boiler. Double glazed window to the side and double glazed window to the rear overlooking the garden, tiled floor and radiator.
Lounge
5.7m x 3.4m (18' 8" x 11' 2")
Double glazed window to the front, double glazed sliding patio door to the rear leading into the sun room, radiator, gas fire with brick surround, understairs storage cupboard.
Sun Room
Double glazed window to the side and rear, double glazed double doors providing access to the rear garden, wood effect flooring.
Carpeted Stairs Rise To...
First Floor Landing
Fitted carpet, double glazed window to the front, access to the loft.
Bedroom One
3.9m x 3.3m (12' 10" x 10' 10")
Double glazed window to the rear, radiator, fitted carpet.
Bedroom Two
3.3m x 2.8m (10' 10" x 9' 2")
Double glazed window to the rear, radiator, fitted carpet.
Bedroom Three
2.7m x 2.6m (8' 10" x 8' 6")
Double glazed window to the front, radiator, fitted carpet.
Bathroom
Panel enclosed bath with shower over and tiled surround, low level WC, pedestal wash hand basin with tiled splashback, radiator, vinyl flooring, roof light, fitted carpet.
Outside
To the front of the property there is parking and a garage en bloc. Gated access leads to recycling and bin storage area with further gate leading to the rear. The rear garden is laid to lawn with a shed.
Garage En Bloc
5.1m x 3.2m (16' 9" x 10' 6")
Fitted with an up and over door.
Directions
whatthreewords:///collision.wing.pills
Material Information
Cornwall Council Council Tax Band C Tenure- Freehold Mining- Metalliferous Mine Search Required. Parking- Garage & Parking Services - Mains electricity, water and drainage. Heating- LPG Gas Heating The seller has advised there is a right of access over the shared driveway leading to the parking area. Also the green areas to the left and right are not owned by the property.
Brochures
Particulars- COUNCIL TAXA payment made to your local authority in order to pay for local services like schools, libraries, and refuse collection. The amount you pay depends on the value of the property.Read more about council Tax in our glossary page.
- Band: C
- PARKINGDetails of how and where vehicles can be parked, and any associated costs.Read more about parking in our glossary page.
- Garage,Off street
- GARDENA property has access to an outdoor space, which could be private or shared.
- Yes
- ACCESSIBILITYHow a property has been adapted to meet the needs of vulnerable or disabled individuals.Read more about accessibility in our glossary page.
- Ask agent
Treeve Court, Treeve Lane, Connor Downs, Hayle
Add an important place to see how long it'd take to get there from our property listings.
__mins driving to your place
Get an instant, personalised result:
- Show sellers you’re serious
- Secure viewings faster with agents
- No impact on your credit score
Your mortgage
Notes
Staying secure when looking for property
Ensure you're up to date with our latest advice on how to avoid fraud or scams when looking for property online.
Visit our security centre to find out moreDisclaimer - Property reference HYL250257. The information displayed about this property comprises a property advertisement. Rightmove.co.uk makes no warranty as to the accuracy or completeness of the advertisement or any linked or associated information, and Rightmove has no control over the content. This property advertisement does not constitute property particulars. The information is provided and maintained by Bradleys, Hayle. Please contact the selling agent or developer directly to obtain any information which may be available under the terms of The Energy Performance of Buildings (Certificates and Inspections) (England and Wales) Regulations 2007 or the Home Report if in relation to a residential property in Scotland.
*This is the average speed from the provider with the fastest broadband package available at this postcode. The average speed displayed is based on the download speeds of at least 50% of customers at peak time (8pm to 10pm). Fibre/cable services at the postcode are subject to availability and may differ between properties within a postcode. Speeds can be affected by a range of technical and environmental factors. The speed at the property may be lower than that listed above. You can check the estimated speed and confirm availability to a property prior to purchasing on the broadband provider's website. Providers may increase charges. The information is provided and maintained by Decision Technologies Limited. **This is indicative only and based on a 2-person household with multiple devices and simultaneous usage. Broadband performance is affected by multiple factors including number of occupants and devices, simultaneous usage, router range etc. For more information speak to your broadband provider.
Map data ©OpenStreetMap contributors.







