Chelford Road, Macclesfield
- PROPERTY TYPE
Plot
- SIZE
Ask agent
Key features
- An excellent building plot with Planning Permission
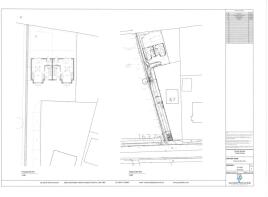
- Permission granted for a pair of semi detached houses
- Situated well back from the road in a popular residential location
- 4-bed semi-detached homes
- 2 en-suite bedrooms
- Open-plan kitchen/living
- Private driveway access
- Close to local schools including Fallibroome academy and Macclesfield academy
Description
With planning permission already granted for a pair of three-storey, four-bedroom semi-detached houses, this site is primed for construction. Each home is thoughtfully designed to include two bedrooms with ensuite shower rooms, complemented by two additional bedrooms serviced by a family bathroom. The spacious open-plan kitchen, living, and dining area promises a modern lifestyle, perfect for entertaining.
The plot benefits from a long private driveway, while ample parking and gardens provide outdoor space for recreation. Essential services are already connected to the site, and preliminary works have been undertaken, making this an attractive proposition for developers or individuals seeking to build their own property.
We are advised by our client that a 'material start' has commenced and therefore the planning permission enacted however, prospective purchasers are advised to seek there own planning/legal advice and satisfy themselves of this prior to purchase. Full Plans and planning permission details can be found on the Cheshire East Website ( under application number 20/3877M.
We thank Jay Ashall Partnership of Holmes Chapel for the use of the site plan and floor layouts.
Macclesfield is a delightful market town known for its rich history and vibrant community. The area boasts a range of local amenities, including shops, cafes, and parks, all within easy reach. Families will appreciate the proximity to well-regarded schools, such as the highly-rated Macclesfield Academy and the nearby Fallibroome Academy, both of which offer excellent educational opportunities for children of all ages.
With its picturesque surroundings and strong sense of community, this building plot on Chelford Road is an ideal location for those looking to invest in a thriving area.
Please note that the artists impression was generated by AI.
Brochures
Chelford Road, MacclesfieldChelford Road, Macclesfield
NEAREST STATIONS
Distances are straight line measurements from the centre of the postcode- Macclesfield Station1.9 miles
- Prestbury Station2.5 miles
- Alderley Edge Station4.2 miles
Notes
Disclaimer - Property reference 34404675. The information displayed about this property comprises a property advertisement. Rightmove.co.uk makes no warranty as to the accuracy or completeness of the advertisement or any linked or associated information, and Rightmove has no control over the content. This property advertisement does not constitute property particulars. The information is provided and maintained by Meller Speakman, Wilmslow. Please contact the selling agent or developer directly to obtain any information which may be available under the terms of The Energy Performance of Buildings (Certificates and Inspections) (England and Wales) Regulations 2007 or the Home Report if in relation to a residential property in Scotland.
Map data ©OpenStreetMap contributors.





