
Building Plot, Mount Wise, Newquay
- PROPERTY TYPE
Residential Development
- BEDROOMS
8
- BATHROOMS
4
- SIZE
Ask agent
Key features
- Building Plot
- Large Semi-Detached Family Homes
- South Facing Gardens
- Driveway Parking for Two Cars
- Full Planning Granted
- Stunning Sea Views
- Stones Throw Away From Town Centre
Description
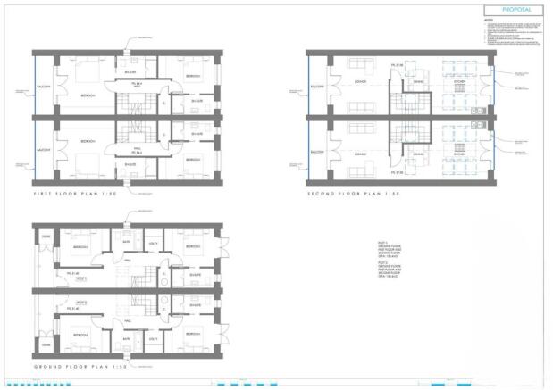
The Plot - Planning PA23/04779
- This idyllic site has full planning granted that will allow the new owner to construct two stunning semi-detached townhouses. The current plans allow for a pair of three-story, four-bedroom homes featuring stunning sea views from second floor, comprising the kitchen/dining and separate lounge. Externally the plot boasts parking for 2 cars per plot, and scope for a private landscaped south facing garden.
- we suggest all potential purchases look into the full online planning app before enquiring further.
Location - This stunning plot can be found on Mount Wise which is at the top of the town in Newquay. The town of Newquay benefits from a range of shopping and banking facilities as well as an array of fashionable bars and restaurants. The town also boasts an historic picturesque working fishing harbour and some of Europe's finest coastline. There is bus and rail service to outlying areas and Newquay Airport is approximately seven miles distance from the town.
Services - Services are connected with water and electric supply to the plot
Cil Payment - £35,000
Brochures
Building Plot, Mount Wise, NewquayBuilding Plot, Mount Wise, Newquay
NEAREST STATIONS
Distances are straight line measurements from the centre of the postcode- Newquay Station0.3 miles
- Quintrell Downs Station2.4 miles
Notes
Disclaimer - Property reference 34404791. The information displayed about this property comprises a property advertisement. Rightmove.co.uk makes no warranty as to the accuracy or completeness of the advertisement or any linked or associated information, and Rightmove has no control over the content. This property advertisement does not constitute property particulars. The information is provided and maintained by David Ball Agencies, Newquay. Please contact the selling agent or developer directly to obtain any information which may be available under the terms of The Energy Performance of Buildings (Certificates and Inspections) (England and Wales) Regulations 2007 or the Home Report if in relation to a residential property in Scotland.
Map data ©OpenStreetMap contributors.










