
4 bedroom detached house for sale
Northwood Road, Whitstable

- PROPERTY TYPE
Detached
- BEDROOMS
4
- BATHROOMS
2
- SIZE
1,582 sq ft
147 sq m
- TENUREDescribes how you own a property. There are different types of tenure - freehold, leasehold, and commonhold.Read more about tenure in our glossary page.
Freehold
Key features
- Beautifully Presented Detached Family Home
- Prime Central Location
- Seafront 250 metres
- Whitstable Mainline Station 700 metres
- 2 Reception Rooms
- 4 Bedrooms & 2 Bathrooms
- Delightful Landscaped Garden
- Summer House & Workshop
- Off-Street Parking
- No Onward Chain
Description
The exceptionally spacious and versatile accommodation benefits from high ceilings throughout and comprises a large reception hall, a sitting room with a wood-burning stove, a dining room, a contemporary kitchen/breakfast room with bi-folding doors opening onto the garden, and a stylish shower room. To the first floor, there are four double bedrooms, a well-appointed bathroom, and a separate cloakroom.
The delightful rear garden extends to 71 ft (21.6 m) and has been thoughtfully landscaped to include a natural stone terrace, a pond with raised deck and walkway leading to a summer house, and a workshop suitable for a variety of uses. To the rear of the property, there is an area of off-street parking accessed via a right of way from both Northwood Road and Tower Road. No onward chain.
Location - Northwood Road is situated in a much sought after central Whitstable/Tankerton location, conveniently positioned for access to both Tankerton Road and Whitstable town centre. The property is within close proximity to the seafront, shops, bus routes and other amenities. Whitstable mainline railway station offers frequent services to London (Victoria) in approximately 80 minutes. The high speed Javelin service provides access to London (St Pancras) with a journey time of approximately 73 minutes. Whitstable’s bustling Harbour Street is approximately 700 metres away, providing a diverse range of shopping facilities including boutique shops, as well as fashionable restaurants, cafe bars, the harbour and recreational and leisure amenities. The A299 is accessible providing a dual carriageway link to the M2/A2 connecting motorway network.
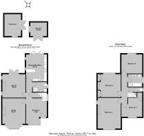
Accommodation - The accommodation and approximate measurements (taken at maximum points) are:
Ground Floor -
• Reception Hall - 5.28m x 3.51m (17'4" x 11'6") -
• Sitting Room - 4.32m x 3.88m (14'2" x 12'9") -
• Dining Room - 3.94m x 3.88m (12'11" x 12'9") -
• Kitchen/Breakfast Room - 4.25m x 3.51m (13'11" x 11'6") -
• Shower Room -
First Floor -
• Bedroom 1 - 5.17m x 3.89m (17'0" x 12'9") -
• Bedroom 2 - 3.88m x 3.89m (12'9" x 12'9") -
• Bedroom 3 - 3.51m x 3.30m (11'6" x 10'10" ) -
• Bedroom 4 - 3.48m x 3.12m (11'5" x 10'3" ) -
• Bathroom -
• Cloakroom -
Outside -
• Garden - 21.64m x 9.45m (71' x 31') -
• Summer House - 2.79m x 2.29m (9'2" x 7'6") -
• Workshop - 3.71m x 2.79m (12'2" x 9'2") -
• Off Street Parking -
Brochures
Northwood Road, Whitstable- COUNCIL TAXA payment made to your local authority in order to pay for local services like schools, libraries, and refuse collection. The amount you pay depends on the value of the property.Read more about council Tax in our glossary page.
- Band: F
- PARKINGDetails of how and where vehicles can be parked, and any associated costs.Read more about parking in our glossary page.
- Driveway,Off street
- GARDENA property has access to an outdoor space, which could be private or shared.
- Yes
- ACCESSIBILITYHow a property has been adapted to meet the needs of vulnerable or disabled individuals.Read more about accessibility in our glossary page.
- Ask agent
Northwood Road, Whitstable
Add an important place to see how long it'd take to get there from our property listings.
__mins driving to your place
Get an instant, personalised result:
- Show sellers you’re serious
- Secure viewings faster with agents
- No impact on your credit score



Your mortgage
Notes
Staying secure when looking for property
Ensure you're up to date with our latest advice on how to avoid fraud or scams when looking for property online.
Visit our security centre to find out moreDisclaimer - Property reference 34405079. The information displayed about this property comprises a property advertisement. Rightmove.co.uk makes no warranty as to the accuracy or completeness of the advertisement or any linked or associated information, and Rightmove has no control over the content. This property advertisement does not constitute property particulars. The information is provided and maintained by Christopher Hodgson, Whitstable. Please contact the selling agent or developer directly to obtain any information which may be available under the terms of The Energy Performance of Buildings (Certificates and Inspections) (England and Wales) Regulations 2007 or the Home Report if in relation to a residential property in Scotland.
*This is the average speed from the provider with the fastest broadband package available at this postcode. The average speed displayed is based on the download speeds of at least 50% of customers at peak time (8pm to 10pm). Fibre/cable services at the postcode are subject to availability and may differ between properties within a postcode. Speeds can be affected by a range of technical and environmental factors. The speed at the property may be lower than that listed above. You can check the estimated speed and confirm availability to a property prior to purchasing on the broadband provider's website. Providers may increase charges. The information is provided and maintained by Decision Technologies Limited. **This is indicative only and based on a 2-person household with multiple devices and simultaneous usage. Broadband performance is affected by multiple factors including number of occupants and devices, simultaneous usage, router range etc. For more information speak to your broadband provider.
Map data ©OpenStreetMap contributors.





