
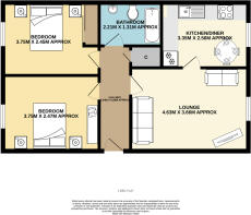
2 bedroom flat for sale
Huntly Street, Aberdeen, AB10

- PROPERTY TYPE
Flat
- BEDROOMS
2
- BATHROOMS
1
- SIZE
Ask agent
- TENUREDescribes how you own a property. There are different types of tenure - freehold, leasehold, and commonhold.Read more about tenure in our glossary page.
Freehold
Key features
- Security Entry System
- Shared Car Park
- Electric Heating
- Great Investment
- Great Transport Links
- Close to Good Schools
- City Centre Location
Description
Step into this bright and spacious first floor 2 bed city centre flat — the perfect blend of comfort, convenience, and smart investment potential. Whether you’re a first time buyer looking to plant your flag or an investor hunting for a solid, no nonsense addition to your portfolio, this one delivers.
Your generous lounge offers plenty of room to relax, entertain, or set up that cosy movie night corner you’ve been dreaming about. It flows seamlessly into your dining kitchen, giving you the ideal social layout for hosting friends or enjoying quiet evenings in.
Both double bedrooms come with fitted wardrobes, keeping your storage stress firmly off the to do list. The bathroom is well appointed and practical, rounding off a layout that just makes sense.
And then there’s the location — right in the heart of the city centre, with shops, cafés, transport links, and everything you need practically on your doorstep. It’s the kind of spot that keeps life easy and your investment strong.
A spacious layout, brilliant storage, and a prime postcode — this flat is ready and waiting for its next chapter. All it needs now is you.
“If you’re still reading, you’re already behind. Flats like this get snapped up faster than you can say ‘missed opportunity’ — book your viewing now before someone else waltzes off with your perfect city centre steal.
WELCOME HOME.
Huntly Street is situated in the heart of Aberdeen and within easy walking distance of the city centre with its excellent retail complexes. The property is within walking distance of the Bon Accord Centre, Trinity Centre and Union Square where there are also the main Railway Station and Bus Depot. The property is ideally placed and has excellent local public transport facilities making many parts of Aberdeen easily accessible. It is ideal for those working at the new office complexes in the city centre and also to the west end of Aberdeen.
Disclaimer
Whilst we make enquiries with the Seller to ensure the information provided is accurate, Yopa makes no representations or warranties of any kind with respect to the statements contained in the particulars which should not be relied upon as representations of fact. All representations contained in the particulars are based on details supplied by the Seller. Your Conveyancer is legally responsible for ensuring any purchase agreement fully protects your position. Please inform us if you become aware of any information being inaccurate.
- COUNCIL TAXA payment made to your local authority in order to pay for local services like schools, libraries, and refuse collection. The amount you pay depends on the value of the property.Read more about council Tax in our glossary page.
- Ask agent
- PARKINGDetails of how and where vehicles can be parked, and any associated costs.Read more about parking in our glossary page.
- Yes
- GARDENA property has access to an outdoor space, which could be private or shared.
- Ask agent
- ACCESSIBILITYHow a property has been adapted to meet the needs of vulnerable or disabled individuals.Read more about accessibility in our glossary page.
- Ask agent
Energy performance certificate - ask agent
Huntly Street, Aberdeen, AB10
Add an important place to see how long it'd take to get there from our property listings.
__mins driving to your place
Get an instant, personalised result:
- Show sellers you’re serious
- Secure viewings faster with agents
- No impact on your credit score

Your mortgage
Notes
Staying secure when looking for property
Ensure you're up to date with our latest advice on how to avoid fraud or scams when looking for property online.
Visit our security centre to find out moreDisclaimer - Property reference 475651. The information displayed about this property comprises a property advertisement. Rightmove.co.uk makes no warranty as to the accuracy or completeness of the advertisement or any linked or associated information, and Rightmove has no control over the content. This property advertisement does not constitute property particulars. The information is provided and maintained by Yopa, Scotland & The North. Please contact the selling agent or developer directly to obtain any information which may be available under the terms of The Energy Performance of Buildings (Certificates and Inspections) (England and Wales) Regulations 2007 or the Home Report if in relation to a residential property in Scotland.
*This is the average speed from the provider with the fastest broadband package available at this postcode. The average speed displayed is based on the download speeds of at least 50% of customers at peak time (8pm to 10pm). Fibre/cable services at the postcode are subject to availability and may differ between properties within a postcode. Speeds can be affected by a range of technical and environmental factors. The speed at the property may be lower than that listed above. You can check the estimated speed and confirm availability to a property prior to purchasing on the broadband provider's website. Providers may increase charges. The information is provided and maintained by Decision Technologies Limited. **This is indicative only and based on a 2-person household with multiple devices and simultaneous usage. Broadband performance is affected by multiple factors including number of occupants and devices, simultaneous usage, router range etc. For more information speak to your broadband provider.
Map data ©OpenStreetMap contributors.





