
3 bedroom detached bungalow for sale
Walcot Rise, Diss

- PROPERTY TYPE
Detached Bungalow
- BEDROOMS
3
- BATHROOMS
1
- SIZE
971 sq ft
90 sq m
- TENUREDescribes how you own a property. There are different types of tenure - freehold, leasehold, and commonhold.Read more about tenure in our glossary page.
Freehold
Key features
- No Chain!
- Flexible Layout Extending To Almost 1000 SQFT (stms)
- Three Ample Bedrooms
- 17' Sitting/Dining Room & Separate Kitchen/Dining Room
- Extended Garden Room
- Family Bathroom & Separate W/C
- Generous Rear Gardens
- Plenty Of Driveway Parking, Carport & Garage
Description
IN SUMMARY
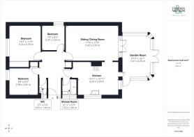
Offered with NO ONWARD CHAIN, this SPACIOUS THREE BEDROOM detached bungalow presents an excellent opportunity for those seeking a comfortable and flexible home. Extending to almost 1,000 sq. ft (stms), the property features a versatile layout that can be adapted to suit a variety of lifestyles. The heart of the home is a GENEROUS 17 ft SITTING/DINING ROOM, providing the perfect space for both relaxation and entertaining. A separate kitchen/dining room offers ample storage and workspace, making it ideal for family meals or hosting guests. An extended GARDEN ROOM at the rear of the property creates a light-filled retreat with lovely views over the garden, while THREE WELL PROPORTIONED BEDROOMS allow plenty of space for family, guests, or a home office. The accommodation is completed by a modern family shower room and separate W/C, ensuring convenience for busy households. Externally there is an impressive enclosed rear garden with plenty of space for keen gardeners to explore. To the front, AMPLE DRIVEWAY PARKING for multiple vehicles, a CAR PORT and a SINGLE GARAGE can be found.
SETTING THE SCENE
Approached via Walcot Rise there is a generous hard standing driveway providing plenty of parking for numerous vehicles. The driveway leads in turn to the carport with the garage found beyond as well as access to the rear garden. There is a front garden with planting as well as the main entrance door to the side.
THE GRAND TOUR
Entering the bungalow via the main entrance door to the side there is a welcoming hallway with plenty of space as well as fitted storage. All rooms lead off the hallway with the first room being the useful cloakroom w/c. To the front of the bungalow there are two ample bedrooms both of which have fitted wardrobes and allow plenty of light through the large windows. There is a third bedroom found to the side aspect with the family bathroom found on the other side having been upgraded to a shower room with large double walk in shower and hand wash basin. The kitchen/dining room is found to the rear of the bungalow alongside the sitting room. The kitchen provides a range of wall and base level units with solid worktops over as well as range style oven and extractor fan, space for white goods as well as an integrated dishwasher. There is a door that leads through to the extended garden room as well as an opening into the sitting room adjacent. The gas fired boiler can also be found wall mounted in the kitchen. The impressive sitting room measuring approx. 17’ allows plenty of light with double doors leading into the garden room beyond. The garden room offers a delightful vista onto the impressive garden beyond with access out also as well as a glass roof and fitted blinds.
FIND US
Postcode : IP22 4PD
What3Words : ///steam.pencil.golden
VIRTUAL TOUR
View our virtual tour for a full 360 degree of the interior of the property.
EPC Rating: C
Garden
THE GREAT OUTDOORS
The extensive rear garden offers plenty of space for gardeners to enjoy. There is an ample lawn with pathway leading to the working end of the garden to the rear. There is paving and patio areas, raised planting beds, greenhouse and timber shed for storage. The garden is enclosed with timber fencing and access to the garage.
Disclaimer
Anti-Money Laundering (AML) Fee Statement:
To comply with HMRC's regulations on Anti-Money Laundering (AML), we are legally required to conduct AML checks on every purchaser once a sale is agreed. We use a government-approved electronic identity verification service to ensure compliance, accuracy, and security. This is approved by the Government as part of the Digital Identity and Attributes Trust Framework (DIATF). The cost of anti-money laundering (AML) checks are £50 including VAT per person, payable in advance after an offer has been accepted. This fee is mandatory to comply with HMRC regulations and must be paid before a memorandum of sale can be issued. Please note that the fee is non-refundable.
General Disclaimer:
Whilst every care has been taken to prepare these sales particulars, they are for guidance purposes only. All measurements are approximate are for general guidance purposes only.
Brochures
Property Brochure- COUNCIL TAXA payment made to your local authority in order to pay for local services like schools, libraries, and refuse collection. The amount you pay depends on the value of the property.Read more about council Tax in our glossary page.
- Band: D
- PARKINGDetails of how and where vehicles can be parked, and any associated costs.Read more about parking in our glossary page.
- Yes
- GARDENA property has access to an outdoor space, which could be private or shared.
- Private garden
- ACCESSIBILITYHow a property has been adapted to meet the needs of vulnerable or disabled individuals.Read more about accessibility in our glossary page.
- Ask agent
Walcot Rise, Diss
Add an important place to see how long it'd take to get there from our property listings.
__mins driving to your place
Get an instant, personalised result:
- Show sellers you’re serious
- Secure viewings faster with agents
- No impact on your credit score
Your mortgage
Notes
Staying secure when looking for property
Ensure you're up to date with our latest advice on how to avoid fraud or scams when looking for property online.
Visit our security centre to find out moreDisclaimer - Property reference 9e50482f-9f02-4b9b-bfaa-9ad483dfc01f. The information displayed about this property comprises a property advertisement. Rightmove.co.uk makes no warranty as to the accuracy or completeness of the advertisement or any linked or associated information, and Rightmove has no control over the content. This property advertisement does not constitute property particulars. The information is provided and maintained by Starkings & Watson, Diss. Please contact the selling agent or developer directly to obtain any information which may be available under the terms of The Energy Performance of Buildings (Certificates and Inspections) (England and Wales) Regulations 2007 or the Home Report if in relation to a residential property in Scotland.
*This is the average speed from the provider with the fastest broadband package available at this postcode. The average speed displayed is based on the download speeds of at least 50% of customers at peak time (8pm to 10pm). Fibre/cable services at the postcode are subject to availability and may differ between properties within a postcode. Speeds can be affected by a range of technical and environmental factors. The speed at the property may be lower than that listed above. You can check the estimated speed and confirm availability to a property prior to purchasing on the broadband provider's website. Providers may increase charges. The information is provided and maintained by Decision Technologies Limited. **This is indicative only and based on a 2-person household with multiple devices and simultaneous usage. Broadband performance is affected by multiple factors including number of occupants and devices, simultaneous usage, router range etc. For more information speak to your broadband provider.
Map data ©OpenStreetMap contributors.





