
6 bedroom semi-detached house for sale
The Spinney, Beaconsfield, Buckinghamshire, HP9

- PROPERTY TYPE
Semi-Detached
- BEDROOMS
6
- BATHROOMS
5
- SIZE
3,054 sq ft
284 sq m
- TENUREDescribes how you own a property. There are different types of tenure - freehold, leasehold, and commonhold.Read more about tenure in our glossary page.
Freehold
Key features
- Plot and build opportunity
- *Bespoke your own home*
- Planning permission for 6 bedroom home
- Ready to build
- Ideal location, close to the town centre and station
- South-west facing garden
- EPC Rating = A
Description
Description
**An exciting opportunity to choose your own specification of kitchen and bathroom styles, stair design, fixtures and fittings. The price stated is the overall price for the proposed property which is yet to be built, as shown in the CGI images and floorplans. Potential purchasers would look to enter a build contract with the seller with payment at fixed stages**
The proposed plans:
A brand new semi-detached family home which would offer a seamless flow effortlessly providing an ideal family home. The designs boast a timeless layout and will invite spacious and light-filled rooms throughout.
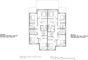
The demolition of the original dwelling and the foundations have been completed for two semi-detached properties comprising 6 bedrooms, 5 bathrooms and 3 receptions rooms (or 2 reception rooms and an integral garage) arranged over three floors. Both houses / plots are available to purchase separately at the guide price each.
Proposed specification
Solar panel electric power system with 15kw battery storage; CCTV system; Full fibre internet to every room; MHVR throughout; Underfloor heating to ground floor, radiator heating to first and second (individual room control); Solid oak stair case; Bi-fold door with integral venetian blinds; all windows with solar reflective glass and triple glazing; In-frame shaker style kitchen; quartz worktops; Bosch appliances; Principal bedroom with dressing room and full length mirrors, and en-suite with twin sinks.
Buckinghamshire Council Planning reference: Ref. No: PL/23/4169/FA
Location
Beaconsfield station 0.9 miles, M40 (J2) 1.3 miles, Gerrards Cross 5 miles, Heathrow Airport 16 miles, London 30 miles (Marylebone).
The Spinney is a sought after family location, which benefits from being close to both Beaconsfield Old Town and New Town.
The picturesque Old Town dates back to the Thirteenth Century and local facilities include convenience and independent retail stores as well as a variety of restaurants and public houses. The New Town offers an excellent range of day to day needs including Waitrose, Sainsbury’s and Marks and Spencer Simply Food. The mainline train service runs directly to London Marylebone with the fastest train taking from 22 minutes. The M40 (J2) is located just 1.2 miles distant and gives access to London, Oxford, Birmingham, Heathrow and the M25. Sports enthusiasts are well catered for with tennis, riding, squash, golf, cricket, rugby and football clubs in the area.
Buckinghamshire is renowned for its choice and standard of schooling. The county is one of the last to maintain the traditional grammar school system, of which Beaconsfield High School for girls and the Royal Grammar School for boys in High Wycombe are the closest. Local independent preparatory schools include Caldicott (Farnham Royal), The Beacon (Amersham) and Davenies in Beaconsfield for boys and The Gateway, High March for girls to name a few.
Square Footage: 3,054 sq ft
Brochures
Web Details- COUNCIL TAXA payment made to your local authority in order to pay for local services like schools, libraries, and refuse collection. The amount you pay depends on the value of the property.Read more about council Tax in our glossary page.
- Band: TBC
- PARKINGDetails of how and where vehicles can be parked, and any associated costs.Read more about parking in our glossary page.
- Yes
- GARDENA property has access to an outdoor space, which could be private or shared.
- Yes
- ACCESSIBILITYHow a property has been adapted to meet the needs of vulnerable or disabled individuals.Read more about accessibility in our glossary page.
- Ask agent
Energy performance certificate - ask agent
The Spinney, Beaconsfield, Buckinghamshire, HP9
Add an important place to see how long it'd take to get there from our property listings.
__mins driving to your place
Get an instant, personalised result:
- Show sellers you’re serious
- Secure viewings faster with agents
- No impact on your credit score
Your mortgage
Notes
Staying secure when looking for property
Ensure you're up to date with our latest advice on how to avoid fraud or scams when looking for property online.
Visit our security centre to find out moreDisclaimer - Property reference AMD250103. The information displayed about this property comprises a property advertisement. Rightmove.co.uk makes no warranty as to the accuracy or completeness of the advertisement or any linked or associated information, and Rightmove has no control over the content. This property advertisement does not constitute property particulars. The information is provided and maintained by Savills New Homes, Buckinghamshire & Hertfordshire. Please contact the selling agent or developer directly to obtain any information which may be available under the terms of The Energy Performance of Buildings (Certificates and Inspections) (England and Wales) Regulations 2007 or the Home Report if in relation to a residential property in Scotland.
*This is the average speed from the provider with the fastest broadband package available at this postcode. The average speed displayed is based on the download speeds of at least 50% of customers at peak time (8pm to 10pm). Fibre/cable services at the postcode are subject to availability and may differ between properties within a postcode. Speeds can be affected by a range of technical and environmental factors. The speed at the property may be lower than that listed above. You can check the estimated speed and confirm availability to a property prior to purchasing on the broadband provider's website. Providers may increase charges. The information is provided and maintained by Decision Technologies Limited. **This is indicative only and based on a 2-person household with multiple devices and simultaneous usage. Broadband performance is affected by multiple factors including number of occupants and devices, simultaneous usage, router range etc. For more information speak to your broadband provider.
Map data ©OpenStreetMap contributors.






