
3 bedroom terraced house for sale
St. Georges Road, Enfield, Middlesex, EN1

- PROPERTY TYPE
Terraced
- BEDROOMS
3
- BATHROOMS
1
- SIZE
Ask agent
- TENUREDescribes how you own a property. There are different types of tenure - freehold, leasehold, and commonhold.Read more about tenure in our glossary page.
Freehold
Key features
- 3 Bedrooms
- Large Sitting/Dining Room
- Stunning Modern Kitchen
- Garden
- Off Street Parking
- Short Walk to Forty Hall Country Estate
Description
Situated just moments from the picturesque Forty Hall Country Park, this charming terraced cottage has been finished to a high standard and offers an idyllic lifestyle in a highly sought-after location. Ideal for families, the property benefits from excellent local schools and a strong sense of community.
The home boasts three well-proportioned bedrooms and a stunning modern kitchen, perfect for both everyday living and keen cooks alike. Outside, a pretty garden provides a peaceful space to relax, while off-street parking adds valuable convenience.
With local shops and amenities close by, along with excellent transport and road links, this delightful cottage perfectly balances character, comfort, and connectivity. A wonderful opportunity not to be missed.
“Vendor Loves... "It is wonderful living so close to Forty Hall, especially with young children. It has a ‘village’ feel despite being so close to Enfield Town and the A10. There is a real sense of community and everyone is so friendly and warm. We regularly socialise with our neighbours. Having 2 local shops at either end of the road is also super convenient!"
This desirable part of Enfield benefits from cricket, tennis and golf clubs, a hospital, three overground station that can take you into central London within 30 minutes, a myriad of green spaces, lots of shops, bars, restaurants and good road links to M25 and A1M.
Close to:
Primary Schools,
Worcesters Primary School 0.3 miles
Lavender Primary School 0.6 miles
Secondary Schools,
Chase Community School 0.6 miles
Enfield County Lower School 0.5 miles
Amenities withing walking distance,
Turkey Street Railway Station 1.2 miles
Local Supermarket 0.2 mile
Forty Hall Country Park 0.1 miles
Shops, bars & restaurants of Enfield Town 1.3 miles
Please scan the QR code for full Material Information on this property
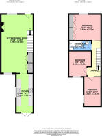
Sitting/Dining Room
7.26m x 4.04m (23' 10" x 13' 3")
Kitchen
4.83m x 2.16m (15' 10" x 7' 1")
Master Bedroom
3.45m x 3.23m (11' 4" x 10' 7")
Bathroom
2.84m x 1.3m (9' 4" x 4' 3")
Bedroom 2
3.15m x 2.84m (10' 4" x 9' 4")
Bedroom 3
3.6m x 2.16m (11' 10" x 7' 1")
Garden
Off Street Parking
- COUNCIL TAXA payment made to your local authority in order to pay for local services like schools, libraries, and refuse collection. The amount you pay depends on the value of the property.Read more about council Tax in our glossary page.
- Band: D
- PARKINGDetails of how and where vehicles can be parked, and any associated costs.Read more about parking in our glossary page.
- Driveway
- GARDENA property has access to an outdoor space, which could be private or shared.
- Yes
- ACCESSIBILITYHow a property has been adapted to meet the needs of vulnerable or disabled individuals.Read more about accessibility in our glossary page.
- Ask agent
St. Georges Road, Enfield, Middlesex, EN1
Add an important place to see how long it'd take to get there from our property listings.
__mins driving to your place
Get an instant, personalised result:
- Show sellers you’re serious
- Secure viewings faster with agents
- No impact on your credit score



Your mortgage
Notes
Staying secure when looking for property
Ensure you're up to date with our latest advice on how to avoid fraud or scams when looking for property online.
Visit our security centre to find out moreDisclaimer - Property reference HKE260004. The information displayed about this property comprises a property advertisement. Rightmove.co.uk makes no warranty as to the accuracy or completeness of the advertisement or any linked or associated information, and Rightmove has no control over the content. This property advertisement does not constitute property particulars. The information is provided and maintained by Atkinsons Residential, Enfield - Sales. Please contact the selling agent or developer directly to obtain any information which may be available under the terms of The Energy Performance of Buildings (Certificates and Inspections) (England and Wales) Regulations 2007 or the Home Report if in relation to a residential property in Scotland.
*This is the average speed from the provider with the fastest broadband package available at this postcode. The average speed displayed is based on the download speeds of at least 50% of customers at peak time (8pm to 10pm). Fibre/cable services at the postcode are subject to availability and may differ between properties within a postcode. Speeds can be affected by a range of technical and environmental factors. The speed at the property may be lower than that listed above. You can check the estimated speed and confirm availability to a property prior to purchasing on the broadband provider's website. Providers may increase charges. The information is provided and maintained by Decision Technologies Limited. **This is indicative only and based on a 2-person household with multiple devices and simultaneous usage. Broadband performance is affected by multiple factors including number of occupants and devices, simultaneous usage, router range etc. For more information speak to your broadband provider.
Map data ©OpenStreetMap contributors.





