
3 bedroom terraced house for sale
71 Bowden Road, Smethwick, B67 7NX

- PROPERTY TYPE
Terraced
- BEDROOMS
3
- SIZE
Ask agent
- TENUREDescribes how you own a property. There are different types of tenure - freehold, leasehold, and commonhold.Read more about tenure in our glossary page.
Freehold
Key features
- Freehold Vacant possession upon completion.
Description
A mid terraced property standing back from the road behind a small foregarden.
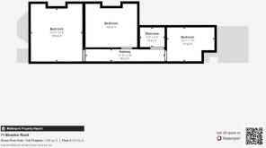
Accommodation
Ground Floor: Hall, Two Reception Rooms (Interconnected), Understairs Cupboard, Inner Hall, Kitchen, Shower Room/WC.
First Floor: Landing, Three bedrooms.
Outside: Gardens.
The property benefits from UPVC double glazing and a gas fired central heating system, however it is in need of modernisation.
Energy Performance Rating
C
Tenure
Freehold Vacant possession upon completion.
Pre-auction Offers
Please note no offers will be considered prior to the Auction Sale.
Viewing Times
See viewing schedule. Please note the appointments listed below are pre-booked and there is no need to book in prior to attending.
23/01/2026 12:15 - 12:30
27/01/2026 13:30 - 13:45
29/01/2026 12:15 - 12:30
31/01/2026 12:15 - 12:45
03/02/2026 13:30 - 13:45
Live-Streamed Auction
Please note that the Auction will be livestreamed via our website. You can take part remotely via Proxy, Telephone or Online, if you wish to bid you must pre-register via our website no later than 3pm the day prior to the auction.
Disclaimer
Bond Wolfe or their Agents for the seller of these Lots give notification that any particulars contained within the catalogue/website are prepared to the best of their knowledge and include information that has been provided to them. Plans, photographs and room measurements (provided via a 3rd party) are provided as guidance only and should not be relied upon. All potential buyers should make their own enquiries and investigations to the accuracy of the information contained in these particulars or to obtain further information that is not provided which they deem to be important prior to bidding. Any amendments to the particulars that Bond Wolfe are aware of will be published on the addendum, which is available within the lot information.
Viewings
All viewings are undertaken at your own risk. It is recommended that you take a torch, as not all properties have electricity, and that appropriate clothing is worn. Bond Wolfe under no circumstances shall be liable and will not accept any responsibility for any indirect incidental, consequential, special, or exemplary damages, injury and/or death arising in connection with your access to any property, caused as a result of the property’s state of repair or your use/decision to use your own equipment or any furniture, equipment or appliances in the property.
*Definition of Guide Price and Reserve
All properties are sold subject to a reserve price, which is the minimum price the seller is willing to accept and is confidential between the seller and Auctioneer. The guide price is only an indication as to where the reserve is currently set and not necessarily the Auctioneers expectation of what it will sell for. . If the guide price is a bracket figure, then the reserve price cannot be higher than the top end of the guide price, if the guide price is a fixed figure, then the reserve cannot be more than 10% above the guide price. The guide price and reserve price can be subject to change at any time up to and including the auction day and, properties can often sell for substantially more than the quoted guide price.
Costs at Auction
When buying at auction you will unconditionally exchange contracts on the fall of the auctioneer’s gavel, please therefore ensure you have read the legal pack for each property prior to bidding. They are all individual and include the terms and conditions of your purchase as well as any costs in addition to the purchase price.
The sale of each lot is subject to an administration fee of £2,340 inc VAT (£1,950.00 + VAT) (unless otherwise stated in the important information available on Bond Wolfe’s website), payable on the fall of the gavel/at the end of the online auction. Please note that the administration fee for the Local Authority lots may differ and all interested parties should enquire directly with the Auctioneers as to the fee applicable.
Any additional costs excluding the administration fee will be listed in the Special Conditions within the legal pack and these costs will be payable on completion. The legal pack has been prepared by the seller’s solicitor(s), who are responsible for its contents and disclosing all know information. It is available to download free of charge under the ‘lot information’ on the Bond Wolfe website, and you take responsibility for reading and understanding the legal pack and are bound by all the contents. Any stamp duty and/or government taxes are not included within the Special Conditions within the legal pack and all potential buyers must make their own investigations.
Brochures
REGISTER TO BIDLegal Documents- COUNCIL TAXA payment made to your local authority in order to pay for local services like schools, libraries, and refuse collection. The amount you pay depends on the value of the property.Read more about council Tax in our glossary page.
- Ask agent
- PARKINGDetails of how and where vehicles can be parked, and any associated costs.Read more about parking in our glossary page.
- Ask agent
- GARDENA property has access to an outdoor space, which could be private or shared.
- Yes
- ACCESSIBILITYHow a property has been adapted to meet the needs of vulnerable or disabled individuals.Read more about accessibility in our glossary page.
- Ask agent
Energy performance certificate - ask agent
71 Bowden Road, Smethwick, B67 7NX
Add an important place to see how long it'd take to get there from our property listings.
__mins driving to your place
Get an instant, personalised result:
- Show sellers you’re serious
- Secure viewings faster with agents
- No impact on your credit score
Your mortgage
Notes
Staying secure when looking for property
Ensure you're up to date with our latest advice on how to avoid fraud or scams when looking for property online.
Visit our security centre to find out moreDisclaimer - Property reference 325771. The information displayed about this property comprises a property advertisement. Rightmove.co.uk makes no warranty as to the accuracy or completeness of the advertisement or any linked or associated information, and Rightmove has no control over the content. This property advertisement does not constitute property particulars. The information is provided and maintained by Bond Wolfe, Auctions. Please contact the selling agent or developer directly to obtain any information which may be available under the terms of The Energy Performance of Buildings (Certificates and Inspections) (England and Wales) Regulations 2007 or the Home Report if in relation to a residential property in Scotland.
Auction Fees: The purchase of this property may include associated fees not listed here, as it is to be sold via auction. To find out more about the fees associated with this property please call Bond Wolfe, Auctions on 0121 387 6767.
*Guide Price: An indication of a seller's minimum expectation at auction and given as a Guide Price or a range of Guide Prices. This is not necessarily the figure a property will sell for and is subject to change prior to the auction.
Reserve Price: Each auction property will be subject to a Reserve Price below which the property cannot be sold at auction. Normally the Reserve Price will be set within the range of Guide Prices or no more than 10% above a single Guide Price.
*This is the average speed from the provider with the fastest broadband package available at this postcode. The average speed displayed is based on the download speeds of at least 50% of customers at peak time (8pm to 10pm). Fibre/cable services at the postcode are subject to availability and may differ between properties within a postcode. Speeds can be affected by a range of technical and environmental factors. The speed at the property may be lower than that listed above. You can check the estimated speed and confirm availability to a property prior to purchasing on the broadband provider's website. Providers may increase charges. The information is provided and maintained by Decision Technologies Limited. **This is indicative only and based on a 2-person household with multiple devices and simultaneous usage. Broadband performance is affected by multiple factors including number of occupants and devices, simultaneous usage, router range etc. For more information speak to your broadband provider.
Map data ©OpenStreetMap contributors.






