
2 bedroom semi-detached house for sale
High Bank Road, Burton-On-Trent

- PROPERTY TYPE
Semi-Detached
- BEDROOMS
2
- BATHROOMS
1
- SIZE
1,056 sq ft
98 sq m
- TENUREDescribes how you own a property. There are different types of tenure - freehold, leasehold, and commonhold.Read more about tenure in our glossary page.
Freehold
Key features
- Popular Location
- Entrance Hall
- Two Reception Rooms
- Spacious Kitchen & Conservatory
- Two Double Bedrooms
- First Floor Bathroom
- Generously Sized Mature Garden
- Rear Access to Garage/Potential Parking
- Close to an Excellent Range of Amenities
- Close to Nearby Transport Links
Description
The property comprises double glazed accommodation with entrance hall, two reception rooms, good sized fitted kitchen and rear lean-to/conservatory. The first floor landing leads to two double bedrooms and a spacious bathroom.
There is an extensive, well-established, mature garden and the aforementioned rear access to the garage which requires attention.
The Location - The property’s location is highly convenient for a full range of amenities in Burton-upon-Trent with a varied selection of shops, leisure pursuits, river side walks, nearby schooling and train station. The property is also convenient for the A38 and A50.
Accommodation -
Ground Floor -
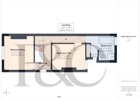
Hallway - 3.91 x 1.77 (12'9" x 5'9") - A UPVC double glazed entrance door provides access to hallway with central heating radiator and panelled staircase to first floor with understairs cupboard.
Lounge - 3.92 x 3.36 (12'10" x 11'0") - With fabulous feature fireplace and tiled hearth, central heating radiator, coving to ceiling, picture rail and box bay window to front.
Sitting Room - 3.97 x 3.75 (13'0" x 12'3") - Having a feature fire surround and fire grate, central heating radiator, coving to ceiling, picture rail and windows to side and rear.
Spacious Kitchen - 5.52 x 2.94 (18'1" x 9'7") - Comprising roll edged preparation surfaces with tiled surrounds, inset stainless steel sink unit with mixer tap, fitted base cupboards and drawers, complementary wall mounted cupboards, inset four plate electric hob, built-in double oven, appliance spaces suitable for fridge freezer, additional fridge or freezer, dishwasher, washing machine and tumble dryer, wall mounted gas fired boiler, two windows to the side and one to the rear and panelled and glazed door to conservatory.
Conservatory - 2.95 x 2.34 (9'8" x 7'8") - A UPVC double glazed construction offering useful additional storage with potential to extend out into the garden subject to necessary planning consents. There is also access to the garden.
First Floor Landing - 3.95 x 3.90 x 1.77 x 0.85 (12'11" x 12'9" x 5'9" x - A semi-galleried landing with feature balustrade, central heating radiator and window to side.
Bedroom One - 3.95 x 3.41 (12'11" x 11'2") - Having a central heating radiator, feature cast iron fire surround, picture rail and window to front.
Bedroom Two - 3.73 x 2.96 (12'2" x 9'8") - With central heating radiator and window to rear.
Bathroom - 2.89 x 2.74 (9'5" x 8'11") - A period style suite comprising low flush WC, wash handbasin, free standing roll edge bath, separate shower cubicle, central heating radiator, wood panelled walling, airing cupboard and windows to side and rear.
Outside - The property occupies an elevated plot from the pavement beyond steps and a mature fore-garden. There is side access to the property into the rear where there is a lengthy garden with feature patio area and extremely well-stocked flower beds and borders. To the foot of the garden there is hard standing for a garage/shed or alternatively off-road parking if removed.
Council Tax Band B -
Brochures
High Bank Road, Burton-On-TrentBrochure- COUNCIL TAXA payment made to your local authority in order to pay for local services like schools, libraries, and refuse collection. The amount you pay depends on the value of the property.Read more about council Tax in our glossary page.
- Band: B
- PARKINGDetails of how and where vehicles can be parked, and any associated costs.Read more about parking in our glossary page.
- Yes
- GARDENA property has access to an outdoor space, which could be private or shared.
- Yes
- ACCESSIBILITYHow a property has been adapted to meet the needs of vulnerable or disabled individuals.Read more about accessibility in our glossary page.
- Ask agent
High Bank Road, Burton-On-Trent
Add an important place to see how long it'd take to get there from our property listings.
__mins driving to your place
Get an instant, personalised result:
- Show sellers you’re serious
- Secure viewings faster with agents
- No impact on your credit score


Your mortgage
Notes
Staying secure when looking for property
Ensure you're up to date with our latest advice on how to avoid fraud or scams when looking for property online.
Visit our security centre to find out moreDisclaimer - Property reference 34409193. The information displayed about this property comprises a property advertisement. Rightmove.co.uk makes no warranty as to the accuracy or completeness of the advertisement or any linked or associated information, and Rightmove has no control over the content. This property advertisement does not constitute property particulars. The information is provided and maintained by Fletcher & Company, Willington. Please contact the selling agent or developer directly to obtain any information which may be available under the terms of The Energy Performance of Buildings (Certificates and Inspections) (England and Wales) Regulations 2007 or the Home Report if in relation to a residential property in Scotland.
*This is the average speed from the provider with the fastest broadband package available at this postcode. The average speed displayed is based on the download speeds of at least 50% of customers at peak time (8pm to 10pm). Fibre/cable services at the postcode are subject to availability and may differ between properties within a postcode. Speeds can be affected by a range of technical and environmental factors. The speed at the property may be lower than that listed above. You can check the estimated speed and confirm availability to a property prior to purchasing on the broadband provider's website. Providers may increase charges. The information is provided and maintained by Decision Technologies Limited. **This is indicative only and based on a 2-person household with multiple devices and simultaneous usage. Broadband performance is affected by multiple factors including number of occupants and devices, simultaneous usage, router range etc. For more information speak to your broadband provider.
Map data ©OpenStreetMap contributors.






